This beautifully crafted modern farmhouse plan delivers about 3,089 sq ft of heated living space on one level, with the option to add a finished bonus room above the garage for additional flexible square footage. Featuring 4 bedrooms, 3.5 bathrooms, an attached 2-car side-entry garage (~568 sq ft), and classic farmhouse style framed by wide front and rear porches, this design blends open modern living with cozy, functional spaces perfect for family life and entertaining. 0 citeturn0search0

Exterior & Curb Appeal — Modern Farmhouse Presence
The exterior welcomes you with a balanced façade that merges modern farmhouse aesthetics with enduring charm. Deep front and rear porches frame the home and invite relaxed outdoor living, whether you’re greeting guests at the front door or unwinding on the back porch with morning coffee or evening conversations. 0 The side-entry garage keeps the front elevation clean and uncluttered, preserving the home’s classic lines and enhancing curb appeal. 0 citeturn0search0
Open Great Room & Everyday Living
Upon entering, you’re greeted by an expansive open plan where the vaulted family room flows seamlessly into the kitchen. 0 Tall ceilings and abundant daylight help create a sense of openness and connection throughout the main living spaces — ideal for relaxed family time, casual gatherings, and larger social events. 0 citeturn0search0

A central fireplace anchors the family room, adding warmth and a cozy focal point without compromising the open feel. 0
Kitchen & Dining — Designed to Entertain
The gourmet kitchen stands ready for everyday meals and entertaining alike. It boasts a butler’s/walk-in pantry that provides generous storage and keeps counters clear, while a window above the sink overlooks the built-in grill — a thoughtful detail for indoor-outdoor meal prep. 0 The adjoining formal dining room creates a dedicated space for more intimate meals without interrupting the overall open flow. 0 citeturn0search0
Primary Suite — Private & Serene
The primary bedroom suite is positioned on its own wing for privacy and comfort. 0 Its spa-like ensuite bathroom includes a separate tub and shower, a private toilet room, and a roomy walk-in closet — thoughtful touches that enhance everyday routines and elevate daily comfort. 0 citeturn0search0
Secondary Bedrooms & Flexible Layout
Three additional bedrooms are positioned on the opposite side of the home, each offering space, light, and proximity to full bathrooms. 0 This split-bedroom layout supports family life and guest privacy, helping maintain calm in the sleeping quarters while social areas remain active and inviting. 0 citeturn0search0
Study & Quiet Spaces
Beyond the main living areas, a dedicated study offers a quiet place for work, reading, or focused activity without interrupting the home’s social heart. 0 This comfortable, separate space is ideal for remote work or a home library. 0 citeturn0search0
Laundry, Mudroom & Functional Zones
The combined laundry/mudroom off the garage entry is equipped with built-in cabinetry and a utility sink, keeping practical tasks and gear neatly tucked away. 0 This useful transition zone keeps clutter out of living spaces while supporting everyday routines with efficiency. 0 citeturn0search0
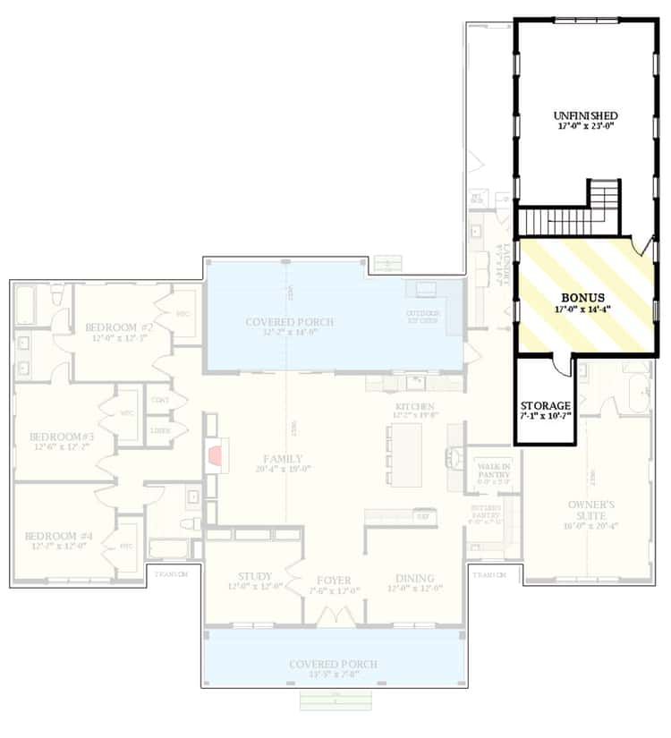
Bonus Room Above Garage — Extra Living Space
A major highlight is the optional finished bonus room above the garage — approximately 790 sq ft. 0 This versatile area can become a playroom, media space, guest suite, gym, or hobby room, offering flexibility that adapts to your family’s changing needs over time. 0 citeturn0search0
Outdoor Living — Covered Porches & Views
Both front and rear covered porches add generous outdoor living space, creating multiple opportunities to enjoy morning sunshine or evening breezes. 0 The rear porch, at about 430 sq ft, provides an ideal setting for entertaining, grilling, or unwinding with friends and family. 0 citeturn0search0
Garage & Storage
The attached two-car garage (~568 sq ft) sits to the side and offers secure parking as well as additional storage space for tools, outdoor gear, and seasonal items. 0 Its placement enhances street presence while maintaining practical access for daily use. 0 citeturn0search0
Structure & Specs Summary
- Total Heated Area: ~3,089 sq ft 0
- Optional Bonus Area: ~790 sq ft above garage 0
- Bedrooms: 4 0
- Bathrooms: 3 full + 1 half 0
- Stories: 1 0
- Garage: Attached 2-car (~568 sq ft), side entry 0
- Foundation: Crawl 0
- Exterior Walls: 2×6 0
- Ceiling Heights: 9′ main level turn0view0
- Dimensions: ~81′ 0″ wide × ~84′ 0″ deep; max ridge ~32′ 0″ 0
- Porch Area: ~259 sq ft front, ~430 sq ft rear 0
- Style: Modern Farmhouse, Country, Hill Country, New Orleans 0
Lifestyle Highlights — Easy Flow & Everyday Function
- Open, vaulted family room: Central living space fosters connection and light. 0
- Classic farmhouse porches: Front and rear covered areas enhance indoor-outdoor living. 0
- Functional kitchen: Butler’s/walk-in pantry and built-in grill views make cooking a joy. 0
- Private bedroom zones: Split layout supports peaceful retreat. 0
- Bonus flexibility: Large optional bonus room adapts to changing needs. 0
Estimated U.S. Build Cost (USD)
Assuming typical U.S. residential construction costs of about $180–$260 per sq ft with mid-range finishes, building ~3,089 sq ft suggests a rough range of **$556,000–$803,000 USD** — not including land, site prep, permits, or regional cost differences. 0
Why This Modern Farmhouse Plan Works
This modern farmhouse plan combines classic architectural charm with smart, livable spaces. Vaulted family room ceilings, generous porches, practical storage, and an optional bonus room make it ideal for families who love to gather, relax, and adapt spaces as their needs evolve. It’s a home rooted in tradition but crafted for contemporary living.0












