This striking mid-century modern plan offers approximately 3,859 sq ft of heated living space, including a fully finished lower level. With 4 bedrooms, 3 full baths, and a clean two-car garage (~803 sq ft), it’s designed for contemporary lifestyles that value open flow, strong indoor-outdoor connection, and flexible spaces that can evolve over time. 0

Exterior Design & Curb Appeal
The exterior presents a classic mid-century modern silhouette: broad roof eaves, clean horizontal lines, strategic glazing and minimalist detailing that make the architecture feel both grounded and elevated. The driveway leads to a two-car garage integrated into the plan, keeping the front façade streamlined and letting living zones take visual priority. The lot width and depth of the home support both street presence and site flexibility. 1

Outdoor Living: Patio & Lower-Level Walk-out
A standout feature is the lower level’s walk-out design—perfect for extending living space into t

he yard and creating a backyard retreat. Sliding glass or doors open from the main level onto a patio zone, while the lower level connects directly to outdoor space, ideal for a secondary living room, media lounge or guest suite. These connections make the home feel larger than its footprint while preserving a cohesive aesthetic. 2

Interior Walkthrough: Great Room, Kitchen & Dining
Stepping inside, you’re greeted by an open-plan great room where the living, dining and kitchen zones merge effortlessly. Large windows frame the horizon and bring natural light deep into the space. The kitchen features a clean, modern island with seating, ample counter space and intuitive access to the dining area—perfect for everyday comfort and entertaining alike. The design supports ease of movement and a sense of spaciousness, thanks to high ceilings and minimal visual barriers. 3

Master Suite & Additional Bedrooms
The master suite occupies a private wing, offering its own retreat with generous closet space and bath arrangements. The additional three bedrooms offer flexibility—ideal for guest suites, children’s rooms or work-from-home setups. With three full baths overall, the layout emphasizes comfort and convenience for family, guests and long-term living. 4

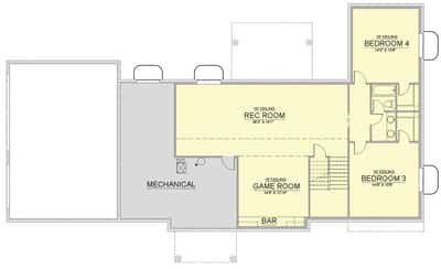
Lower Level & Flexible Spaces
The finished lower level dramatically expands the home’s usable footprint. Whether you choose a media room, gym, hobby space or guest apartment, this area provides adaptability. With direct access to the outdoors, it’s suited to second-household living, extended families or evolving lifestyle needs. Storage and mechanical spaces are thoughtfully tucked away to maintain clarity in the living zones. 5

Garage, Mudroom & Service Areas
A two-car garage (~803 sq ft) has direct access into the home’s service zones. The mudroom and laundry are located near the garage entry to keep daily comings and goings tidy and maintain main-level living and entertaining spaces clutter-free. These utility corridors facilitate both everyday routines and longer stays for guests or extended family. 6

Specs Summary
- Living Area: ~3,859 sq ft 7
- Bedrooms: 4 8
- Bathrooms: 3 full 9
- Garage: 2-car attached (~803 sq ft) 10

- Stories: One main level + finished lower level 11
- Foundation: Walk-out lower level, suitable for sloped lot 12
- Wall Construction: Standard modern framing; large glazing zones for light and connection 13

Lifestyle Highlights
- Elegant mid-century styling brings a clean, timeless exterior that fits well on view lots or wooded sites.
- One main living level offers convenience, while the finished lower level adds flexibility and value.
- Indoor-outdoor connectivity is a core theme—patios, walk-out lower level and large windows all reinforce this.
- Service zones (mudroom, laundry, garage access) are thoughtfully placed to keep living spaces peaceful and organized.
- Bedroom and bath configurations support family, guests or multigenerational living with ease.

Estimated U.S. Build Cost (USD)
Assuming mid-to-high quality finishes and standard U.S. pricing around $180–$260 per sq ft, for ~3,859 sq ft you might budget approximately $695K–$1.00M USD (not including land, site work, lot preparation or customization). This gives a planning benchmark for this home’s scale and features. 14

Why This Plan Shines
What makes this design stand out is the combination of clean mid-century aesthetic, flexible lower-level space and a layout that flows gracefully. It’s a home that looks sharp, lives smart and adapts easily. Whether entertaining guests, raising a family or creating a personal retreat, this plan offers both form and function in a beautiful package. 15












