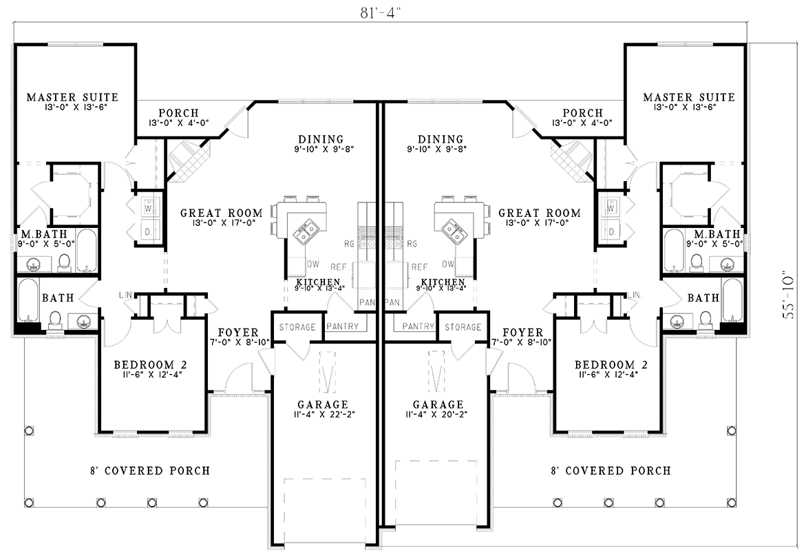
This duplex plan provides two identical units under one roof — each unit offering ~1,271 sq ft of heated living space. Combined, the total heated area is about 2,542 sq ft. Each side includes 2 bedrooms, 2 full bathrooms, and an attached 1-car garage (~286 sq ft per unit). It’s a compact but thoughtful design — ideal for rental investment, extended family living, or maximizing property value with dual occupancy. 0
Exterior & Curb Appeal — Shared Structure, Separate Homes
The design consists of two side-by-side units that mirror each other, giving a balanced, symmetrical exterior that feels homey rather than institutional. 0 Each unit spans roughly 40′ 8″ wide × ~55′ 10″ deep, with a roof height around 26′. 1

A small front porch (about 337 sq ft per unit) offers a welcoming entry and a modest outdoor seating spot, while the attached garage keeps vehicles and storage conveniently integrated without sacrificing the look and footprint of a house. 2
Interior Layout — Smart, Efficient & Functional for Everyday Living
Each unit offers a clean, well-organized layout. The living, dining, and kitchen areas flow together, creating an open, practical living core — ideal for couples, small families, or tenants. 3
Having 2 full bathrooms for 2 bedrooms provides comfort and convenience — good for privacy if roommates share the unit, or for family living where morning routines overlap. 4
The modest size makes maintenance easier and utility costs lower, while still offering enough space for comfort, storage, and daily life.
Garage, Porch & Outdoor Access — Practical Small-Home Features
- Garage (per unit): ~286 sq ft attached — enough for one car plus some storage. 5
- Front Porch (per unit): ~337 sq ft — adding a small outdoor area for seating or relaxation. 6
- Overall Footprint: ~40′ 8″ wide × ~55′ 10″ deep per unit — compact enough for modest lots, but offering full-size living amenities. 7
Plan & Specs Summary
- Total Heated Area (both units): ~2,542 sq ft 0
- Per Unit Heated Area: ~1,271 sq ft 0
- Bedrooms per Unit: 2 0
- Bathrooms per Unit: 2 full baths 0
- Garage (per Unit): ~286 sq ft attached 0
- Front Porch (per Unit): ~337 sq ft 0
- Unit Dimensions: ~40′ 8″ wide × ~55′ 10″ deep; ~26′ roof height 0
- Design Style: Single-story duplex with mirrored 2-bed/2-bath units, individual garages, porches — efficient, modest, and livable. 0
Lifestyle Benefits — Why This Duplex Plan Works
- Dual living or rental flexibility: Two full units mean you can live in one and rent the other — or house extended family while retaining privacy.
- Compact size with full amenities: Each unit has ample living space, two bedrooms and full baths, garage, and porch — everything a small family or couple would need without wasted space.
- Budget- and maintenance-friendly: Lower heated area means less energy cost, easier maintenance, and faster build compared with large single-family homes.
- Good for small lots or shared properties: The footprint is compact enough to fit modest plots, making it a practical choice for urban or suburban settings.
- Simple living with privacy: Each unit is self-contained, giving occupants independence and privacy even within a shared building shell.
Estimated U.S. Build Cost (USD)
Assuming modest to average finishes and typical U.S. residential construction costs around $140–$200 per sq ft (given the smaller size and simpler layout), building one unit (~1,271 sq ft) could cost roughly **$178,000–$254,000 USD**. For the full duplex (both units), the total build cost might be in the range of **$356,000–$508,000 USD** (excluding land, site prep, permits, utilities, and regional variation). 0
Why This Duplex Plan Is a Smart Pick — Practical, Efficient & Versatile
This duplex offers a very practical solution for anyone wanting two independent homes under one roof — whether for rental income, multi-family living, or maximizing lot use. With modest size, full amenities, garages, porches, and a compact, efficient layout — it’s a plan that balances cost, convenience, and comfort. If you’re looking for a functional, flexible, and budget-conscious home design (or investment), this duplex delivers nicely with no fuss and plenty of everyday potential.












