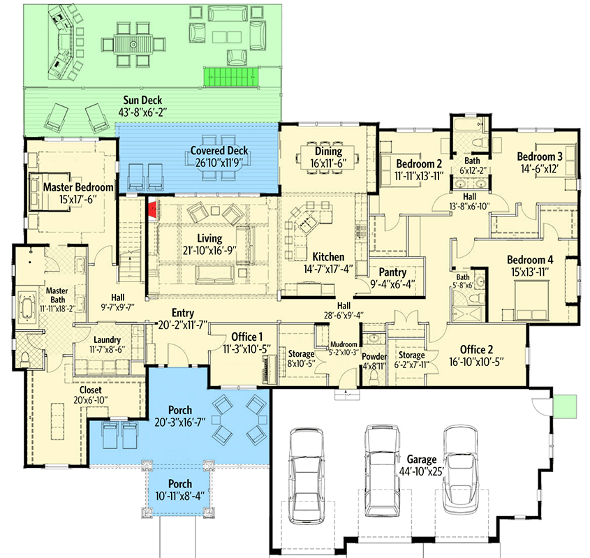
This remarkable rustic Craftsman house plan delivers about 3,968 sq ft of thoughtfully designed living space that combines rugged Craftsman character with modern family-friendly functionality. Featuring 4 bedrooms, 3.5 bathrooms, generous porches front and back, and optional bonus/exterior living areas, this plan is ideal for homeowners who value open, light-filled gathering spaces, private retreats, and strong indoor-outdoor connection. 0

Rustic Craftsman Exterior & Curb Presence
The exterior embodies classic Craftsman style with rustic detailing that feels right at home in pastoral, mountain, or wooded environments. 1 Natural materials and mixed textures, paired with substantial rooflines and outdoor living spaces, give the façade depth and welcoming character. Covered porches at both the front and rear of the home invite you to linger outdoors and enjoy relaxed conversation or quiet mornings. 2

With a footprint that accommodates the nearly 3,968 sq ft main floor, this home makes a striking yet grounded impression on its site. 3
Porches, Decks & Outdoor Living
Porch spaces are a highlight of this plan. A large covered front porch welcomes guests and encourages everyday porch living, while the rear deck and porch expand usable outdoor space for dining, entertaining, or simply soaking in nature. 4 Altogether, the generous outdoor areas ensure you can enjoy fresh air, shade, and scenic views throughout the seasons. 5
Whether you’re relaxing with a morning cup of coffee, hosting a barbecue, or unwinding in the evening breeze, the outdoor living zones become an extension of your everyday lifestyle. 6
Open Main Living Area — Heart of the Home
Stepping inside, you’ll find an open, expansive living area designed around connection and natural light. 7 The living room, dining area, and kitchen flow seamlessly, creating a versatile and sociable central space that family members and guests can share comfortably. 8
High ceilings with exposed beams and large windows enhance the sense of space and light, reinforcing the home’s open-plan feel while drawing the outdoors in. 9

Kitchen with Practical & Social Design
The kitchen is positioned as both a functional workspace and a communal hub. A large island offers ample prep space and casual seating, making it a natural gathering spot for quick breakfasts, weeknight dinners, or conversations over coffee. 10
Ample countertop space, cabinetry, and a practical workflow help keep meal prep and entertaining effortless. Its placement near the dining area supports smooth serving and interaction throughout daily life and special occasions. 11

Primary Suite — Private & Restful Retreat
The primary bedroom is strategically located for privacy and comfort away from the main living zones. 12 Its generous layout accommodates a full bedroom set and personal seating, creating a calming retreat at the end of the day. 13
The ensuite bathroom enhances convenience with well-planned fixtures and storage, while large windows invite natural light and peaceful outdoor views. 14

Secondary Bedrooms & Guest Comfort
Three additional bedrooms provide flexible space for family members, guests, or office use. 15 Two full bathrooms near these bedrooms ensure easy access and privacy, while the thoughtful layout supports everyday comfort for all occupants. 16
Whether hosting overnight guests or accommodating a growing family, these secondary rooms adapt well to multiple lifestyle needs. 17

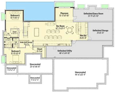
Bonus Room & Flex Space
An optional bonus room or finished attic offers approximately 2,250 sq ft of additional potential living space above the main level. 18 This expansive area can serve as a media room, game room, home gym, guest suite, playroom, or creative workspace — giving your home long-term flexibility that grows with your needs. 19
The bonus space’s generous dimensions create possibilities for extended living without compromising the comfort of the main level. 20
Laundry, Storage & Practical Zones
A dedicated laundry area adds everyday convenience, while storage zones throughout the home help keep living spaces organized and clutter-free. 21 These practical elements enhance functional living without detracting from the home’s aesthetic strength. 22

Indoor-Outdoor Connection & Natural Light
Windows and glass doors throughout the main living areas enhance the indoor-outdoor connection, bringing daylight deep into the floor plan and creating visual links to the surrounding landscape. 23 These design choices boost comfort and ambience, making interior spaces feel bright, open, and warm. 24
Dimensions & Key Features
- Total Heated Area: ~3,968 sq ft (main level) 25
- Bedrooms: 4 26
- Bathrooms: 3 full + 1 half 27
- Stories: Single level with optional bonus above 28
- Bonus/Expansion: ~2,250 sq ft optional 29
- Porch/Outdoor Living: Covered front porch + rear deck 30
- Style: Rustic Craftsman / Mountain Craftsman 31
Lifestyle Highlights
- Spacious open living area enriches connection and daily interaction.
- Generous porch and deck spaces expand living area outdoors.
- Optional bonus room offers extensive flexibility for future needs.
- Private primary suite serves as a restful retreat from daily bustle.
- Secondary bedrooms deliver comfort and adaptability for family life or guests.
Estimated U.S. Build Cost (USD)
Assuming typical U.S. residential construction costs of around $180–$260 per sq ft, building this ~3,968 sq ft Rustic Craftsman home may range between **$714,000 and $1,032,000 USD** (excluding land, site preparation, permits, and regional cost differences). 32

Why This Rustic Craftsman Plan Works
This remarkable Rustic Craftsman plan combines expansive open living spaces, strong indoor-outdoor connection, and classic architectural character to create a home that’s both inviting and functional. With flexible bonus space, generous bedrooms, and well-placed living zones, it suits families who value comfort, style, and adaptable design that stands the test of time.












