This modern transitional home design delivers about 3,637 sq ft of beautifully balanced living space on a single level with an optional loft above. It includes 4 bedrooms, 4 full bathrooms, 1 half bath, and an attached 3-car garage. Blending open, light-filled interiors with transitional style details and thoughtful flow, this plan is ideal for families who want both gracious living zones and smart, functional spaces for daily life. 0

Exterior Design & Curb Appeal
The exterior presents a refined transitional aesthetic, marrying classic proportions with modern touches. 1 With a footprint of roughly 83′-5″ wide × 78′-9″ deep, the elevation combines balanced gables, clean lines, and a mix of materials that create both warmth and architectural interest. 2 A covered front entry adds character and shelter, while the home’s scale and silhouette give it a grounded yet welcoming presence. 3
Porches & Outdoor Living Connections
A generous covered front porch creates an inviting transition from outdoors to inside, perfect for casual seating or greeting guests. 4 At the rear, access from the main living areas leads to outdoor patios or covered porches where you can relax, entertain, and enjoy fresh air. 5 Large windows and doors throughout enhance the connection to outdoor spaces and flood the interior with natural light. 6
Grand Entry & Open Main Living
Step inside to a spacious foyer that opens into the heart of the home — a bright, open great room designed for family living and social connection. 7 High ceilings, thoughtful sightlines, and expansive glazing create a welcoming space that flows seamlessly into the dining and kitchen areas. 8 Whether you’re hosting gatherings or enjoying everyday life, this great room becomes the social hub. 9
Kitchen & Dining — Designed for Real Life
The kitchen is both functional and stylish, anchored by a large central island that’s perfect for meal prep, casual dining, and conversation. 10 Plenty of counter space and cabinetry help keep the kitchen organized, while the adjacent dining area offers easy access to outdoor living zones — ideal for al fresco meals or weekend cookouts. 11 A walk-in pantry ensures storage is generous and practical. 12

Primary Suite — Your Private Retreat
The primary bedroom is positioned for privacy and comfort, featuring generous windows and direct access to serene outdoor spaces. 13 The attached spa-style bathroom includes dual vanities, a large shower, and substantial closet space — a calming retreat at the end of the day. 14 Thoughtful adjacency to a laundry room streamlines daily routines. 15
Secondary Bedrooms & Guest Comfort
Three additional bedrooms offer flexibility and comfort for family members, guests, or adaptable lifestyle needs. 16 Each enjoys easy access to well-appointed full bathrooms, ensuring privacy without sacrificing convenience. 17 Comfortable proportions and abundant natural light make these spaces welcoming for daily life or extended stays. 18
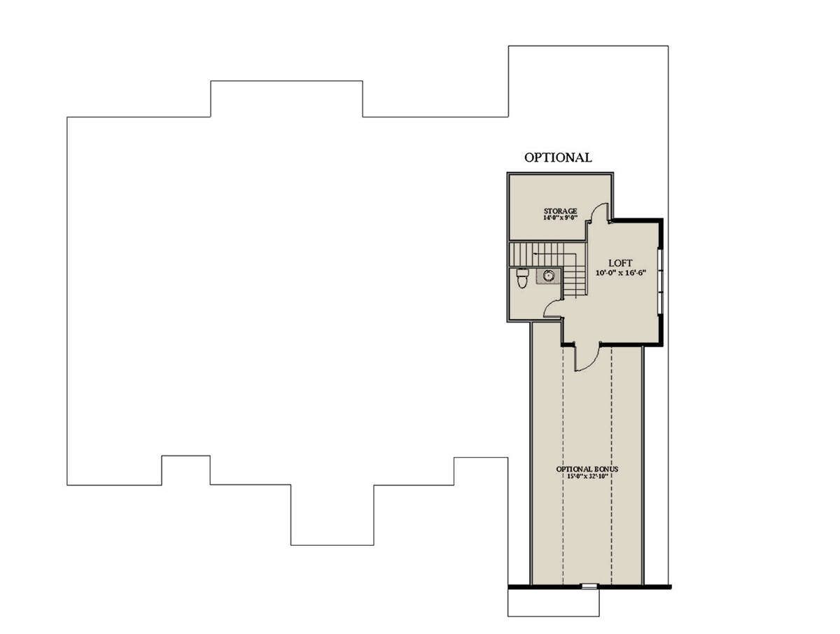
Bonus Loft & Flexible Spaces
An upstairs bonus loft (approximately 807 sq ft) provides extra living space ideal for a media room, play area, home office, or hobby zone. 19 This loft creates versatility without interrupting the one-story flow, making the home adaptable as needs evolve. 20 Whether you need a quiet retreat or a lively hangout, this room can flex with your lifestyle. 21
Garage, Mudroom & Practical Flow
The attached three-car garage (about 765 sq ft) provides ample vehicle space and storage. 22 A mudroom transition helps contain everyday clutter and keeps the main living areas tidy, while nearby utility spaces support smooth household routines. 23 Thoughtful circulation and clearly defined functional zones make daily life intuitive and efficient. 24
Indoor-Outdoor Connection & Natural Light
Generous windows throughout the home and doors leading to outdoor porches ensure that natural light permeates key living areas. 25 This strong indoor-outdoor connection enhances comfort, creates uplifting interiors, and invites you to make the most of your surrounding landscape. 26

Dimensions & Key Features
- Total Heated Area: ~3,637 sq ft 27
- Bedrooms: 4 28
- Bathrooms: 4 full + 1 half 29
- Stories: 1 with bonus loft (~807 sq ft) 30
- Garage: 3-car attached (~765 sq ft) 31
- Front Porch: Covered entry space 32
- Rear Outdoor Living: Patio/porch access from main areas 33
- Width: ~83′-5″ 34
- Depth: ~78′-9″ 35
Lifestyle Highlights
- Light-filled great room with seamless flow to kitchen and dining for family life and entertaining.
- Functional kitchen with island, pantry, and direct access to outdoor spaces.
- Primary suite designed as a private retreat with elegant bath and outdoor access.
- Secondary bedrooms that balance family needs with guest comfort.
- Bonus loft provides adaptable extra space for media, work, or play.
- Indoor-outdoor transitions and generous windows bring brightness and connectivity to every room. 36

Estimated U.S. Build Cost (USD)
Assuming typical U.S. residential construction costs of **$180–$260 per sq ft**, building this ~3,637 sq ft transitional home could range between **$655,000 and $946,000 USD** (excluding land, permits, site prep, and regional cost differences). 37

Why This Modern Transitional Plan Works
This modern transitional design blends elegance, comfort, and functional flow in a way that suits today’s lifestyle. With generous shared spaces, private retreats, flexible bonus loft area, and strong indoor-outdoor connections, it’s a plan that supports both everyday living and memorable gatherings with ease and style.












