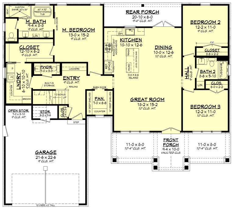
This thoughtfully designed modern farmhouse plan delivers about 1,793 sq ft of living space that feels both open and warm. With 3 bedrooms, 2 full bathrooms, and 1 half bathroom, it balances everyday comfort with smart functionality. Defined by welcoming porch areas, adaptable interior zones, and plenty of natural light, this plan feels larger than its footprint — ideal for families, couples, or anyone who loves efficient yet inviting design. 0

Welcoming Farmhouse Exterior & Porch Living
The exterior greets you with classic modern farmhouse style — clean lines, balanced proportions, and generous windows. 1 A covered front porch offers a relaxed spot for morning coffee, evening conversations, or simply watching the day unfold, while a rear covered porch extends your living space outdoors, perfect for alfresco meals or quiet relaxation. 2 The footprint, roughly 58′ wide × 55′ deep, presents strong curb appeal while fitting comfortably on a broad range of lots. 3

Open Main Living Area — Heart of the Home
Stepping inside, you’ll immediately notice how the main living space prioritizes connection and flow. 4 The great room, dining area, and kitchen are visually linked in an open concept that feels both spacious and cohesive. 5 With large windows and thoughtful layout, the entire living zone is bright and welcoming, supporting daily life and social moments alike. 6
This open arrangement encourages effortless movement and ensures that everyday tasks, meals, and gatherings feel naturally connected. 7
Kitchen Designed for Practical Comfort
The kitchen anchors the central living space with a functional layout that supports both meal prep and social interaction. 8 A generous island provides additional prep space, casual seating, and a natural gathering spot for family and guests. 9 Surrounding counters and cabinetry offer abundant storage and easy workflow, making this kitchen comfortable for everyday use and entertaining. 10
Positioned near the dining area, the kitchen design ensures that shared meals feel effortless and part of the home’s social rhythm. 11

Living & Dining — Comfortable & Connected
The living area feels open and inviting, with space for relaxed furniture arrangements that accommodate both family nights and entertaining. 12 Adjacent to the dining zone, this shared space supports seamless transitions between activities — whether serving breakfast or hosting friends for dinner. 13
Large windows throughout help bathe these spaces in daylight, making them feel even more expansive and cheerful. 14

Primary Suite — Private & Restful
The primary bedroom is designed to be a quiet retreat tucked away from the main living areas. 15 Its generous proportions allow comfortable placement of bedroom furnishings and offer a calm setting. 16
The ensuite bathroom enhances daily comfort with a thoughtful layout, including a walk-in closet that helps keep clothing and personal items organized. 17 Windows in the suite bring in natural light while maintaining privacy. 18

Secondary Bedrooms — Flexible & Practical
Two additional bedrooms are well situated to serve family members, guests, or even function as flexible spaces such as a home office or hobby room. 19 They share easy access to a full bathroom designed for daily convenience, helping make routines smooth and stress-free. 20
These secondary rooms adapt easily to changing needs, supporting long-term flexibility. 21
Bathrooms & Efficient Flow
This plan includes 2 full bathrooms and 1 half bathroom, positioned to support both privacy and everyday ease. 22 The shared full bathroom near the secondary bedrooms provides convenience without interrupting the calm of private spaces, while the half bath near the main living area is perfect for guests and quick access. 23

Laundry & Practical Storage
A dedicated laundry area enhances convenience and keeps daily chores organized without interfering with living spaces. 24 Thoughtful closets and storage are integrated across the plan, ensuring that the home stays tidy and functional. 25
Indoor-Outdoor Connection & Natural Light
Strategically placed windows and doors bring abundant natural light into every key living zone, strengthening the indoor-outdoor connection and making interior spaces feel more open. 26 This daylight-rich design contributes to the home’s bright, airy atmosphere and enhances comfort throughout the day. 27

Dimensions & Key Features
- Total Heated Area: ~1,793 sq ft 28
- Bedrooms: 3 29
- Bathrooms: 2 full + 1 half 30
- Stories: Single level 31
- Garage: 2-car attached 32
- Width: ~58′ 33
- Depth: ~55′ 34
- Style: Modern Farmhouse 35

Lifestyle Highlights
- Open living area supports connection, natural light, and flexibility.
- Front and rear porch areas extend usable space outdoors.
- Primary suite offers privacy and daily comfort with storage conveniences.
- Secondary bedrooms adapt to family, guests, or work-from-home needs.
- Efficient flow and smart storage enhance everyday living.

Estimated U.S. Build Cost (USD)
Assuming typical U.S. residential construction costs of approximately $180–$260 per sq ft, building this ~1,793 sq ft modern farmhouse may range between **$323,000 and $466,000 USD**. This estimate excludes land, site preparation, permits, and regional cost variations. 36

Why This Modern Farmhouse Plan Works
This modern farmhouse plan thoughtfully blends open, connected living with private retreats and practical spaces that support daily routines. Its inviting porch areas, abundant natural light, and efficient use of space make it ideal for families seeking a home that’s both beautiful and functional—one that feels comfortable, bright, and connected to the outdoors. 37

0











