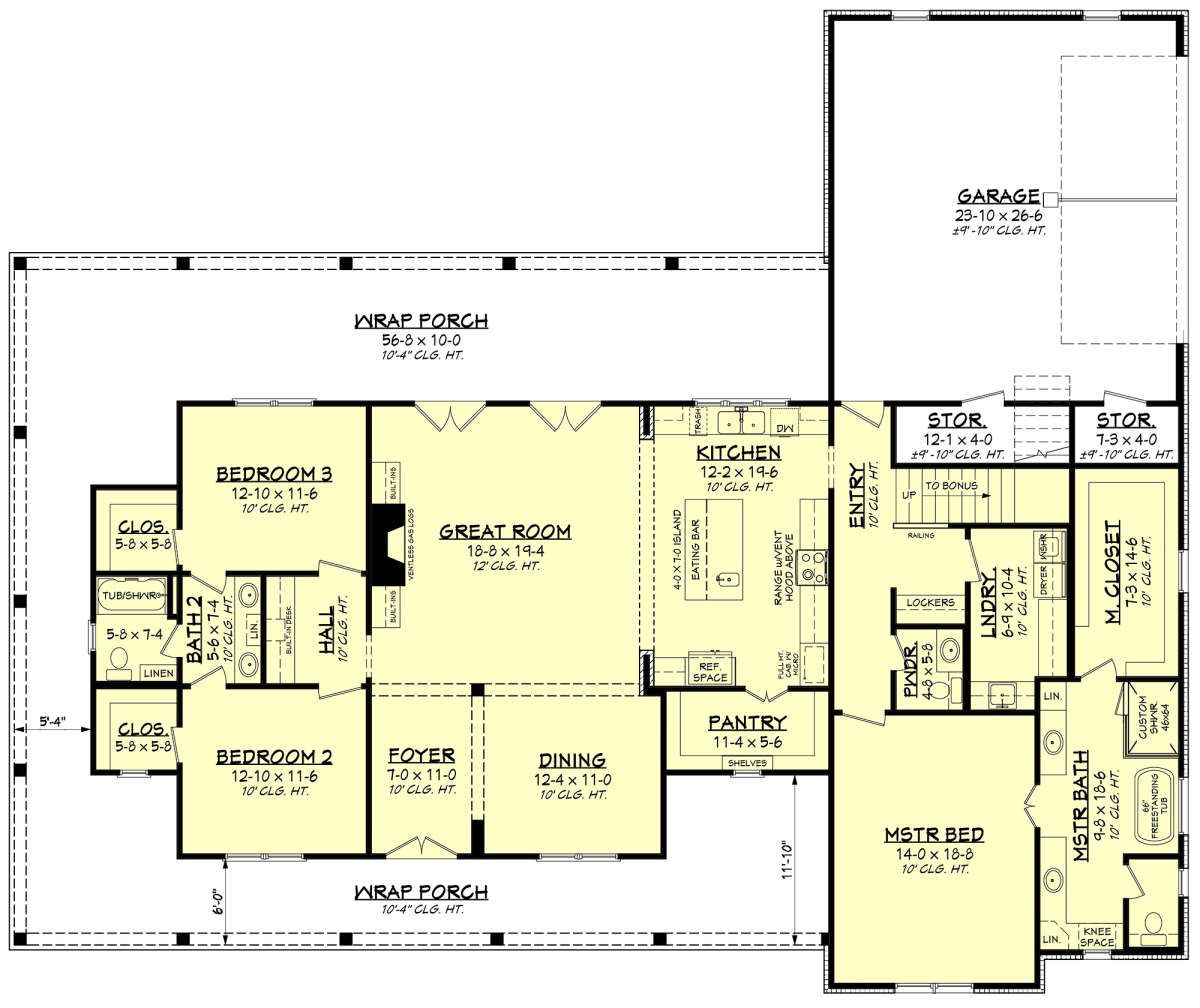
This modern farmhouse home offers about 2,395 sq ft of heated living space, delivering that perfect balance of roomy comfort and everyday practicality. With 3 bedrooms, 2.5 bathrooms, and a layout designed for real life, it’s an excellent fit for families who want space to spread out while still keeping the home cozy and welcoming. The design focuses on open gathering areas where everyone can connect, plus private bedroom spaces that feel calm and restful. It’s farmhouse charm with modern convenience—bright, functional, and easy to love for the long haul.

Exterior & Curb Appeal – Clean Farmhouse Lines with Timeless Warmth
From the curb, this home captures modern farmhouse charm with a look that feels warm, balanced, and welcoming. The overall shape has that classic farmhouse confidence—simple in the best way, with a style that still looks beautiful years down the road. It feels friendly and approachable, like the kind of home where neighbors wave and guests automatically know they’re welcome.
At nearly 2,400 square feet, the home has a strong presence without feeling oversized. It would look right at home on a country lot, in a quiet suburb, or even tucked into a newer neighborhood where farmhouse style is the star of the street. Add some neat landscaping, warm porch lighting, and a clean walkway, and the curb appeal becomes instantly memorable.
Outdoor Living – Fresh-Air Space for Relaxing and Everyday Joy
One of the best things about farmhouse living is how naturally it invites you to enjoy the outdoors. This home supports outdoor living with space that feels practical and easy to use—perfect for morning coffee, evening wind-down time, or weekends when the grill becomes the unofficial family chef.
Outdoor living also adds a lifestyle bonus for entertaining. Guests can step outside comfortably, kids can enjoy extra space, and the home never feels crowded even during gatherings. It’s the kind of outdoor setup that turns small moments into regular rituals, which is where the best “home memories” usually happen.
Main Living Area – Open, Bright & Built for Connection
Step inside and the layout immediately feels inviting. The main living area is designed to connect the living room, kitchen, and dining space in a smooth, open flow. This creates a bright, airy feeling and makes the home feel even more spacious than the square footage suggests.
The living room is made for real comfort, with enough space for generous seating and daily lounging. It’s perfect for movie nights, relaxed weekends, and casual entertaining without needing to rearrange furniture every time someone visits. The open layout also means you’re never cut off from the action—you can cook, chat, supervise homework, and still feel connected.
This kind of shared space supports togetherness naturally. Families can spend time in the same area without feeling crowded, and guests can mingle comfortably without the home feeling cramped.
Kitchen & Dining – A Farmhouse Hub Designed for Real Life
The kitchen sits right at the heart of the home’s everyday routine, designed to handle busy family life while still feeling welcoming. In a modern farmhouse design, the kitchen isn’t just for cooking—it’s where people gather, snack, talk, and somehow end up standing around longer than planned.
The dining area is positioned nearby, creating a comfortable place for meals that can feel casual day-to-day but still handle larger gatherings when needed. This setup makes serving easy and keeps the home feeling connected and social.
For entertaining, this kitchen-and-dining flow is a huge win. You can prep food while still being part of the conversation, and guests can relax nearby without crowding your workspace. It’s functional, friendly, and designed to work in real life.

Primary Suite – A Private Retreat for Rest and Recharge
The primary bedroom is designed as a calm retreat, offering privacy away from the busiest parts of the home. It feels restful and comfortable—exactly what you want after a long day. The layout supports a peaceful atmosphere, making it easier to unwind and truly relax.
The attached bathroom adds everyday convenience and comfort, helping routines feel smoother. With a home that balances open gathering spaces and private retreats, this primary suite becomes your personal “quiet zone” when life gets busy.
Two Additional Bedrooms – Comfortable, Flexible, and Future-Ready
With 3 bedrooms, this plan offers flexibility that works for many lifestyles. The additional bedrooms can be used for kids, guests, or a home office if you need a dedicated workspace. Having three bedrooms allows the home to grow with you, giving you options as your needs change over time.
These secondary bedrooms also help the home feel balanced. Everyone has their own space, which makes family living calmer and guest visits more comfortable.
2.5 Bathrooms – Guest-Friendly Comfort and Smooth Daily Routines
This home includes 2 full bathrooms plus a convenient half bath, creating a layout that supports daily family routines while staying guest-friendly. Two full baths handle everyday life smoothly, while the half bath is perfect for visitors—keeping guests out of private bathroom spaces and making entertaining feel more relaxed.
The half bath is one of those features that makes a home feel more polished. It reduces stress during gatherings, improves morning routines, and quietly makes everyday life easier. Once you have it, you’ll never want to go back.
Laundry & Storage – Practical Spaces that Keep the Home Calm
A home feels more enjoyable when it stays organized, and this plan supports that with practical storage and laundry space. Closets and utility areas help keep clutter under control, allowing the open living areas to stay truly open and welcoming.
These behind-the-scenes details matter more than people expect. When storage is planned well, the whole home feels calmer and easier to manage—even during busy weeks.
Right-Sized Spaciousness – Room to Live Comfortably Without Overwhelm
At 2,395 sq ft, this home offers generous space for everyday living without stepping into “too much house” territory. It’s large enough for family comfort, entertaining, and flexibility, but still manageable to maintain long-term.
This footprint is ideal for homeowners who want the comfort of a larger home while still keeping upkeep realistic. It’s a practical size that feels spacious and livable.
Specs Summary
- Living Area: ~2,395 sq ft
- Bedrooms: 3
- Bathrooms: 2 full + 1 half
- Stories: 1 (single-level living)
- Style: Modern Farmhouse
- Layout Highlights: Open living hub, private primary suite, flexible bedrooms, and guest-friendly half bath
Lifestyle Highlights
- Modern farmhouse curb appeal with timeless warmth and balanced design.
- Open main living space supports connection and easy entertaining.
- 3 bedrooms provide comfortable flexibility for family, guests, or office use.
- 2.5 bathrooms improve privacy, guest comfort, and daily routines.
- A right-sized footprint that offers space without overwhelming upkeep.

Estimated U.S. Build Cost (USD)
With mid-range to mid-high quality finishes and typical U.S. construction costs around $180–$260 per sq ft, building a ~2,395 sq ft modern farmhouse may cost roughly $431,000–$623,000 USD, excluding land, permits, site preparation, utility hookups, and regional construction differences.

Why This Modern Farmhouse is Such a Strong All-Around Choice
This modern farmhouse plan delivers the comfort, charm, and function that make a home feel truly livable. With three bedrooms, 2.5 bathrooms, and an open main living area designed for connection, it supports busy family routines while still feeling calm and welcoming. It’s spacious without being overwhelming, stylish without being fussy, and designed to feel like home the moment you walk in.
0












