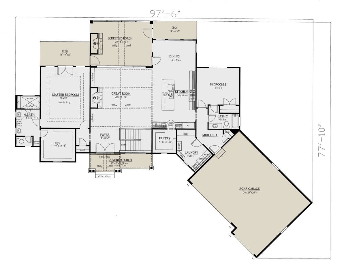
This Craftsman-style home offers about 3,869 sq ft of heated living space, delivering the perfect blend of timeless architectural charm and modern, family-friendly comfort. With 4 bedrooms and 4 full bathrooms, it’s designed for households that want space to spread out, privacy for everyone, and a layout that makes both everyday life and entertaining feel effortless. The square footage gives you room for generous gathering areas, flexible spaces, and quiet retreats—while the Craftsman style keeps the home feeling warm, welcoming, and full of character.

Exterior & Curb Appeal – Classic Craftsman Charm with a Strong, Upscale Presence
From the curb, this home makes a confident impression. Craftsman design is known for its rich detailing and grounded, substantial look, and this home fits that personality beautifully. With nearly 3,900 square feet, the exterior naturally feels expansive—but the Craftsman style keeps it approachable, not intimidating.
This is the kind of home that looks stunning with layered landscaping and warm lighting. A clean walkway, a few well-placed shrubs, and inviting entry lights can make the facade feel even more welcoming. It’s architectural, timeless, and the sort of home that feels like it will always look good—no matter what’s trending.

Outdoor Living – Space to Enjoy Fresh Air in Comfort
Outdoor living becomes a real lifestyle upgrade in a home this size. Whether you’re imagining a covered porch, a rear patio, or a comfortable outdoor seating area, this plan supports time outside in a way that feels natural and easy.
This is the perfect setup for weekend relaxation, outdoor meals, or casual gatherings where guests drift between indoor and outdoor zones. Outdoor space also helps the home feel even larger, creating that open-air breathing room that makes everyday life feel calmer and more enjoyable.
Main Living Area – Open, Welcoming, and Designed for Real Comfort
Step inside and the home immediately feels spacious. With 3,869 sq ft, the main living areas are designed to give you room to relax without making the home feel empty or cold. Craftsman homes shine when they feel cozy and livable, and this layout supports that warmth beautifully—even with its generous square footage.
The living room is designed for true comfort, with plenty of room for seating, conversation zones, and everyday family living. This is a space where movie nights feel cozy, guests feel welcome, and daily life flows smoothly without people bumping into each other.
The flow between the living room, kitchen, and dining spaces supports connection, making the home feel social and welcoming. Whether you’re entertaining or just spending time together, the layout makes it easy.

Kitchen & Dining – Built for Everyday Cooking and Hosting with Ease
The kitchen is positioned as a central hub, designed to handle everything from busy family meals to entertaining with confidence. In a four-bedroom home with this level of square footage, the kitchen is going to see a lot of activity—and this plan supports that beautifully.
The dining space is positioned nearby, making meals easy to serve and enjoy. It’s a comfortable setup for everyday dinners, but it also works well for larger gatherings when you want to host family and friends. This layout supports a home that feels welcoming and social, without feeling chaotic.
The kitchen-and-dining flow also makes entertaining smoother. You can cook while staying part of the conversation, guests can gather without crowding your workspace, and the home stays connected in the best way.

Primary Suite – A Private Retreat Designed for Relaxation
The primary bedroom is designed to feel like a true retreat—private, spacious, and calm. In a home of this size, the primary suite benefits from generous proportions and thoughtful placement, giving you a quiet space to recharge at the end of the day.
The attached bathroom adds everyday comfort and privacy, creating a routine that feels smoother and more relaxed. With 4 full bathrooms in the home, privacy is clearly a priority, and the primary suite reflects that beautifully.

Three Additional Bedrooms – Comfort, Space, and Flexibility
With 4 bedrooms, this home provides excellent flexibility for families, guests, and changing lifestyle needs. The secondary bedrooms can serve as kids’ rooms, guest spaces, or even dedicated rooms for hobbies or work-from-home routines.
What makes this layout especially appealing is the privacy built into the design. Everyone gets space to feel comfortable, and having four full bathrooms means bedrooms can be supported without constant sharing pressure. It’s a family-friendly setup that makes daily life easier.
These bedrooms also make the home future-ready. As needs change, rooms can shift roles without forcing the home to feel cramped or outdated.

Four Full Bathrooms – Luxury Convenience for Everyday Life
The 4 full bathroom count is a standout feature and a true luxury upgrade. It makes busy mornings smoother, reduces stress, and gives every member of the household more privacy. Whether you have kids, frequent guests, or a multi-age household, having four full bathrooms makes the entire home feel more peaceful.
This setup is also perfect for entertaining. Guests can feel comfortable, and family members aren’t forced to share private spaces. It’s one of those features that quietly improves life every single day.

Bonus Spaces & Flex Rooms – Room to Shape the Home Around Your Life
With nearly 3,900 square feet, this home naturally offers opportunities for bonus areas and flexible spaces. These extra zones can become a home office, a media room, a game area, a quiet study, or even a workout space depending on your needs.
The beauty of having extra space is that the home can grow with you. Your lifestyle today might look different in five years, and this plan is designed to adapt without needing major changes.
Laundry, Storage & Everyday Function
A spacious home only feels good when it stays organized, and this plan supports that with practical laundry and storage space. Closets, storage areas, and utility zones help keep clutter out of the main living areas, protecting the warm, welcoming feeling throughout the home.
These behind-the-scenes spaces make the home easier to manage. When everything has a place, the house feels calmer, cleaner, and more enjoyable—even during busy seasons.

Right-Sized Luxury – Spacious Without Feeling Wasteful
At 3,869 sq ft, this home provides luxury-level space without losing livability. You get generous gathering areas for entertaining, private retreats for relaxation, and enough bedrooms and bathrooms to make the home work comfortably for many different household types.
This is the kind of home that feels impressive but still welcoming. It’s large, yes—but it’s designed for real life, not just for show.

Specs Summary
- Living Area: ~3,869 sq ft
- Bedrooms: 4
- Bathrooms: 4 full
- Stories: 1–2 (depending on final configuration)
- Style: Craftsman
- Layout Highlights: Spacious gathering areas, private bedroom retreats, flexible bonus space potential, and luxury bathroom coverage
Lifestyle Highlights
- Craftsman curb appeal delivers timeless charm and architectural character.
- Four bedrooms provide comfortable space for family and guests.
- Four full bathrooms create smooth routines and high privacy.
- Generous square footage supports entertaining without crowding.
- Flexible space allows the home to adapt through different life stages.

Estimated U.S. Build Cost (USD)
With mid-to-high quality finishes and typical U.S. construction costs around $200–$290 per sq ft, building a ~3,869 sq ft Craftsman home may cost roughly $774,000–$1,122,000 USD, excluding land, permits, site preparation, utility hookups, and regional construction differences.

Why This Craftsman Home Feels Like the Perfect Blend of Space and Warmth
This Craftsman plan delivers generous square footage, strong architectural charm, and a layout designed for real comfort. With four bedrooms, four full bathrooms, and plenty of room to gather or retreat, it supports family life, entertaining, and long-term living with ease. It’s spacious without being cold, luxurious without being impractical, and full of the timeless character that makes Craftsman homes so loved.
0












