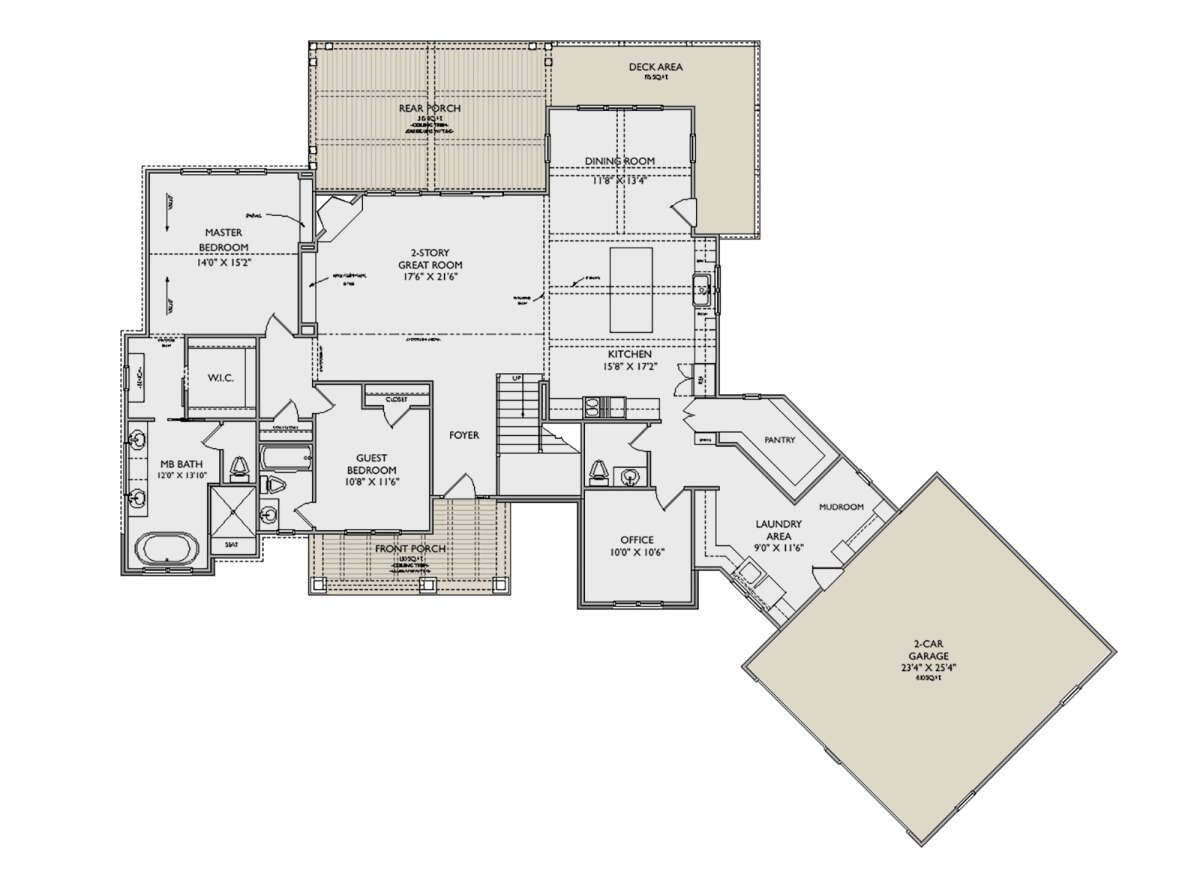
This Craftsman-style home offers about 3,070 sq ft of heated living space, delivering a layout that feels spacious, polished, and beautifully livable. With 4 bedrooms and an impressive 4.5 bathrooms, it’s designed for homeowners who want comfort, privacy, and a little extra luxury in the everyday routine. The beauty of a Craftsman home is how it blends charm and function—rich architectural presence outside, warm and welcoming flow inside, and thoughtful spaces that make family living and entertaining feel effortless.

Exterior & Curb Appeal – Classic Craftsman Character with Strong Presence
From the curb, this home carries that unmistakable Craftsman charm—grounded proportions, timeless detailing, and a look that feels both upscale and inviting. Craftsman style is known for its architectural character, and this home delivers that feeling of “quality you can see” before you even step inside.
The overall size adds to the home’s presence, making it feel substantial and refined. It’s the type of exterior that looks beautiful with stone paths, warm entry lighting, and layered landscaping that frames the home naturally. Even without heavy decorating, the style itself does the work—quietly confident, never flashy, and always elegant.
Outdoor Living – Space for Fresh Air and Relaxed Hosting
A home of this caliber feels even better when outdoor living is part of the experience. Whether you envision a covered porch, a backyard patio, or a comfortable outdoor seating area, this plan supports those moments that make life feel slower and sweeter—morning coffee, evening chats, or weekend gatherings where everyone ends up outside at some point.
Outdoor space also pairs beautifully with Craftsman style because it encourages that relaxed, lived-in feel. It’s easy to imagine seasonal decorating, cozy furniture, and warm lighting turning outdoor areas into extra living space without adding interior upkeep.

Main Living Area – Spacious, Connected, and Designed to Feel Welcoming
Inside, the home offers a layout designed for both comfort and connection. With 3,070 sq ft, the main living spaces have room to breathe, making the home feel open and welcoming without losing that cozy Craftsman warmth.
The living room becomes a natural gathering spot, offering space for full seating and everyday relaxation. It’s the kind of room where you can host comfortably, spread out as a family, and still have enough breathing room that the home feels calm even when it’s busy.
The flow through the main spaces feels smooth and practical, supporting both daily routines and special occasions. Whether it’s a quiet weeknight at home or a full house during celebrations, the design can handle it beautifully.
Kitchen & Dining – Built for Real Cooking and Real Gatherings
The kitchen is positioned to serve as the center of daily life, offering the kind of space that works for both everyday cooking and entertaining. In a home with four bedrooms and so many bathrooms, the kitchen needs to be functional and flexible—and this layout supports that with a connected flow to the dining and living spaces.
The dining area sits nearby, creating a comfortable place for meals that can feel casual day-to-day but still accommodate larger gatherings when needed. This arrangement makes hosting easier because people naturally gather where food is, and the home supports that social energy without feeling crowded.
In a Craftsman-style home, the kitchen and dining spaces also tend to feel warm and inviting—spaces that encourage conversation, connection, and long meals that turn into memories.
Primary Suite – A True Retreat with Comfort and Privacy
The primary bedroom is designed to feel like a real retreat, offering space, privacy, and a calming atmosphere away from the busiest areas of the home. With a home of this size, the primary suite becomes your personal recharge zone—quiet, comfortable, and easy to relax in at the end of the day.
The attached bathroom adds a luxurious touch, and with so many bathrooms in the home, comfort and privacy are clearly a top priority in the design. This suite supports smooth daily routines and gives you that “hotel comfort” feeling—without ever leaving home.

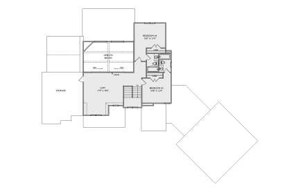
Additional Bedrooms – Comfort, Privacy, and Flexibility
With 4 bedrooms, this home is perfect for families, frequent hosting, or homeowners who want flexible space for different needs. The secondary bedrooms can serve as kids’ rooms, guest suites, or even dedicated spaces for hobbies and work-from-home life.
What makes this bedroom setup especially appealing is the privacy factor. A four-bedroom home with plenty of bathroom access means everyone can have their own space and routines without stepping on each other’s toes. It’s ideal for households where comfort matters and everyone wants a little room to breathe.
4.5 Bathrooms – A Luxury Feature That Changes Daily Life
The 4.5 bathroom count is a major highlight of this home. It’s not just impressive on paper—it’s genuinely life-changing in daily routines. Multiple bathrooms reduce stress, improve privacy, and make the home far more comfortable for guests and family alike.
The half bath is perfect for visitors, keeping guest traffic out of private areas. Meanwhile, the full bathrooms support a smooth daily flow, especially during mornings when everyone’s getting ready. With this setup, the home feels comfortable even when it’s busy, and hosting becomes far easier.
It’s the kind of feature that once you experience, you’ll never want to go back. Even the home itself feels less stressed. (Yes, homes have feelings. This one feels peaceful.)

Laundry & Storage – Everyday Support Spaces that Keep Things Organized
A spacious home only feels good if it stays organized, and this plan supports that with practical storage and utility areas. Laundry space, closets, and everyday organization features help keep the main living areas looking clean and welcoming.
In a family home, storage is what keeps things from feeling chaotic. When backpacks, shoes, supplies, and seasonal items have a place, the entire home feels calmer and easier to manage.
Room to Entertain – A Layout That Handles Guests Beautifully
With over 3,000 square feet, this home is built for entertaining in a comfortable, natural way. You can host friends and family without everyone piling into one cramped area. The main spaces support connection, while the bedroom layout allows guests and family members to enjoy privacy when needed.
This is the kind of home that can handle holidays, birthdays, weekend visitors, and spontaneous gatherings—while still feeling comfortable and livable on ordinary quiet days.
Specs Summary
- Living Area: ~3,070 sq ft
- Bedrooms: 4
- Bathrooms: 4 full + 1 half
- Stories: 1–2 (depending on final configuration)
- Style: Craftsman
- Layout Highlights: Spacious main living areas, private bedrooms, exceptional bathroom count, and a welcoming flow for everyday life and entertaining

Lifestyle Highlights
- Craftsman exterior offers timeless character and upscale curb appeal.
- 4 bedrooms provide flexibility for family living, guests, or office space.
- 4.5 bathrooms deliver luxury-level comfort and smoother routines.
- Spacious layout supports entertaining without sacrificing daily livability.
- Right mix of elegance and warmth, designed for long-term enjoyment.

Estimated U.S. Build Cost (USD)
With mid-to-high quality finishes and typical U.S. construction costs around $190–$270 per sq ft, building a ~3,070 sq ft Craftsman home may cost roughly $583,000–$829,000 USD, excluding land, permits, site preparation, utility hookups, and regional construction differences.

Why This Craftsman Home Feels Like Everyday Luxury
This Craftsman plan delivers the kind of warmth, space, and comfort that makes a home feel truly special. With four bedrooms, 4.5 bathrooms, and beautifully livable gathering spaces, it supports family life, entertaining, and long-term comfort without compromise. It’s elegant without being stiff, spacious without being wasteful, and full of timeless character that will feel just as beautiful years from now as it does on move-in day.












