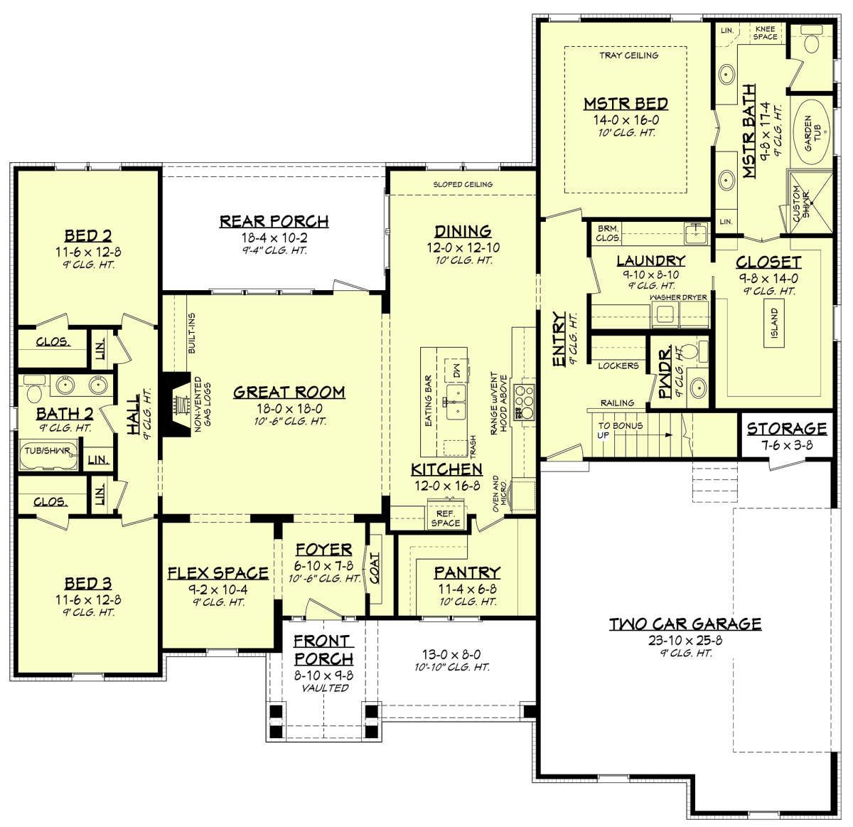
This beautifully crafted Craftsman home plan delivers about 2,358 sq ft of welcoming, well-balanced living space on a single level. With 3 bedrooms, 2 full bathrooms, and 1 half bathroom, plus a flexible bonus room above the garage, this design blends traditional Craftsman charm with modern, family-friendly planning. Its open interior, covered porches, and smart everyday features make it perfect for both relaxed living and entertaining. 0

Charming Craftsman Curb Appeal & Outdoor Living
The exterior makes a warm first impression with classic Craftsman styling — balanced rooflines, mixed materials, and a welcoming covered front porch that enhances curb appeal and invites outdoor moments. 1 A covered rear porch adds another layer of outdoor living, perfect for casual meals or quiet relaxation. 2 The overall footprint of about 67′ 6″ wide × 65′ 4″ deep offers a grounded yet substantial presence on a variety of lot types. 3
Front and rear covered outdoor spaces extend your usable living area, offering shaded places to unwind and connect with the outdoors year-round. 4

Welcoming Entry & Open Central Spaces
Inside, a generous foyer leads to the heart of the home, where an open living room, dining area, and kitchen form a unified living zone filled with natural light. 5 The great room centers around a cozy fireplace and built-ins — a perfect focal point for family time or evenings with friends. 6 Large windows throughout help daylight stream deep into the interior, creating a bright and uplifting atmosphere. 7
The open layout makes everyday interaction effortless while still clearly defining spaces for relaxed lounging and social gatherings. 8
Kitchen Designed for Everyday Life & Entertaining
The kitchen is thoughtfully positioned within the open living area, featuring a central island that offers prep space, casual seating, and a natural gathering hub. 9 Ample cabinetry and counter space support efficient meal preparation, and easy access to the dining area keeps the flow intuitive and comfortable. 10
Natural sightlines connect the kitchen to both the living room and outdoor porch, making this space feel bright and social. 11

Primary Suite — Private & Comfortable Retreat
The primary bedroom is tucked off the main living areas, providing a peaceful retreat with generous space for restful furnishings. 12 Its attached ensuite bathroom offers dual vanities, thoughtful storage, and an efficient layout that enhances everyday comfort. 13 A spacious closet helps keep personal items organized and accessible. 14

Secondary Bedrooms — Comfortable & Versatile
Two additional bedrooms sit away from the primary suite yet remain close to shared living areas. 15 These rooms are well sized for family members, guests, or flexible uses like a home office or hobby space. 16 A shared full bathroom with practical storage and fixtures serves these rooms without interrupting daily flow. 17

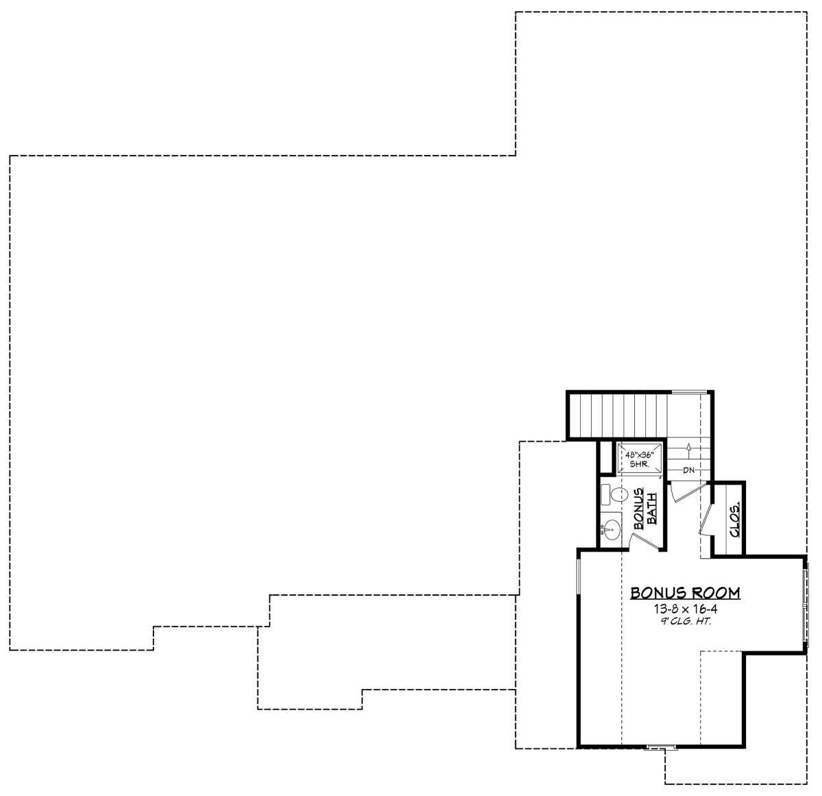
Bonus Room & Flex Space
Above the garage, a flexible bonus room adds valuable extra square footage — perfect as a media room, play space, guest suite, or hobby area. 18 This adaptable space enhances the home’s functionality and accommodates changing lifestyle needs over time. 19

Mudroom, Laundry & Everyday Ease
Entering from the side-entry garage, a dedicated mudroom with built-in storage helps keep daily clutter organized. 20 A conveniently located laundry room nearby adds practicality and brings everyday chores out of the main living zones, helping maintain a tidy home. 21

Indoor-Outdoor Connection & Natural Light
Thoughtfully placed windows and doors reinforce connections to the covered porch spaces while allowing plenty of natural light to fill the interior. 22 This seamless indoor-outdoor flow enhances both comfort and ambiance, making every space feel bright and welcoming. 23

Dimensions & Key Features
- Total Heated Area: ~2,358 sq ft 24
- Bedrooms: 3 25
- Bathrooms: 2 full + 1 half 26
- Stories: Single level 27
- Porch / Outdoor Living: Covered front and rear porches 28
- Garage: Side-entry 2-car attached (~673 sq ft) 29
- Width: ~67′ 6″ 30
- Depth: ~65′ 4″ 31

Lifestyle Highlights
- Open central living area that feels bright, connected, and perfect for family life or entertaining.
- Kitchen island serving as a functional focal point and social hub.
- Primary suite designed as a private retreat with plenty of storage.
- Bonus room offering flexible space for hobbies, guests, or media.
- Mudroom and laundry zones that streamline everyday routines.
- Covered front and rear porches that extend your living space outdoors.

Estimated U.S. Build Cost (USD)
Assuming typical U.S. residential construction costs of around **$180–$260 per sq ft**, building this ~2,358 sq ft Craftsman home could range between **$425,000 and $613,000 USD** (excluding land, permits, site preparation, and regional cost differences). 32
Why This Craftsman Plan Works
This Craftsman floor plan pairs timeless exterior styling with a functional, family-focused interior. Its open shared spaces, flexible bonus room, and thoughtful everyday features make it a home that supports everyday living and entertaining alike. With ample natural light and indoor-outdoor connections, it’s a thoughtful design that feels welcoming, efficient, and enduring.












