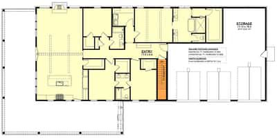
This house plan presents a one-story, 4-bedroom modern farmhouse with a barndominium vibe — offering comfortable living and generous utility space. The total heated area is 2,500 square feet, paired with an oversized 1,260 sq ft 3-car garage/workshop. 2

Exterior & Overall Dimensions
- Footprint width: 108′ 0″, depth: 56′ 0″. 3
- Maximum ridge height: 27′ 0″. 4
- Construction with conventional wood framing and 2×6 exterior walls. 5
- Architectural style blends “barndominium,” “modern farmhouse,” “New American,” and “traditional,” giving a rustic yet modern feel. 6
- Large wrap-porch and big windows enhance curb appeal and connect the indoors with outdoors. 7

Interior Layout & Living Spaces
The interior is designed with an open-concept layout: the great room, dining area, and kitchen flow together — accentuated by massive vaulted ceilings. 8 The kitchen has an eat-at island and a large walk-in pantry, ideal for family meals and storage. 9
Bedrooms are clustered, with a main-level master suite — making the home convenient and accessible. 10 The plan includes a main-level laundry room and a mudroom, adding to everyday practicality. 11

Garage & Workshop Utility Space
A standout feature is the oversized attached 3-car garage (1,260 sq ft), which doubles as a workshop and has overhead storage above the main living area — great for tools, equipment, or extra storage space. 12 The garage entry is placed on the side, allowing a full front facade free for porch and windows. 13
Design Considerations & What’s Included
- The plan set includes full construction drawings: foundation plan, floor plan with window and fixture details, exterior views, roof plans, cross-sections, electrical layout, and code/energy information. 14
- It does not include engineering or structural stamps, mechanical or plumbing layouts, or site-specific drawings like wind/seismic, so local adaptation will be needed. 15

Why This Plan Works — Especially in Semi-Rural or Spacious Settings
This plan shines if you want a home that feels open and airy inside, with strong indoor–outdoor appeal and a roomy garage/workshop — ideal for rural or semi-rural plots, especially if you value storage or plan to keep equipment, tools or vehicles. The wrap porch and large windows suit climates where enjoying the outdoors is part of daily life.
The single-floor layout with everything on one level makes it comfortable for families, aging in place, or anyone preferring minimal stairs. The barn-style aesthetic — combined with modern touches — gives flexibility in finishes and materials, allowing adaptation to local building styles and climatic needs.
Given your context in Arusha (or East Africa broadly), the open layout, large windows, and covered porch could be quite suitable — you might consider adapting materials (e.g. roof, wall finishes) for local climate (heat, rain) and ventilation. The garage/workshop could be handy if you plan to use it for storage, vehicles, or workspace.

Possible Adaptations & Local Considerations
- Consider adapting roof materials and pitch to local rainfall — though the plan’s 7 on 12 primary roof pitch provides good runoff. 16

- Ensure local structural design (foundations, beams) accounts for seismic or soil conditions; since the plan doesn’t include those, you’ll need a qualified local engineer to adapt it.
- Use local finishes and ventilation strategies to suit climate — large windows and covered porch are good, but additional shading or window placement could help manage heat.
- Customize floor plan if needed: depending on household size and usage (e.g. workshop vs extra bedrooms), rearranging or resizing some spaces might give better flow for local living patterns.

Overall, Plan 51951HZ offers a balanced mix of modern farmhouse comfort, open-plan living, generous utility space with workshop/garage, and a flexible aesthetic that can be adapted for different environments and lifestyles. It’s particularly appealing if you value a roomy, functional home with a rustic yet contemporary character.
17












