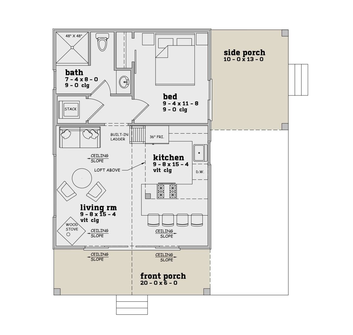
This charming cabin design offers about 560 sq ft of heated living space, proving that small can still feel incredibly comfortable when the layout is planned right. With 1 bedroom and 1 full bathroom, it’s an ideal fit for a quiet weekend retreat, a guest house, a downsized lifestyle, or even a cozy starter home for someone who loves simplicity and low maintenance. The footprint is compact, but the lifestyle feels big—because when a home is this easy to care for, you spend less time managing space and more time actually enjoying it.

Exterior & Curb Appeal – Cabin Charm that Feels Like a Warm Welcome
From the outside, this cabin carries that classic, comforting look that makes people instantly relax. Cabin-style homes naturally feel warm and grounded, like they belong near trees, quiet hills, or anywhere the world slows down a little. Even if you build it on a simple lot, the cabin exterior creates that peaceful vibe people crave.
The smaller scale makes it feel approachable and cozy, not imposing. It’s the kind of place you can picture with a gravel path, a couple of outdoor lights, and maybe even a few chairs near the entry—because cabins have a way of making you want to sit down and breathe.

Outdoor Living – Your Front-Row Seat to Fresh Air
A cabin lifestyle is all about enjoying the outdoors, and this plan supports that beautifully. Even a modest porch, deck, or outdoor sitting space can become the best “room” in the house. It’s where you sip coffee in the morning, enjoy quiet evenings, or listen to rain while staying comfortably sheltered.
With a home this compact, outdoor living feels like your bonus square footage. It gives you space to spread out mentally, even if the home itself stays small and simple. Add a small table for outdoor meals or a cozy seating area, and suddenly this cabin becomes a full lifestyle experience.
Main Living Area – Cozy Comfort with an Open Feel
Step inside and you’ll find a main living space that’s designed to feel open and easy, not cramped. The living room area is sized for comfortable seating, a small entertainment setup, and the kind of relaxed daily living that feels effortless. In a cabin, comfort matters more than formality, and this plan stays true to that idea.
This is the kind of space where you can curl up with a book, enjoy a slow morning, or host a couple of close friends without feeling crowded. And because the home is small, everything feels within reach—no long walks to grab a blanket or refill your drink. Convenience is built right in.
The layout also allows the interior to feel warm and connected, which is exactly what you want in a cabin. It’s cozy, not claustrophobic—a very important difference.

Kitchen & Dining – Simple, Functional, and Easy to Maintain
The kitchen in this cabin is designed to be practical and efficient, supporting everyday cooking without wasting space. In a 560 sq ft home, the kitchen doesn’t need to be massive—it just needs to work well. And this layout delivers that functional comfort.
The dining area is typically compact, but perfectly suitable for daily meals. Whether it’s a small table for two or a cozy dining nook, it’s enough space to enjoy meals comfortably without sacrificing your living area.
This kitchen-and-dining setup is perfect for cabin living because it keeps life simple. Less space to clean, fewer corners to clutter, and more time for what you actually want to do—relax, recharge, and enjoy your surroundings.

Bedroom – A Quiet, Restful Retreat
The bedroom is designed as a calm private space, giving you a comfortable retreat that feels separate from the main living area. Even in a small cabin, having that sense of privacy makes the home feel more complete.
It’s the kind of bedroom that supports rest, not stress. It’s sized for comfort, and it offers just enough space to feel cozy and relaxing—perfect for quiet nights and slow mornings when you don’t need to rush anywhere.

Full Bathroom – Practical Comfort in a Compact Home
With 1 full bathroom, this cabin keeps things simple and functional. The bathroom is designed to support everyday routines without taking up too much space, which is exactly what you want in a small home.
For a cabin or retreat, this setup is perfectly comfortable. It gives you the essentials you need while keeping the overall footprint efficient and easy to maintain.

Laundry & Storage – Small Home Organization That Matters
In a compact cabin, organization is everything. A small home can feel wonderful when it stays tidy, and stressful when it doesn’t. That’s why storage and smart layout planning matter so much here.
This plan supports a lifestyle of simplicity, where you keep what you need and enjoy the calm that comes with having less clutter. With thoughtful storage and a practical layout, the cabin stays functional without needing extra square footage.

Right-Sized Cabin Living – Less Maintenance, More Freedom
At 560 sq ft, this cabin is extremely easy to maintain. Cleaning is quick, upkeep is minimal, and operating costs are typically lower than larger homes. It’s the perfect choice for homeowners who want a simple lifestyle, a weekend retreat, or a peaceful space to escape the noise of daily life.
This kind of home encourages a slower pace. You don’t spend your free time managing extra rooms—you spend it enjoying your space, enjoying your surroundings, and enjoying the quiet.

Dimensions & Footprint Notes
With a compact footprint designed around 560 sq ft of interior living space, this cabin is ideal for smaller lots, scenic properties, or backyard guest-house setups. Its smaller size makes it easier to place on a wide range of sites, and it can be a great choice for homeowners who want an efficient build without sacrificing comfort.


Specs Summary
- Living Area: ~560 sq ft
- Bedrooms: 1
- Bathrooms: 1 full
- Stories: 1 (single-level living)
- Style: Cabin
- Layout Highlights: Cozy open living space, efficient kitchen, private bedroom, and low-maintenance simplicity

Lifestyle Highlights
- Perfect as a weekend retreat, guest house, or simple full-time home.
- Compact footprint keeps cleaning and maintenance fast and easy.
- Cabin curb appeal delivers a warm, peaceful atmosphere.
- Efficient layout feels comfortable without wasted space.
- Outdoor living potential makes the lifestyle feel bigger than the size.



Estimated U.S. Build Cost (USD)
With typical U.S. construction costs around $200–$320 per sq ft for a small custom cabin build (smaller homes often cost more per square foot), building ~560 sq ft may cost roughly $112,000–$179,000 USD, excluding land, permits, site preparation, utility hookups, and regional construction differences.

Why This Cabin Feels Like the Perfect Escape
This cabin plan is small, cozy, and beautifully simple—exactly what many people want when life feels too busy. With one bedroom, one bathroom, and a warm open living space, it offers comfort without excess and charm without complication. Whether you build it as a peaceful retreat, a guest house, or your own minimalist home base, it delivers a lifestyle that feels calm, affordable, and wonderfully easy to maintain.
0













