This inviting barndominium plan offers about 1,260 sq ft of bright, open, and highly efficient living space wrapped in contemporary barn-style design. With 2 bedrooms and 2 full bathrooms, this single-story layout blends modern comfort with rustic character, making it ideal for small families, couples, downsizers, or anyone who loves flexible, uncluttered living. 0

Modern Barn Exterior & Curb Appeal
The exterior showcases a clean, streamlined barndominium aesthetic with bold rooflines and a balanced silhouette that feels both modern and timeless. 1 A covered front porch instantly enhances curb appeal while creating a comfortable outdoor living zone — perfect for morning coffee, quiet conversations, or unwinding in the evening. 2
With a footprint that fits neatly on smaller lots, the design makes the most of every inch without sacrificing style or presence. 3
Front Porch & Outdoor Living
The covered front porch adds functional outdoor space that extends your living area beyond the interior walls. 4 It provides a welcoming place to relax, enjoy fresh air, and connect with neighbors or nature. 5 The exterior doors and windows link this outdoor area to the interior, encouraging indoor-outdoor flow and abundant daylight throughout the home. 6

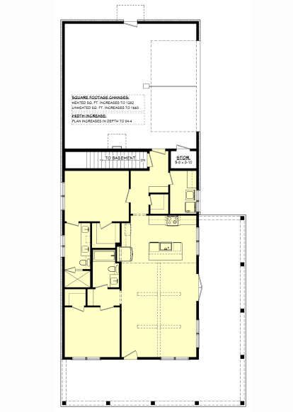
Open Main Living Zone — Heart of the Home
Stepping inside, you’ll find an open floor plan where the living area, kitchen, and dining space flow together seamlessly. 7 This central gathering zone takes full advantage of the home’s open structure, creating bright, airy spaces that feel larger than their square footage. 8 Generous windows allow natural light to fill the interior, enhancing the sense of openness and comfort. 9
The shared layout makes it easy to stay connected with family or guests whether you’re cooking, dining, or relaxing. 10
Kitchen — Compact Yet Capable
The kitchen is designed to balance efficiency and functionality. 11 With well-placed counters and cabinets, this space supports everyday meal preparation without crowding the open living area. 12 A thoughtful layout ensures easy workflow, while proximity to the dining area keeps social interaction natural and uninterrupted. 13
Whether you’re cooking a weeknight dinner or entertaining, the kitchen contributes to the home’s welcoming atmosphere. 14

Primary Bedroom — Private & Comfortable
The primary bedroom serves as a restful retreat tucked away from main living zones. 15 Its generous proportions accommodate a full bedroom suite, and nearby windows bring in natural daylight along with pleasant views. 16 An adjacent full bathroom provides convenience and privacy, enhancing everyday comfort. 17
A spacious closet helps keep clothing and essentials organized. 18

Secondary Bedroom — Flexible & Practical
The second bedroom is located on the opposite side of the floor plan, offering privacy and quiet space for family members or guests. 19 This room also works well as a home office, hobby space, or guest suite depending on your lifestyle needs. 20
With a convenient full bathroom nearby, this bedroom supports both resident comfort and guest convenience. 21

Bathrooms & Everyday Ease
This plan includes 2 full bathrooms, making it well suited for daily routines and overnight guest stays. 22 Each bathroom is thoughtfully configured with efficient fixtures and storage that support everyday flow and function. 23
Utility & Storage Spaces
Thoughtful storage solutions and a dedicated utility zone help keep everyday essentials organized without interrupting the home’s clean lines. 24 These practical elements ensure that storage needs are met while preserving the open, uncluttered feel of the interior. 25

Indoor-Outdoor Connection & Natural Light
Generous windows and doors along the main living spaces bring in abundant daylight and reinforce visual connections to the outdoors. 26 This natural light not only brightens interior spaces but also helps them feel larger and more welcoming. 27
Dimensions & Key Features
- Total Heated Area: ~1,260 sq ft 28
- Bedrooms: 2 29
- Bathrooms: 2 full 30
- Stories: Single level 31
- Porch: Covered front porch 32
- Style: Barndominium / Modern Rustic 33

Lifestyle Highlights
- Open living area that feels bright and welcoming despite efficient size.
- Covered front porch extends usable space and enhances curb appeal.
- Two full bathrooms support everyday comfort and guest convenience.
- Flexible bedroom layout suits small families, couples, or downsizers.
- Natural light and indoor-outdoor connection create uplifting interiors.
Estimated U.S. Build Cost (USD)
Assuming typical U.S. residential construction costs of around $170–$250 per sq ft, building this ~1,260 sq ft barndominium could range between **$214,000 and $315,000 USD**. This estimate excludes land, site preparation, permits, and regional cost differences. 34

Why This Barndominium Plan Works
This barndominium plan balances modern comfort with rustic charm, offering open, efficient living spaces that feel larger than their square footage. Its thoughtful layout, generous porch, and practical features make it ideal for those seeking stylish, functional, and flexible space. Whether you’re hosting guests or enjoying everyday routines, this design provides comfort, character, and timeless appeal. 35
0











