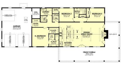
This modern barndominium plan delivers approximately 1,878 sq ft of thoughtfully arranged, open living space that blends contemporary design with rustic barn-inspired character. Featuring 3 bedrooms, 2 full bathrooms, and 1 half bathroom, this plan balances bright shared spaces with private retreats — ideal for individuals, couples, or families who want functional comfort with style. 0

Modern Barndominium Exterior & Curb Appeal
The exterior presents classic barn-inspired form with clean lines, a bold roofline, and a welcoming covered porch that enhances curb appeal. 1 The façade pairs modern simplicity with rustic warmth, creating a presence that suits both rural settings and modern suburban landscapes. 2 A generous covered outdoor space frames the front entry, offering a relaxed spot for lounging, morning coffee, or catching up with neighbors. 3

Front Porch & Outdoor Living
The covered front porch significantly expands the home’s usable living area, offering an ideal place for outdoor seating and seasonal moments. 4 Thoughtful placement of windows and doors strengthens the connection between indoors and outdoors, allowing light and views to flow into key interior zones. 5 Whether relaxing at sunset or greeting guests, this porch delivers comfort and charm year-round. 6

Open Central Living Area — Heart of the Home
Stepping inside, you enter a generous open living zone anchored by the living room, kitchen, and dining area. 7 The layout promotes effortless flow, making daily routines and social gatherings feel natural and connected. 8 Large windows flood the interior with daylight, creating a warm, inviting ambiance throughout the day. 9

This open-concept arrangement fosters interaction and flexibility — whether you’re hosting friends or enjoying quiet family evenings. 10

Kitchen — Functional & Social Hub
The kitchen supports everyday life with a layout that prioritizes efficiency and connection. 11 A central island offers prep space and casual seating, perfect for breakfasts or casual conversations while cooking. 12 Ample counter space and thoughtfully placed cabinetry keep essentials organized and within reach. 13

Its proximity to the dining area ensures that serving and cleanup flow smoothly — an important advantage for entertaining. 14

Primary Suite — Peaceful Retreat
The primary bedroom suite serves as a private haven, tucked away from the busier common areas. 15 Its generous proportions accommodate comfortable furnishings, while adjacent windows let in soft natural light. 16 The ensuite bathroom delivers everyday convenience with a thoughtful fixture layout and ample storage. 17

A spacious closet adds practicality and keeps personal items well-organized. 18

Secondary Bedrooms — Comfortable & Versatile
Two additional bedrooms provide comfortable space for family members, guests, or adaptable needs like a home office or creative nook. 19 These rooms share a well-appointed full bathroom and have easy access to the main living zones without compromising privacy. 20

The flexible nature of these spaces supports a variety of lifestyles over time. 21

Half Bath & Daily Convenience
A conveniently located half bathroom adds practicality for guests and everyday use without interrupting the home’s flow. 22 Combined with the full bathrooms, this setup supports both privacy and efficiency in daily routines. 23

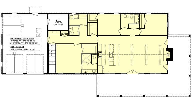
Utility & Storage Solutions
Dedicated storage zones and closets throughout the home ensure essentials are organized and out of sight. 24 A laundry area enhances convenience without interrupting main living spaces, supporting efficiency and comfort. 25

Indoor-Outdoor Connection & Natural Light
Strategically placed windows and patio doors draw natural light deep into the interiors and reinforce smooth visual connections between indoor spaces and the outdoors. 26 These elements enhance the sense of openness and make everyday living more pleasant and uplifting. 27

Dimensions & Key Features
- Total Heated Area: ~1,878 sq ft 28
- Bedrooms: 3 29
- Bathrooms: 2 full + 1 half 30
- Stories: Single level 31
- Porch: Covered front porch 32
- Style: Barndominium / Modern Rustic 33

Lifestyle Highlights
- Open living area designed for connection and flexibility.
- Front porch that expands usable space and enhances comfort.
- Functional kitchen with central island for everyday use and gatherings.
- Private primary suite tucked from main activities.
- Secondary bedrooms adaptable to changing needs.
- Efficient utility and storage zones enhance daily life.

Estimated U.S. Build Cost (USD)
Assuming typical U.S. residential construction costs of about $180–$260 per sq ft, building this ~1,878 sq ft barndominium plan could range between **$338,000 and $488,000 USD** (excluding land, permits, site prep, and regional cost differences). 34

Why This Barndominium Plan Works
This barndominium plan blends modern aesthetics with practical living spaces that adapt to everyday routines and lifestyle needs. Its open layout, inviting porch, and flexible bedrooms make it perfect for families, guests, or creative uses, while thoughtful storage and utility features help maintain a comfortable, organized home. 35
0












