This striking barndominium plan offers approximately 2,456 sq ft of thoughtful, open living space designed to blend rustic barn-style character with modern comfort. Featuring 3 bedrooms, 2 full bathrooms, 1 half bathroom, a loft, office space, wrap-around porch options, and a generous two-car garage, this plan is ideal for homeowners seeking flexible living, indoor-outdoor connection, and plenty of room for both daily life and entertaining. 0

Rustic Meets Modern Curb Appeal
The exterior presents a clean barn-inspired silhouette with strong rooflines and balanced proportions that feel both bold and welcoming. 1 A wrap-around porch adds classic country charm while creating multiple outdoor seating zones for relaxing evenings, morning coffee, or friendly conversation. 2 Whether set against a rural landscape, a wooded backdrop, or a more suburban site, this home promises lasting presence and curb appeal. 3
With a width of around 78′ and depth near 48′, the design occupies its footprint efficiently while balancing visual appeal and spatial flexibility. 4

Porches & Outdoor Living Spaces
Porches are a standout feature of this plan, offering generous covered outdoor living areas that extend your usable home space. 5 These outdoor zones create comfortable settings for dining al fresco, shaded relaxation, or watching nature unfold around you. 6 Whether you’re hosting summer barbecues or unwinding with a drink at sunset, the porch areas enrich the home’s everyday experience. 7
Open Main Living Area — Heart of the Barndo
Stepping inside, you’re greeted by a voluminous open floor plan that combines the kitchen, dining, and living areas into a cohesive gathering hub. 8 Large windows and tall ceilings heighten the sense of space and light, making the interior feel both expansive and welcoming. 9
The open configuration ensures that social interaction flows naturally between spaces — perfect for family life, entertaining guests, or staying connected during everyday activities. 10
Kitchen — Functional & Central
The kitchen is thoughtfully positioned as both a functional workspace and a social anchor. A central island provides ample prep space, casual seating, and a focal point for conversation. 11 With plenty of cabinetry and counter space, this zone supports efficient meal preparation without feeling cramped. 12
Nearby sightlines to the dining and living areas mean the cook never feels isolated — a layout that’s equally enjoyable for daily meals and holiday gatherings. 13

Primary Suite — Private & Peaceful
The primary bedroom is positioned to offer privacy at the end of the home, creating a peaceful retreat from daily bustle. 14 Its generous dimensions make room for comfortable furnishings and bathed in natural light from nearby windows. 15
The ensuite bathroom enhances everyday convenience with a well-planned layout and storage for essentials, helping keep your routines smooth and organized. 16

Secondary Bedrooms & Guest Comfort
Two additional bedrooms provide flexible accommodations for family members, overnight guests, or even a home office. 17 These rooms are sized for comfort and positioned near the shared full bathroom, ensuring ease of use for residents and visitors alike. 18
Whether used for sleeping, creative pursuits, or workspace, these bedrooms adapt easily to changing lifestyle needs over time. 19

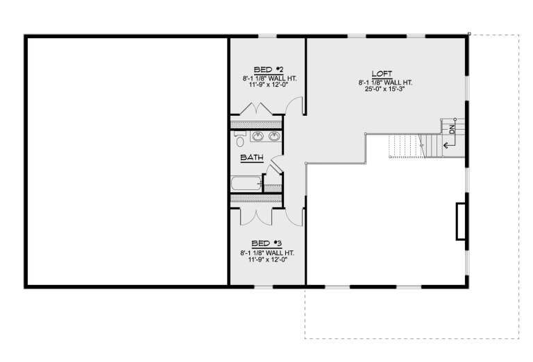
Loft & Office — Flexible Bonus Spaces
One of this plan’s defining features is the loft — a versatile upper-level space that can function as a media room, play area, reading nook, or secondary lounge. 20 Adjacent to the loft, a dedicated office adds valuable workspace, ideal for remote work, study, or creative projects. 21
This combination of adaptable spaces enriches daily living and gives you room to tailor the home to your family’s unique lifestyle. 22

Bathrooms & Practical Convenience
With 2 full bathrooms and 1 half bathroom, this home supports both resident comfort and guest needs. 23 Thoughtful placement keeps daily routines efficient and minimizes traffic bottlenecks during busy mornings or gatherings. 24
A powder room near the main living areas also adds convenience and keeps private bathrooms free for personal use. 25

Garage, Storage & Utility Areas
An attached two-car garage offers secure space for vehicles, tools, or outdoor gear — a practical asset for everyday living. 26 Ample storage space throughout the home helps keep belongings organized, reducing clutter and enhancing the sense of spaciousness. 27
Functional zones like the laundry room and closet space further streamline daily life without compromising style or flow. 28

Indoor-Outdoor Connection & Natural Light
Abundant windows and glass doors throughout the living spaces draw in natural light and reinforce the indoor-outdoor connection. 29 These features not only brighten interiors but also frame views of the porch and landscape, making indoor spaces feel larger and more inviting. 30
Dimensions & Key Features
- Total Heated Area: ~2,456 sq ft (two levels) 31
- Bedrooms: 3 32
- Bathrooms: 2 full + 1 half 33
- Stories: 2 34
- Garage: 2-car attached 35
- Width: ~78′ 36
- Depth: ~48′ 37
- Outdoor Living: Covered porch / wrap-around porch options 38
Lifestyle Highlights
- Open plan fosters connection and light throughout daily life.
- Wrap-around porch areas expand your living space outdoors.
- Flexible loft and office spaces enhance versatility and adaptability.
- Private primary suite with easy access to practical zones.
- Two-car garage and storage support organization and convenience.
Estimated U.S. Build Cost (USD)
Assuming typical U.S. residential construction costs of around $170–$250 per sq ft for barndominium-style homes, building this ~2,456 sq ft plan could range between approximately **$417,000 and $614,000 USD**. This estimate excludes land, site preparation, permits, and regional variations in cost. 39

Why This Barndominium Plan Works
This barndominium plan blends rustic architectural heritage with modern living needs. With its open main living area, adaptable loft and office spaces, generous porch options, and comfortable bedroom layout, it’s perfect for homeowners seeking flexibility, style, and everyday comfort — all wrapped in a design that’s as functional as it is inviting. 40
0












