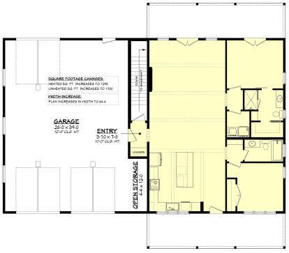
This barndominium plan offers approximately 1,260 sq ft of comfortable and versatile living space designed around an open, functional layout. With 2 bedrooms and 2 full bathrooms, this single-level home blends rustic barn-style character with contemporary farmhouse sensibilities. The spacious interior, generous porch areas, and efficient plan make it perfect for full-time living, a relaxed retreat, or flexible rural or suburban lifestyle. 0

Rustic Curb Appeal & Porch Living
The exterior of this barndominium reflects classic barn-inspired design with clean lines and expansive roof pitches that convey strength and simplicity. A broad wraparound porch adds nearly 504 sq ft of outdoor living space—split into front and rear covered areas—that invites you to enjoy fresh air year-round. 1 This porch is ideal for rocking chairs, café tables, firepit gatherings, or simply stretching out with a good book in the shade. 2
Because the plan sits about 60′ wide × 56′ deep, it achieves a balanced presence on the lot without feeling overly massive, marrying rustic charm with practical dimensions. 3

Open Main Living Area with Seamless Flow
Stepping inside, the open floor plan immediately feels welcoming and natural. The combined living, dining, and kitchen areas are designed to maximize space and light, creating a fluid hub for daily life and social interaction. 4 Large windows and high ceilings help this central zone feel larger than its footprint, fostering an airy and connected atmosphere. 5
This open plan supports a variety of furniture arrangements and daily routines—whether you’re enjoying quiet evenings or hosting friends and family. 6

Kitchen Designed for Function & Connection
The kitchen sits conveniently within the open living zone, featuring a central island that serves as both prep space and an informal gathering spot. 7 Ample countertop area and cabinetry provide practical storage and workflow for everyday cooking, while open sightlines keep the cook engaged with the rest of the household activities. 8
With its connection to the dining space, the kitchen encourages shared meals and lively conversation without separation from the main living room. 9

Family Room — Comfortable & Versatile
The family room offers a cozy yet open area for relaxing, watching television, or simply spending time together. Its location at the heart of the home ensures connection with the kitchen and dining area, while generous windows frame outdoor views and let natural light fill the space. 10
This flexible room supports everyday life and entertaining alike, with enough space to personalize according to your lifestyle. 11

Primary Suite — Peaceful & Private
The primary bedroom is positioned to provide privacy and restful comfort. 12 Its generous proportions allow for a comfortable bedroom setup with space for furniture and personal touches. 13 The adjacent full bathroom offers convenience and functionality with thoughtful fixture placement and ample circulation space. 14
Windows in the suite ensure a bright, airy feel while providing a connection to the outdoors. 15

Second Bedroom — Flexible & Practical
The second bedroom offers versatile space for family members, guests, or a home office. Its proximity to the shared bathroom makes it convenient for users without interrupting the privacy of the primary suite. 16 This room can adapt to changing needs over time, whether as a guest room, hobby space, or flexible work area. 17

Bathrooms & Everyday Ease
With two full bathrooms, this plan accommodates both household living and guest comfort. The shared bathroom adjacent to the second bedroom is configured for easy access, while the private primary bathroom enhances daily routines. 18 Thoughtful placement of these spaces supports smooth circulation throughout the home. 19

Laundry & Practical Storage
A dedicated laundry area adds convenience and keeps chores contained within a functional zone. Additionally, storage solutions throughout help maintain a tidy and organized interior—an important feature in a compact yet well-planned home. 20

Indoor-Outdoor Connection & Natural Light
Windows and doors throughout the home are sized and positioned to maximize daylight, reinforcing the indoor-outdoor connection and enhancing the sense of space. 21 Access to the wraparound porch expands your living footprint and encourages outdoor enjoyment, from morning sunrises to evening gatherings. 22

Dimensions & Key Features
- Total Heated Area: ~1,260 sq ft 23
- Bedrooms: 2 24
- Bathrooms: 2 full 25
- Stories: Single level 26
- Porch/Outdoor Living: ~504 sq ft 27
- Width: ~60′ 28
- Depth: ~56′ 29
- Garage: 4-car capacity in unheated area 30

Lifestyle Highlights
- Wraparound porch space encourages outdoor living and social connection.
- Open plan fosters bright, connected daily living with flexible zoning.
- Primary suite offers restful privacy with convenient adjacency to living areas.
- Second bedroom adapts to family, guest, or workspace needs.
- Compact plan makes efficient use of space while retaining comfort.

Estimated U.S. Build Cost (USD)
Assuming typical U.S. residential construction costs of about $170–$250 per sq ft for barndominium-style builds, constructing this ~1,260 sq ft home could range between approximately **$214,000 and $315,000 USD**. This estimate excludes land, site prep, permits, and regional cost variations. 31

Why This Barndominium Plan Works
This barndominium plan combines rustic charm with smart, modern planning. Its open interior, wraparound porch, and flexible bedroom zones make it ideal for people seeking both comfort and efficient design. Whether you’re building a primary residence, weekend retreat, or rental home, the thoughtful layout and generous outdoor living areas deliver versatile, easy-to-enjoy living for years to come.q












