This mountain-ranch home spans about 4,845 sq ft of heated living space across a main level and lower level — combining roomy common areas, private retreats, and flexible bonus space. It includes 4 bedrooms, 4 full bathrooms + 1 half bath, and a 3-car garage (~1,012 sq ft). With split bedrooms, a dedicated master-suite sitting area, main-level living, and a fully usable lower level — it’s ideal for a family that values space, comfort, and future adaptability. 0
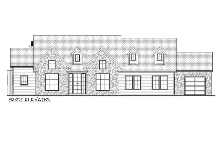
Exterior & Curb Appeal — Rustic Mountain Charm with Solid Presence
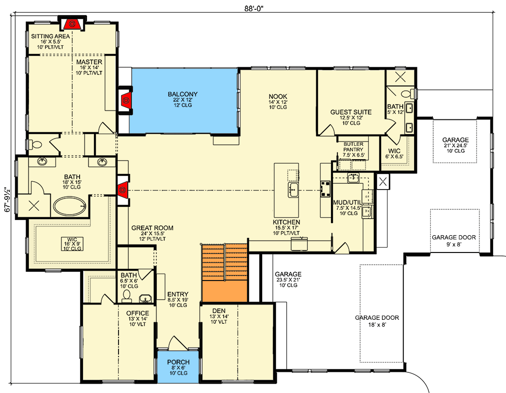
The home footprint measures approximately 88′ wide × 67′ 6″ deep, giving it a generous, grounded presence on the lot. 0 The roof design is rustic and steep — with a primary pitch of 14:12 and a secondary at 7:12 — creating a dramatic mountain-house silhouette. 1 The 3-car garage, with both front and side entry, blends seamlessly into the design, offering practical storage and parking while preserving the inviting front façade. 2

Outdoor & Covered Living — Porch, Patio & Outdoor Appeal
A modest front porch (~48 sq ft) welcomes guests with rustic curb appeal. 3 Most of the outdoor living happens at the rear: a covered patio of about 538 sq ft provides a spacious, sheltered area — perfect for lounging, al-fresco meals, or enjoying nature outside. 4 This layout brings the outdoors in, making the home feel at home in a scenic or rural setting.
Main Level Living — Vaulted Great Room, Kitchen & Social Flow
Inside, the great room opens up under tall ceilings, with an open-plan flow into the kitchen and dining area. The result: a spacious, light-filled core ideal for gatherings, family dinners, or relaxing evenings. The kitchen includes a butler-style walk-in pantry — useful for appliance storage or bulk groceries — helping keep countertops clean and organized. 5

A formal dining area sits nearby, giving flexibility for casual family meals or more formal hosting. The home also includes a cozy den or home-office space — useful for work, reading, or quiet time away from the bustle of main living areas. 6
Bedrooms & Private Retreat — Master Suite with Sitting Area + Guest Bedrooms
The master suite sits on the main level, designed as a private retreat. It includes a dedicated sitting area — perfect for morning coffee, reading, or quiet moments — giving the master wing a feel of a self-contained suite rather than just a bedroom. 7
The plan includes a total of four bedrooms. Each bedroom has access to its own full bath (or shares in the case of secondary rooms, depending on layout), giving privacy and convenience to every household member or guest. 8 This layout is especially handy for families with teens, frequent guests, or multigenerational living arrangements.
Lower Level — Bonus Space, Flex Room & Room to Grow
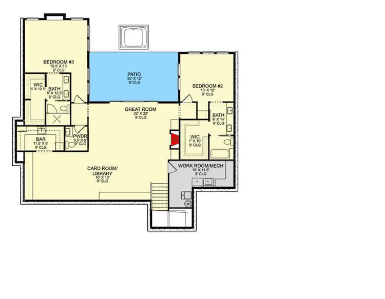
A standout feature is the lower level, with about 1,758 sq ft of additional space. 9 This area can be finished as a recreational/game room, home theater, hobby studio, guest suite, or extra bedrooms — giving future flexibility as lifestyle needs evolve. 10 Having this lower level gives huge long-term value: extra living space, storage, or even rental potential while preserving privacy from main living zones.

Garage, Utility & Construction Basics — Built for Practical Living
- Garage: 3-car attached (front and side entry), ~1,012 sq ft — generous space for vehicles, storage, workshop tools, or seasonal gear. 11
- Foundation: Standard basement foundation — giving that lower level and additional structural stability. 12
- Exterior Walls: 2×6 framing — robust construction that supports insulation, structural strength, and longevity. 13
- Ceilings: Main level with 10′ ceilings, giving airy volume and a spacious feel. 14
- Roof Framing & Pitch: Stick and truss framing, with steep roof pitches (14:12 main, 7:12 secondary) — characteristic of mountain-style homes, offering both aesthetic appeal and functional snow/water runoff design for sloped or seasonal climates. 15

Specs Summary
- Total Heated Area: ~4,845 sq ft 0
- Bedrooms: 4 0
- Bathrooms: 4 full + 1 half = 4.5 total 0
- Garage: 3-car attached (~1,012 sq ft) 0
- Lower Level Bonus Space: ~1,758 sq ft 0
- Outdoor Covered Patio: ~538 sq ft + ~48 sq ft front porch 0
- Footprint / Dimensions: ~88′ wide × ~67′ 6″ deep; steep roof profile for mountain style 0
- Structural Details: 2×6 exterior walls, 10′ main-level ceilings (plus vaulted common areas), basement foundation, stick & truss roof framing. 0
Lifestyle & Living Benefits — Why This Plan Is a Winner
- Space & Privacy for Everyone: With four full bedrooms and 4.5 baths, everyone gets their own space — ideal for families, guests, or long-term multi-generational living.
- Master Retreat Feel: A sitting area in the master suite turns it into a private escape, not just a bedroom — perfect for relaxing mornings or quiet evenings.
- Freedom to Grow: The lower-level bonus area gives flexibility — use it for recreation, guest rooms, hobbies, home theater, or future expansion without disturbing the main living level.
- Indoor-Outdoor Balance: The generous covered patio and porch connect indoor comfort with outdoor leisure — ideal for scenic settings, country lots, or even suburban yards with a view.
- Garage & Utility for Real Life: A large 3-car garage plus basement foundation gives storage and functionality — from vehicles to outdoor gear to workshop tools.
- Rustic Style, Built for Comfort: Steep rooflines, mountain-house aesthetic, and solid construction (2×6 framing, basement) make this a durable, beautiful home that feels timeless yet livable.
Estimated U.S. Build Cost (USD)
Building a home of this size and quality — around 4,845 sq ft with full basement, garage, and mountain-style detailing — would likely cost in the range of **$850,000–$1,260,000 USD**, assuming mid- to high-range finishes and typical U.S. construction costs of about $175–$260 per sq ft (depending on region, materials, and site conditions). 0

Why This Plan Stands Out — Spacious, Adaptable Mountain-Style Living
This 4-bed mountain ranch home delivers generous living space, private master retreat, flexible lower-level bonus, and rustic charm — all in one cohesive design. It works beautifully for families who want both space and quiet, for those who entertain or host guests, or for future-minded homeowners planning a home to grow with them. Whether you envision cozy nights by the fireplace, summer evenings on the back patio, or a home theater in the lower level — this plan offers room for it all.












