If you love the idea of living on one level (without giving up space), this collection of trending one-story homes over 2,000 sq ft is exactly the kind of lineup that makes decision-making both exciting… and slightly dangerous for your weekend productivity. These designs are built for people who want room to spread out, bedrooms that feel private, and open gathering spaces that still feel cozy and livable. With 3+ bedrooms as the starting point, these homes are ideal for families, frequent hosts, or anyone who simply wants more breathing room without climbing stairs every day.
Single-story living has a quiet luxury to it. Everything is easier—moving laundry, bringing in groceries, keeping an eye on kids, or just living comfortably long-term. And when the square footage crosses the 2,000 mark, you get that sweet spot where the home feels spacious but still practical, not oversized or wasteful.

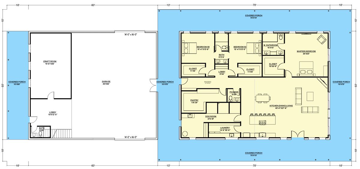
Exterior & Curb Appeal – Big Presence, Stylish First Impressions
These trending homes tend to share one important trait: strong curb appeal. With wider footprints and thoughtfully balanced facades, one-story homes over 2,000 sq ft often look more “estate-like” than people expect. The frontage feels confident and welcoming, with design details that elevate the first impression without making the house feel intimidating.
You’ll typically see a blend of popular styles that look polished and modern while staying timeless—think warm farmhouse-inspired charm, clean transitional lines, rustic country comfort, or modern ranch silhouettes that feel grounded and elegant. These designs also tend to suit wider lots beautifully, giving the house room to stretch out and feel impressive from the driveway.

Outdoor Living – The “Extra Room” Everyone Actually Uses
One-story homes become even more enjoyable when outdoor living is built into the layout. Many designs in this size range prioritize covered outdoor spaces because they add real lifestyle value. A spacious back porch, covered patio, or outdoor lounge area can quickly become the favorite “room” in the home—especially for families who love fresh air, weekend relaxation, and casual hosting.
Outdoor living also makes entertaining easier. Guests can flow in and out naturally, kids can play without feeling boxed in, and the house feels bigger during gatherings without needing extra interior square footage. Even simple features—like a covered sitting area or space for outdoor dining—can turn everyday life into something that feels more relaxed and enjoyable.
Open-Concept Living – The Heart of Modern Single-Story Comfort
Most trending single-level plans over 2,000 sq ft lean into open-concept design, and it’s easy to understand why. Open layouts create connection. The living room, kitchen, and dining areas blend into a shared hub where the home feels bright, social, and welcoming.
Instead of closed-off rooms and long hallways, these homes often feel airy and free-flowing. It’s easier to host, easier to keep conversations going, and easier for families to stay connected during busy routines. Cooking dinner doesn’t mean disappearing into another room—it means staying part of everything happening around you.
At the same time, the best open layouts still feel balanced. They create spaciousness without turning the main living space into one huge echo chamber. The goal is comfort, not chaos—and these trending designs often get that balance just right.

Kitchen Design – Built for Real Life, Not Just Looks
In this square footage range, kitchens tend to be a major highlight. They’re often designed to be functional, spacious, and social. Expect features like large islands for prep and seating, generous pantry storage, and layouts that support both everyday cooking and entertaining without stress.
The kitchen becomes the natural gathering space—and in a home that’s designed for real living, that’s exactly how it should feel. People naturally gravitate toward the kitchen, whether it’s for snacks, quick chats, or staying close while meals are being prepared. A well-designed kitchen makes the whole house feel easier to live in.

Bedroom Layouts – Privacy Matters More Than People Admit
With 3+ bedrooms, these homes are built to handle real households. Many designs focus on smart bedroom separation so the primary suite feels private while secondary bedrooms stay comfortable and functional. This works beautifully for families with kids, homeowners who host guests, or anyone who wants quiet space at the end of the day.
A well-planned bedroom layout makes the home feel calmer. Kids can have their own wing or hallway, guests can stay overnight without feeling like they’re camped in the middle of the home, and the primary suite can truly feel like a retreat instead of just “the biggest bedroom.”

Primary Suite Living – A True Retreat on One Level
One of the biggest advantages of single-level homes in this size range is how comfortable the primary suite can be. With more square footage to work with, the primary bedroom is often generously sized, with space for seating, bigger closets, and bathrooms that feel more spa-like than basic.
The best part? It’s all on the main level. No stairs, no hauling things up and down, and no feeling like your bedroom is a separate upstairs world you rarely want to climb to. It’s comfort and convenience together—and it’s a big reason why people fall in love with single-story living.
Flex Rooms, Offices & Bonus Spaces – Homes That Adapt to You
Trending homes over 2,000 sq ft usually offer more than just bedrooms and living space. Many include flex rooms that can become anything: a home office, hobby room, playroom, study, or even a guest retreat depending on your lifestyle.
These spaces are especially valuable because they future-proof the home. Your needs today might look different in five years. A flex room can shift roles without requiring renovations, giving the home long-term usability instead of forcing you to outgrow it.

Laundry, Mudrooms & Storage – The Behind-the-Scenes Heroes
A spacious home doesn’t stay enjoyable without organization, and trending plans in this range usually include practical support spaces that keep life running smoothly. Laundry rooms are often larger and more functional, with room for storage and folding space. Mudrooms or drop zones help keep clutter contained, especially if you have kids, pets, or busy daily routines.
Storage matters too. Closets, pantry space, linen storage, and well-placed utility areas help keep the home feeling calm and tidy. When everything has a place, the entire house feels easier to live in—especially when life gets busy.

Garage Space – More Than Just Parking
In many homes over 2,000 sq ft, garage space isn’t just about cars—it’s about lifestyle. Garages often double as storage zones for tools, bikes, seasonal items, and everything that doesn’t belong in your living room (no matter how hard you try to hide it).
Whether it’s a two-car or three-car setup, the garage becomes part of the home’s everyday function. It supports organization, convenience, and the practical side of life that makes a home feel truly livable.
Typical Size Expectations & Dimensions
One-story homes over 2,000 sq ft often have wider footprints, and that affects everything from curb appeal to room sizing. You’ll typically find larger gathering spaces, more comfortable bedroom layouts, and stronger indoor-outdoor flow because the home has room to stretch out across the lot.
This makes these homes ideal for wider properties and families who want space without adding a second story. The layout feels grounded and easy, with everything within reach.

Estimated U.S. Build Cost (USD)
For single-level homes in the 2,000–3,200 sq ft range, a realistic mid-to-high finish build cost often falls around $180–$260 per sq ft. That gives an estimated total range of roughly $360,000–$832,000 USD, depending on final size, finish quality, complexity of rooflines, and local labor/material costs. This estimate excludes land, permits, site prep, utility hookups, and regional pricing differences.

Why These Trending One-Story Homes Stay Popular
These designs are popular because they simply work. They offer single-level convenience, family-friendly layouts, and the kind of space that feels comfortable without being excessive. You get open gathering areas for everyday connection, private bedrooms for real rest, and flexible rooms that adapt to your lifestyle over time.
A great one-story home over 2,000 sq ft feels like the best of both worlds: it gives you the spaciousness people want, without making daily life harder. And once you experience that kind of comfort, it’s very hard to go back.

0











