This spacious country-style home offers approximately 2,699 square feet of heated living space with four bedrooms, three full bathrooms, and one half bathroom. Designed as a two-story residence, this plan blends classic country charm with modern functionality. With expansive porches, open living areas, and a two-car garage, it is ideal for families seeking comfort, style, and generous indoor-outdoor living. 0

Exterior Design
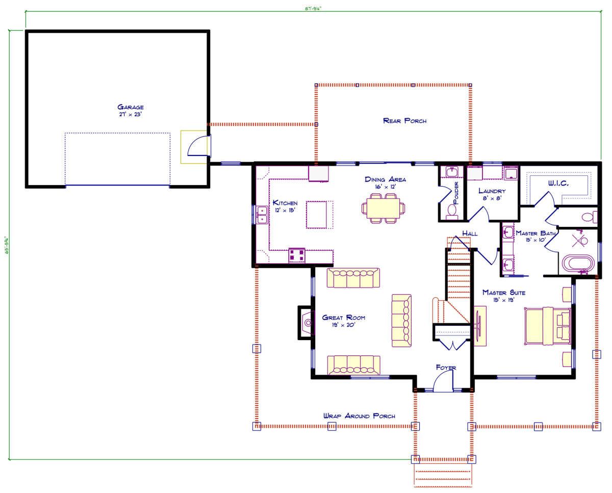
The exterior showcases traditional country architecture with a wide footprint measuring approximately 87 feet 10 inches wide and 65 feet 6 inches deep. 1 This generous size creates a strong curb appeal while maintaining a warm and inviting presence.
One of the standout features is the extensive outdoor living space, including approximately 1,051 square feet of combined porch and patio areas, with both front and rear porches. 2 These areas provide perfect spots for relaxing, entertaining, or enjoying scenic surroundings.
The home features a steep 18:12 roof pitch, enhancing both durability and the classic country aesthetic. 3
Interior Layout Overview
The 2,699 square feet of living space is distributed across two levels, creating a natural separation between shared living areas and private spaces. 4 The first floor includes approximately 1,555 square feet, while the second floor adds about 1,144 square feet. 5
This layout ensures both functionality and privacy, making it ideal for family living and accommodating guests.
Main Living Area
The main level features an open floor plan, where the living room, kitchen, and dining spaces flow seamlessly together. 6 This design enhances both comfort and usability, making it perfect for everyday living and entertaining.
High ceilings—approximately 9 feet on the main floor—contribute to a bright and spacious interior atmosphere. 7
Kitchen and Dining
The kitchen is centrally located and designed for efficiency, featuring a kitchen island and ample workspace. 8 Its open connection to the dining area allows for easy meal preparation and social interaction.
The dining space is positioned to take advantage of the open layout, making it ideal for both casual meals and formal gatherings.

Bedrooms
This home includes four bedrooms, with the primary suite located on the main floor for added convenience and privacy. 9
The additional bedrooms are located on the upper level, providing a quiet and separate space for family members or guests. This arrangement supports both comfort and functionality in a multi-level home.
Bathrooms
The design includes three full bathrooms and a half bathroom, ensuring convenience for both residents and visitors. 10
This layout supports efficient daily routines while maintaining privacy across different areas of the home.
Functional Features
- Two-story layout: Separates living and private spaces effectively. 11
- Main-floor primary suite: Adds convenience and accessibility. 12
- Open floor plan: Enhances flow between main living areas. 13
- Extensive porch space: Over 1,000 sq ft of outdoor living. 14
- Kitchen island: Improves usability and functionality. 15
- Main-floor laundry: Adds everyday convenience. 16
- Media room: Provides additional entertainment space. 17
- Two-car garage: Offers parking and storage. 18

Garage and Additional Space
The attached two-car garage provides approximately 680 square feet of unheated space, ideal for vehicles, storage, or workshop use. 19
The home also includes flexible interior areas such as a media room, allowing homeowners to adapt spaces for entertainment or additional living needs.
Dimensions and Structural Details
The home measures approximately 87 feet 10 inches in width and 65 feet 6 inches in depth, making it well-suited for larger lots. 20
It is typically constructed using durable 2×6 wood framing and supports multiple foundation options, including crawlspace, slab, or basement, depending on site conditions. 21
Estimated Building Cost (USD)
Construction costs vary depending on materials, labor, and location. Using common mid-range estimates:
- Low estimate: ~ $323,880 (assuming ~$120 per sq ft × 2,699 sq ft)
- High estimate: ~ $485,820 (assuming ~$180 per sq ft × 2,699 sq ft)

This country house plan offers a perfect blend of traditional charm and modern functionality. Its spacious layout, expansive porches, and flexible living areas make it an excellent choice for homeowners seeking a comfortable and elegant family home.












