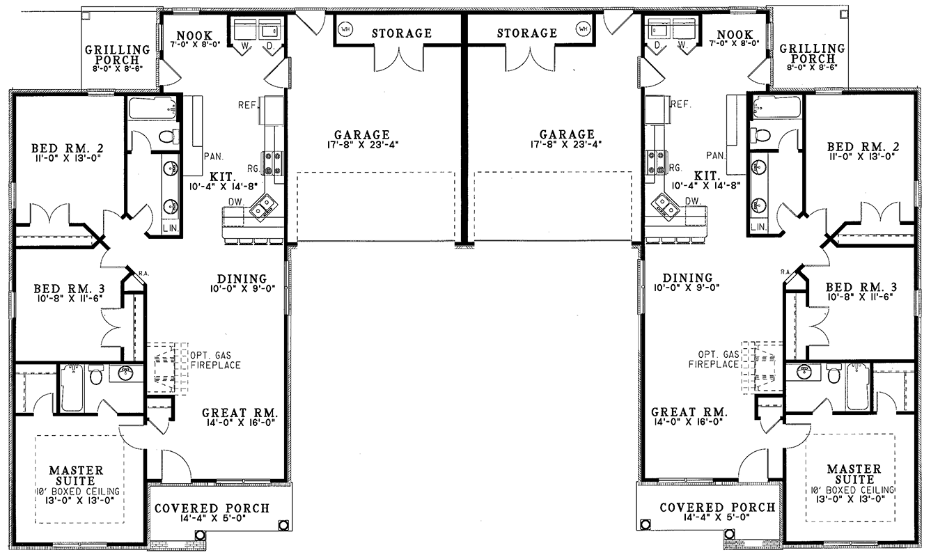
This duplex plan offers two mirror units, each around 1,318 sq ft of heated living space — so the total built area comes to about 2,636 sq ft. Each unit includes 3 bedrooms, 2 full baths, and an attached ~412 sq ft garage. With a layout that mixes cozy living spaces and functional design, it’s a strong choice whether you want to live in one unit and rent out the other, share with extended family, or house two households under one roof. 0
Exterior & Curb Appeal — Classic Duplex Form with Warm, Welcoming Details
The building shows off a traditional-style duplex facade, with tiered gables and covered porches giving each unit a welcoming, homey presence. 0 The symmetrical layout and modest footprint make it suitable for suburban or urban lots — offering a duplex feel without the bulk of a large apartment block. 1

Unit Layout & Living Core — Comfortable, Open, and Practical
Inside each unit, you’re greeted by a spacious great room that flows naturally into a dining area and kitchen. The kitchen includes a bar-style counter for casual meals or quick breakfasts — perfect for a busy household. 2
At the rear of the kitchen sits a small breakfast nook tucked gently toward the back — ideal for informal meals with a view out to the backyard. There’s also a corner grilling porch accessible from this area, giving each unit a cozy outdoor spot without compromising privacy. 3
Bedrooms & Privacy — Balanced, Family-Friendly Design
The master suite in each unit is separated from the other bedrooms — giving parents or owners a sense of privacy. The master features a ten-foot boxed ceiling (adding volume and light) and a walk-in closet for storage convenience. 4
The two secondary bedrooms and a second full bath make up the rest of the sleeping areas — a practical setup for kids, roommates, or guests without overcrowding. 5
Garage, Porches & Utility — Everyday Living Made Easier
- Garage (per unit): ~412 sq ft attached — provides secure parking and storage space, a big plus for families or renters. 6
- Porches & Outdoor Access: Each unit includes a covered front porch (shared style but mirrored) and access to a rear grilling porch — giving outdoor living or relaxing options without needing a large lot. 7
- Thoughtful footprint & structure: With overall building dimensions around 92′ wide × 54′ 10″ deep, and a maximum ridge height of ~24′, this duplex fits well on moderately sized lots while giving two full homes. 8
Plan & Specs Summary
- Total Heated Area (both units): ~2,636 sq ft 0
- Heated Area (per unit): ~1,318 sq ft 0
- Bedrooms (per unit): 3 0
- Bathrooms (per unit): 2 full baths 0
- Garage (per unit): ~412 sq ft, attached 0
- Porch / Outdoor Access: Covered front porch + rear grilling porch per unit 0
- Roof & Structure: Roof pitch 10:12, standard stick framing, exterior walls 2×4 (upgradeable to 2×6), foundation can be slab or crawl. 9
Lifestyle Benefits — Flexibility, Privacy & Multifamily Potential
- Two full homes under one roof: Great for dual-family living, rental income, roommates, or long-term guests — each unit feels like a standalone home.
- Smart use of space: At ~1,318 sq ft per unit, layout is efficient but still roomy — 3 bedrooms, 2 baths, open living areas, and a garage.
- Private and social zones: Master bedrooms separated, open living/kitchen/dining zones, and outdoor porches offer a nice balance of privacy and communal living.
- Suitable for small lots: The overall duplex footprint works for tighter residential lots — offering multi-unit living without excessive land need.
- Appealing for renters or families: The balanced layout — garage, porches, 3 bedrooms — makes each unit attractive for families, couples, or individuals needing a comfortable home.
Estimated U.S. Build Cost (USD)
Assuming a mid-range finish level and common U.S. residential construction costs of about $170–$220 per sq ft (given modest size and straightforward design), building the full duplex (≈ 2,636 sq ft) may cost around **$448,000–$580,000 USD** (excluding land, site preparation, permits, utilities, and regional cost differences). For a single unit (~1,318 sq ft), that translates to roughly **$224,000–$290,000 USD**.

Why This Duplex Plan Stands Out — Balanced, Livable & Practical for Many Uses
This Tiered Gabled Duplex delivers two well-designed, full-size homes in one structure — making it ideal for multi-generational living, rental income, or shared ownership. The layout avoids waste, the design stays attractive and homey, and the footprint remains manageable. With 3 bedrooms per unit, garage, living spaces, and porch access — it’s a duplex that feels like a “real home,” not just a compact apartment. If you’re looking for flexibility, comfort, and value in a duplex format, this plan is a strong candidate.











