This stylish modern transitional home offers approximately 1,932 square feet of heated living space with three bedrooms, two full bathrooms, and one half bathroom. Designed as a 1.5-story residence, the plan blends traditional comfort with modern design elements, creating a balanced and highly functional home. With its open layout, flexible upper level, and attached two-car garage, this design is ideal for families seeking both style and practicality. 0

Exterior Design
The exterior showcases a refined combination of traditional and modern architectural elements, a hallmark of transitional design. Clean lines are paired with classic proportions, creating a timeless yet updated appearance.
The home spans approximately 68 feet wide and 43 feet deep, offering a strong presence while remaining suitable for a wide range of lot sizes. 1 The design also includes both a front porch and a larger rear porch, providing inviting outdoor spaces for relaxation and entertaining.
Interior Layout Overview
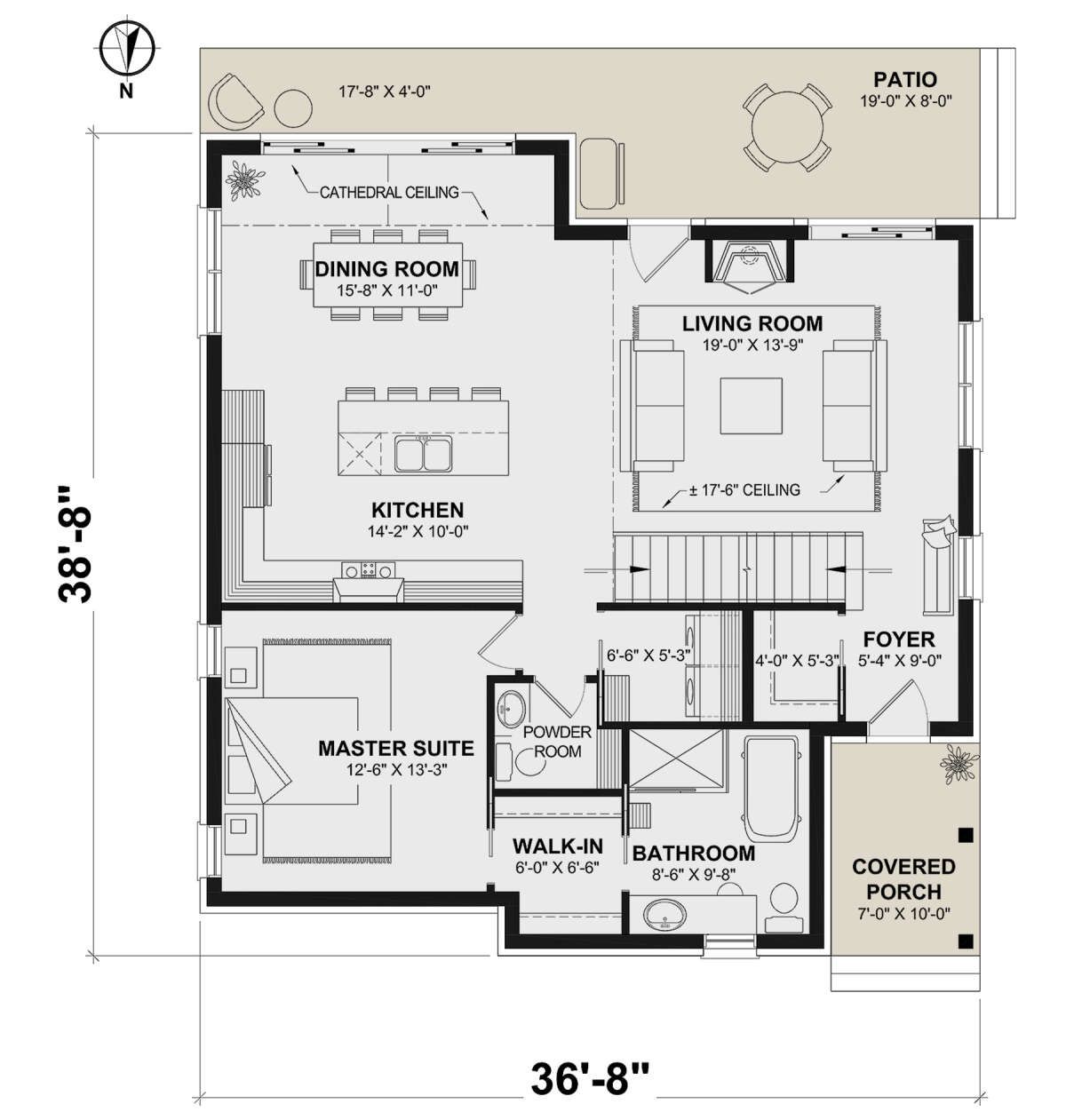
The home features a total of 1,932 square feet of heated space, with 1,422 square feet on the main floor and an additional 510 square feet on the upper level. 2 This layout provides flexibility while maintaining the convenience of primary living areas on the main level.

The design follows an open-concept approach, connecting key living spaces while maintaining defined zones for comfort and functionality.
Main Living Area
The central living space is designed as a spacious and open great room, serving as the heart of the home. It connects seamlessly to the kitchen and dining areas, creating a cohesive environment ideal for both everyday living and entertaining.
Large windows enhance natural light, giving the interior a bright and welcoming atmosphere.
Kitchen and Dining
The kitchen is thoughtfully designed with a central island, offering additional workspace, storage, and seating. 3 Its layout promotes efficiency while maintaining a strong connection to the surrounding living and dining areas.
The adjacent dining space provides a comfortable area for meals, making it ideal for both casual family use and hosting guests.
Bedrooms
This home includes three bedrooms, with the primary suite located on the main floor for convenience and privacy. 4
The additional bedrooms are thoughtfully positioned to provide comfort and flexibility, while the upper-level space can serve as a private retreat, guest area, or additional living space.
Bathrooms
The design includes two full bathrooms and a half bathroom, ensuring convenience for both residents and visitors. 5 This layout supports efficient daily routines while maintaining privacy.

Functional Features
- 1.5-story design: Combines main-level living with flexible upper space. 6
- Open floor plan: Enhances flow between living, dining, and kitchen areas.
- Main-level primary suite: Adds comfort and accessibility.
- Kitchen island: Improves functionality and workspace. 7
- Front and rear porches: Extend living space outdoors. 8
- Dedicated office: Ideal for remote work or study. 9
- Main-floor laundry: Adds everyday convenience. 10
- Two-car garage: Provides parking and storage. 11
Garage and Additional Space
The attached two-car garage provides approximately 516 square feet of unheated space, suitable for vehicles, storage, or workshop use. 12
The upper-level area offers additional flexibility, making it ideal for a bonus room, guest suite, or recreational space.

Dimensions and Structural Details
The home measures approximately 68 feet wide and 43 feet deep, with an overall height of about 23 feet 8 inches. 13
It supports multiple foundation options, including slab, crawlspace, or basement, allowing adaptability based on site conditions. 14 The structure is typically built using durable wood framing for long-term performance.
Estimated Building Cost (USD)
Construction costs vary depending on materials, labor, and location. Using common mid-range estimates:
- Low estimate: ~ $231,840 (assuming ~$120 per sq ft × 1,932 sq ft)
- High estimate: ~ $347,760 (assuming ~$180 per sq ft × 1,932 sq ft)

This modern transitional house plan delivers a perfect blend of traditional charm and modern functionality. Its flexible layout, open living spaces, and thoughtful features make it an excellent choice for homeowners seeking a stylish and adaptable home.
“`15












