This thoughtfully designed modern farmhouse plan offers about 2,390 sq ft of comfortable, family-friendly living space. With 4 bedrooms, 3 full bathrooms, a welcoming front porch, flexible bonus room, and an efficient yet open layout, it blends classic farmhouse warmth with modern functionality — perfect for everyday living and entertaining alike. 0

Classic Farmhouse Curb Appeal
The exterior embraces timeless modern farmhouse aesthetics with a balanced roofline, abundant windows, and a generous covered front porch that instantly sets a welcoming tone. 1 This porch becomes an inviting transition between outdoors and indoors — ideal for porch seating, casual greetings, or simply enjoying a morning beverage. 2

At approximately 66′ wide × 84′ deep, the home presents a grounded yet elegant façade that suits both countryside and suburban lots, achieving a look that’s classic but not fussy. 3
Porches & Outdoor Living
Outdoor living is a key feature of this home. Spacious front and rear porches create comfortable zones for lounging, outdoor dining, or watching the seasons change. 4 These covered spaces extend your living footprint and foster connection with the landscape — perfect for weekend gatherings, quiet evenings, or morning sunshine. 5
Open & Connected Main Living Spaces
Step through the central entry into a welcoming foyer that leads directly into the great room — the heart of the home. 6 With wide sightlines to the dining area and kitchen, this open main living zone feels airy and inviting, encouraging effortless interaction and connection among family members and guests. 7
Large windows throughout the space bring in natural light, enhancing the bright, open feel and fostering a strong indoor-outdoor connection. 8
Kitchen & Dining — Heart of Daily Living
The kitchen features a generously sized island that serves as both a functional workspace and an informal gathering spot — perfect for casual meals, homework drop-ins, or morning coffee. 9 Nearby, the dining area shares the open concept, allowing family dinners, entertaining, and daily life to flow seamlessly. 10
Plenty of counter space and storage help keep the kitchen organized and efficient, while its central placement ensures you’re always part of the home’s activity. 11

Primary Suite — Private Retreat
The primary bedroom is positioned for both privacy and comfort, tucked away from the main living areas. 12 This relaxing retreat includes a well-designed ensuite bathroom with thoughtful fixtures and storage for everyday ease. 13 Large windows fill the room with daylight, connecting the interior to the surrounding outdoors. 14

Secondary Bedrooms — Family-Ready Comfort
Three additional bedrooms offer flexible accommodation for family, guests, or home offices. 15 Two of these bedrooms share a full bathroom with a tub/shower combination — ideal for kids or guests — while the remaining bedroom sits near another full bathroom for convenience. 16
The thoughtful distribution of secondary bedrooms supports privacy and comfortable everyday use. 17

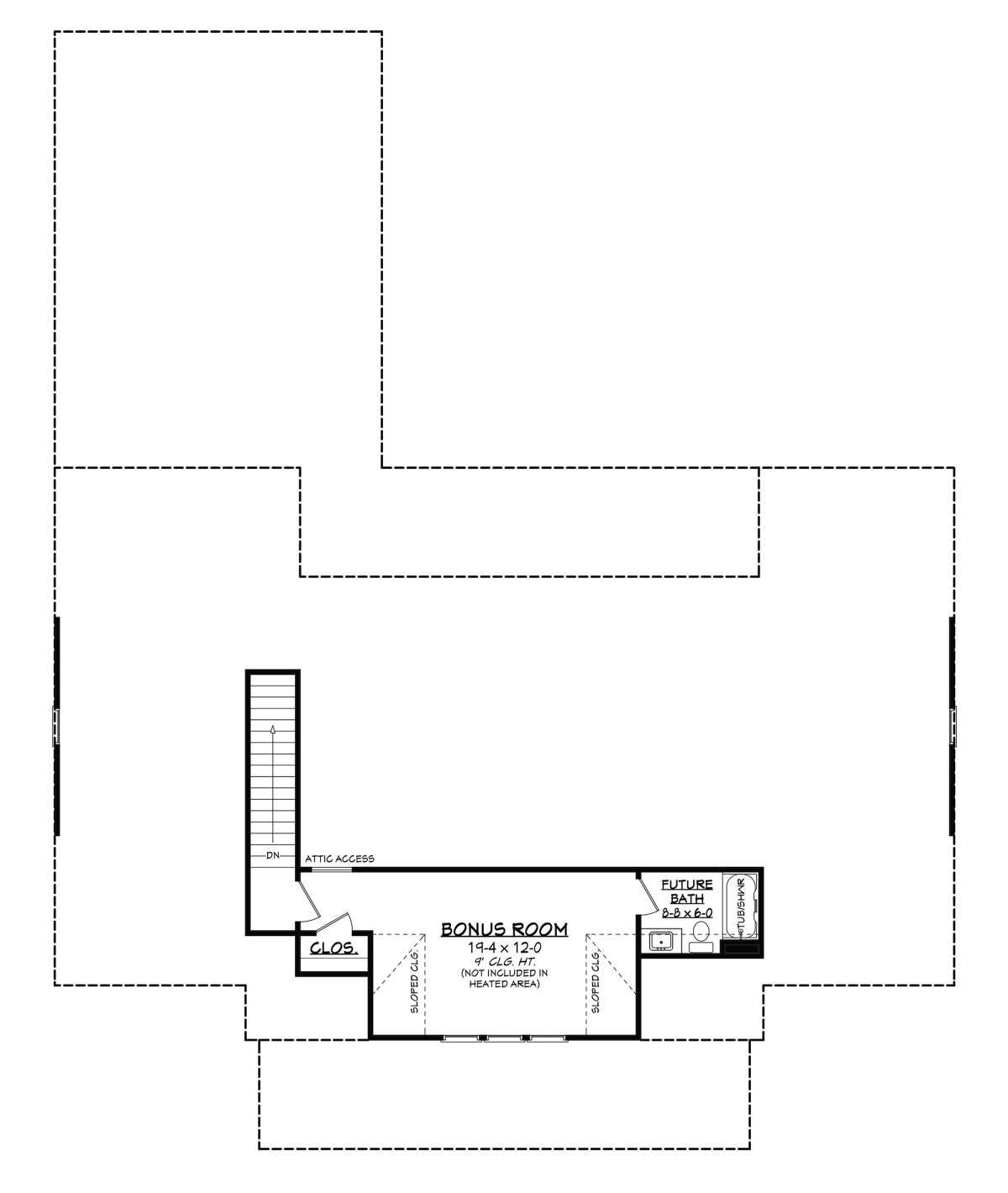
Bonus Room & Flexible Space
Above the main floor, a bonus room adds versatile living space that can be tailored to your needs — whether as a media room, hobby space, home gym, or guest suite. 18 Large enough to support multiple uses, this area expands the home’s adaptability for changing family lifestyles. 19
It also includes its own bathroom and closet, enhancing convenience and making it suitable as a standalone guest zone or private retreat when needed. 20

Laundry, Mudroom & Practical Features
A combined mudroom and laundry room help keep daily chores and clutter contained. 21 Located near the garage entry, this zone makes everyday transitions — from errands to home life — easier and more organized. 22
Additional closets and storage areas throughout the plan ensure belongings have a place, preserving clean sightlines and comfortable living spaces. 23

Indoor-Outdoor Connection & Natural Light
Extensive windows and doors throughout the home bring natural daylight into every corner, while doorways to covered porch spaces enhance indoor-outdoor flow. 24 These features not only make interiors feel larger and brighter but also offer visual continuity with outdoor living zones, reinforcing a sense of openness. 25

Dimensions & Key Features
- Total Heated Area: ~2,390 sq ft 26
- Bedrooms: 4 27
- Bathrooms: 3 full 28
- Stories: 1.5 (main level + bonus) 29
- Porch / Outdoor Living: Covered front and rear porches 30
- Garage: 2-car side-entry / carport with storage bay 31
- Width: ~66′ 32
- Depth: ~84′ 33

Lifestyle Highlights
- Open main living area fosters connection and light throughout daily life.
- Generous porch spaces enhance everyday outdoor enjoyment and entertaining.
- Bonus room adds flexible living space for future needs.
- Private primary suite paired with practical bedroom distribution supports family comfort.
- Functional mudroom and laundry keep daily routines organized and efficient.

Estimated U.S. Build Cost (USD)
Assuming typical U.S. residential construction costs of about $180–$260 per sq ft, building this ~2,390 sq ft modern farmhouse may range between **$430,000 and $622,000 USD**. This estimate excludes land, site preparation, permits, and regional price variations. 34
Why This Modern Farmhouse Plan Works
This modern farmhouse plan showcases how thoughtful design can blend everyday practicality with stylish living. Its open shared spaces feel bright and welcoming, the porch areas expand your usable living footprint, and the bonus room adds flexibility for future needs. Whether you’re hosting friends, settling in for a cozy family night, or creating dedicated work or hobby space, this home adapts beautifully to contemporary life.












