This compact and thoughtfully designed modern farmhouse offers approximately 1,122 square feet of heated living space with three bedrooms and two full bathrooms. Designed as a single-story home, the layout emphasizes efficiency, comfort, and modern open-concept living. With its inviting front porch and attached one-car garage, this home is ideal for small families, first-time homeowners, or those seeking a stylish yet manageable living space. 0

Exterior Design
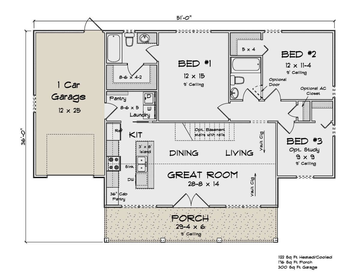
The exterior showcases the clean and welcoming appeal of modern farmhouse architecture. With overall dimensions of approximately 51 feet wide and 36 feet deep, the home maintains a compact footprint that fits comfortably on smaller lots while still offering strong curb appeal. 1
A charming front porch measuring about 176 square feet enhances the façade and provides a cozy outdoor space for relaxing or greeting guests. The 8:12 roof pitch adds classic farmhouse character while ensuring durability and efficient water drainage. 2

Interior Layout Overview
All 1,122 square feet of living space is arranged on one level, creating a smooth and accessible flow throughout the home. The layout is designed to maximize functionality, ensuring that each area serves a clear purpose without wasted space. 3
The central living area connects the kitchen, dining, and living room into a cohesive open-concept space, while the bedrooms are positioned to provide privacy and comfort.
Main Living Area
The living room forms the heart of the home, offering a welcoming space for relaxation and gatherings. Its open connection to the kitchen and dining area creates a bright and airy atmosphere that enhances the sense of space.
The kitchen is designed for efficiency and style, featuring a center island, ample cabinetry, and practical workspace. Its layout allows easy interaction with the rest of the home, making it ideal for both everyday living and entertaining. 4
Bedrooms
This home includes three bedrooms, providing flexibility for families or homeowners who need additional space. The primary bedroom is located on the main floor and offers a comfortable and private retreat. 5
The additional bedrooms are positioned nearby and can serve as children’s rooms, guest accommodations, or even a home office depending on individual needs.

Bathrooms
The design features two full bathrooms. The primary bathroom is associated with the owner’s suite, while the second bathroom is conveniently located to serve the remaining bedrooms and shared living areas. 6
Functional Features
- Single-story layout: All living spaces are located on one level for easy accessibility.
- Open floor plan: Connects kitchen, dining, and living areas seamlessly. 7
- Kitchen island: Provides additional workspace and seating.
- Main-floor laundry: Adds convenience to daily routines. 8
- Study room: Offers flexible space for work or hobbies. 9
- Front porch: Extends living space outdoors.

Garage and Additional Space
The attached one-car garage provides approximately 300 square feet of unheated space. This area is suitable for vehicle storage, tools, or general household use, adding practical value to the home. 10
Dimensions and Structural Details
The home measures approximately 51 feet in width and 36 feet in depth, with an overall height of about 21 feet 6 inches. It is typically constructed using 2×4 wood framing, offering a balance of affordability and durability. 11

The design supports multiple foundation options, including slab, crawlspace, or basement, allowing flexibility depending on site conditions and construction preferences. 12
Estimated Building Cost (USD)
Construction costs vary depending on materials, labor, and location. Using common mid-range estimates:
- Low estimate: ~ $134,640 (assuming ~$120 per sq ft × 1,122 sq ft)
- High estimate: ~ $201,960 (assuming ~$180 per sq ft × 1,122 sq ft)

This modern farmhouse plan delivers a perfect combination of efficiency, comfort, and timeless design. Its compact size, open layout, and practical features make it an excellent choice for homeowners seeking a stylish and functional single-story home.
“`13












