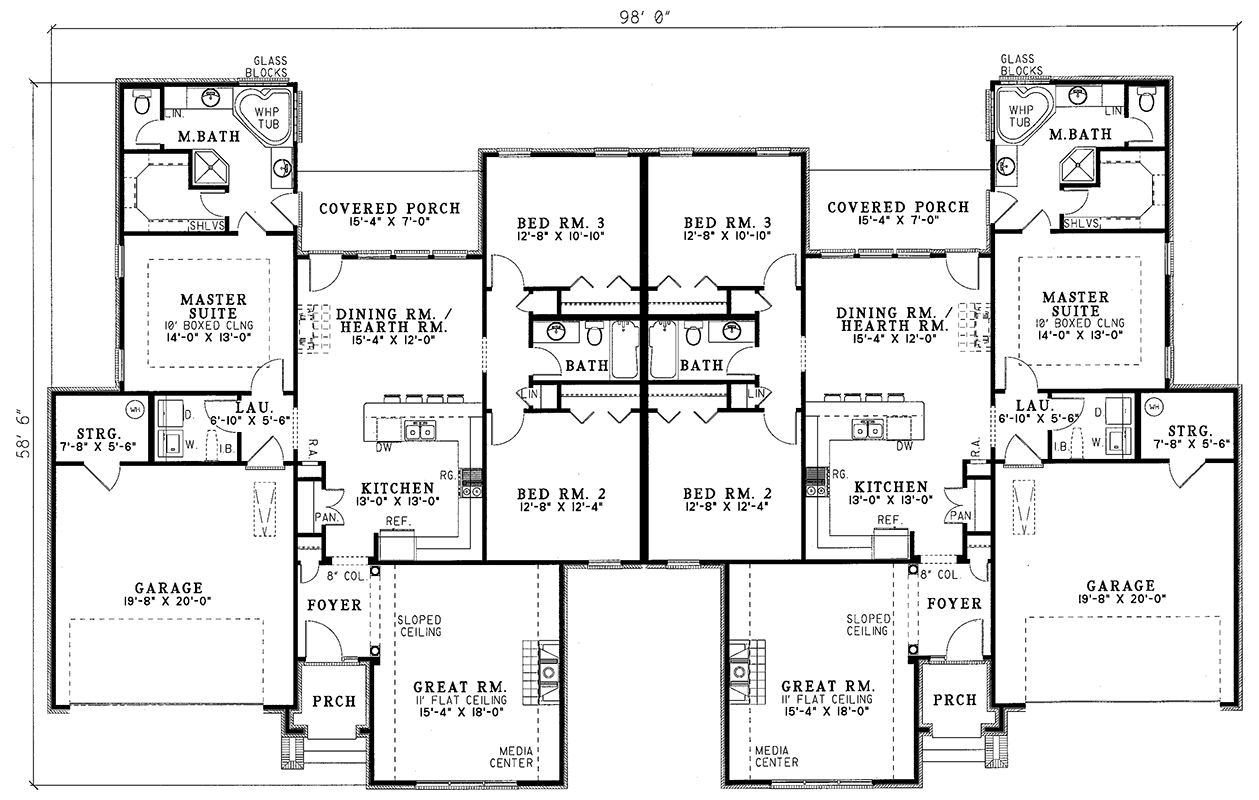
This duplex plan offers a total of about 3,308 sq ft of heated living space, split evenly between two mirror-image units — each unit around 1,654 sq ft. Each side includes 3 bedrooms and 2 full bathrooms, with attached garages and thoughtful layouts that combine convenience, privacy, and cozy home feeling. 0
Exterior & Curb Appeal — Balanced Duplex with Traditional, Inviting Look
The overall footprint spans roughly 98′ wide × 58′ 6″ deep, giving the duplex a symmetrical facade that balances nicely across a typical residential lot. 1 The design feels traditional and welcoming — suitable for a family-friendly neighborhood, a rental/investment property, or a multi-household living setup without feeling like an apartment building. 2
Each unit comes with an attached single-unit garage (for a total of two cars per side when garages are included) — giving practical vehicle storage while maintaining a suburban-home aesthetic. 3
Unit Layout — Efficient, Comfortable & Well-Balanced for Everyday Living
Entering a unit, you step into a foyer that flows into a great room with an eleven-foot ceiling, complete with a built-in media center and a cozy fireplace — a warm, welcoming space ideal for family gatherings or relaxing evenings. 4

From the great room, you move naturally into an open kitchen, hearth area, and dining space — this open-concept layout helps keep cooking, dining, and living connected, making the home feel spacious for its size. 5
The dining area (or hearth/dining zone) opens onto a rear covered porch — a nice outdoor-accessible spot that adds livability, letting you enjoy meals or downtime outside while staying sheltered. 6
Bedrooms & Private Zones — Smart Separation of Master & Shared Bedrooms
Each unit places the master suite apart from the two secondary bedrooms and shared full bath — giving privacy to the master suite and creating a quiet retreat away from the more active living zones. 7
The master suite includes a full ensuite bath with a whirlpool tub (corner style with glass block), a separate shower, private toilet area, and a large walk-in closet. There is also private access from the master to the rear porch — a thoughtful touch for comfort and convenience. 8
The two additional bedrooms share a full bath — a practical arrangement for kids, guests, or roommates, keeping the layout efficient without overcrowding. 9
Garage, Laundry & Utility Flow — Practical Features for Real-Life Living
Each unit includes a garage (with storage space) — useful for vehicles, tools, or extra storage, making the duplex suitable not just as rental units but as permanent residences. 10
A centrally located laundry room, just steps from the kitchen, helps streamline daily chores — practical for families or renters alike, and reduces the need to carry laundry across the home. 11

Specs Summary
- Total Heated Area (Both Units): ~3,308 sq ft 0
- Per-Unit Heated Area: ~1,654 sq ft 0
- Bedrooms per Unit: 3 0
- Bathrooms per Unit: 2 full baths 0
- Garage: Attached (per unit), total ~786 sq ft for both units 12
- Porch / Outdoor Access: Rear covered porch per unit (access from dining/hearth area) for outdoor living/relaxation 13
- Ceiling Height: Great room 11 ft — adds openness to living area per unit 14
- Structure & Foundation: Standard foundation (crawl or slab), exterior walls 2×4 (upgradeable to 2×6) — reasonable construction standard for duplex layout 15
Lifestyle Benefits — Why This Duplex Plan Works Well
- Versatility: Great for families wanting side-by-side living, investors seeking rental income, or multigenerational households.
- Privacy + Shared Comfort: Private master suites plus shared living zones deliver comfort without compromise, ideal for roommates or families.
- Efficient Use of Space: At ~1,654 sq ft per unit you get three bedrooms, two baths, open living, and garage — ideal balance of size and functionality.
- Comfort & Charm: Vaulted/11-ft ceiling great room with fireplace, open layout, covered porch — adds warmth, natural light, and a homey feel.
- Practical Living: Garage, laundry, storage space, and functional flow make daily life easier whether you live there or rent out the units.
Estimated U.S. Build Cost (USD)
Assuming standard mid-range finishes and typical U.S. residential construction costs around $180–$260 per sq ft, building the duplex (~3,308 sq ft) would suggest a rough budget of **≈ $595,000–$861,000 USD** (excluding land, site preparation, permits, utilities, and regional cost differences). This makes the plan a reasonable mid-range investment for a versatile duplex setup. 0
Why This Duplex Plan Is a Smart Choice — Flexibility, Function & Home-Like Feel
The Lovely Duplex Design stands out because it offers two full-size, comfortable, self-contained homes under one roof — ideal for families, roommates, rentals, or multi-generational living. With thoughtful layouts, private master suites, open shared spaces, and practical amenities (garage, laundry, porch), it balances privacy and community living elegantly. If you want a duplex that feels like a proper home rather than just a rental unit — this design delivers on comfort, simplicity, and practicality.











