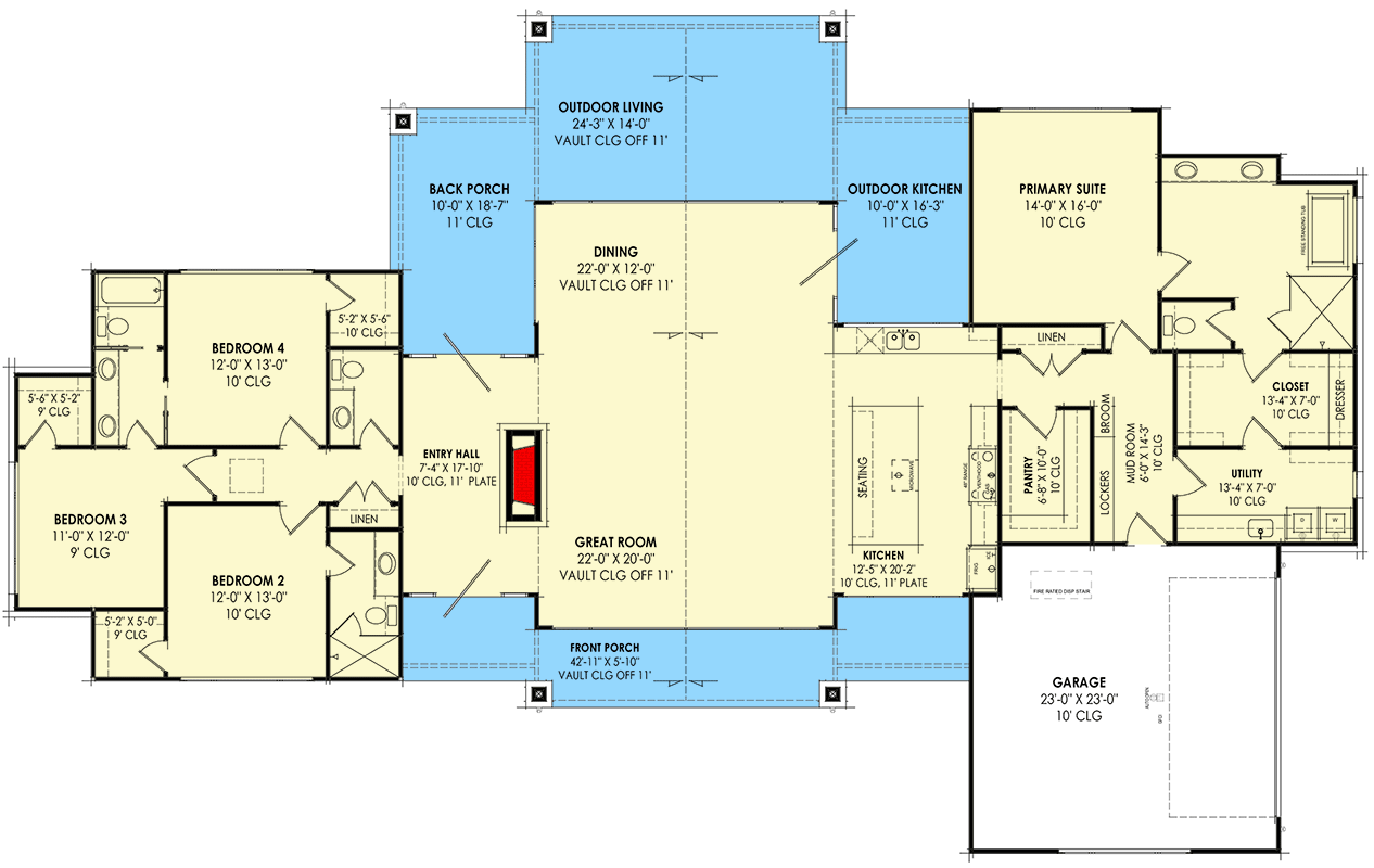
This striking modern farmhouse offers approximately 2,897 sq ft of heated living space. With 4 bedrooms, 3.5 bathrooms, and a well-designed footprint that balances open living and private retreats, it’s ideal for a family looking for both comfort and elegance. 0
Exterior & Curb Appeal — Modern Farmhouse with Character
The exterior blends materials — wood, stone, glass, and metal — for a balanced, contemporary-farmhouse appearance. The front façade features two side gables flanking a center glass-filled gable with floor-to-ceiling windows, giving the home a distinctive, welcoming presence. 0

With about 956 sq ft of covered outdoor space, the home extends living beyond its walls, offering generous front and rear porches — perfect for relaxing, entertaining, or just enjoying the outdoors. 1

Open & Vaulted Great Room — Light, Volume & Connection
Step inside and you’re greeted by a vaulted great room that becomes the heart of the home. A fireplace anchors the space, while floor-to-ceiling windows front and back flood the interior with light — offering views and a sense of openness rarely found in standard layouts. 2
The living area flows toward the kitchen in a long, open arrangement (over 40′ from front to back), giving a sense of expansiveness. The layout allows for seamless entertaining, daily living, and easy movement through the main parts of the home. 3
Kitchen & Pantry — Designed for Real Life & Family Flow
The kitchen features a large island with seating on one side and a sink on the other — ideal for casual meals, prep, or conversation while cooking. A roomy walk-in pantry (approximately 6′8″ × 10′) gives you ample storage and helps maintain organization even in busy households. 4

From the pantry and kitchen area there’s easy access to a mudroom that connects to the 2-car garage — a practical detail for unloading groceries, managing outerwear, or keeping clutter contained. 5
Bedrooms & Private Zones — Comfort and Privacy for All
The plan divides sleeping spaces thoughtfully: three ensuite bedrooms with walk-in closets are grouped on one side, while the master suite occupies the entire other side of the home — giving that room a sense of retreat and privacy. 6

The master suite offers a luxurious bath (five-fixture layout), a walk-in closet with built-in dresser, and direct access to the laundry — a convenient and elegant touch that simplifies daily routines. 7

Flow & Layout Efficiency — Balanced for Life & Entertaining
With the sleeping wings on opposite sides and the central living/kitchen zone in the middle, this layout provides a clear separation between private and social spaces. That makes it ideal for families, guests, or anyone needing flexibility and quiet without sacrificing connection. 8
The overall flow supports both everyday living and hosting — whether it’s daily routines, family gatherings, or entertaining friends. High ceilings, generous windows, and an open core all contribute to a comfortable but refined feel.

Outdoor Living & Covered Spaces — Bringing Nature In
With nearly 956 sq ft of covered porch and outdoor spaces, this home invites nature and the outdoors into daily living. The back and front covered areas offer options for relaxing, dining, or simply enjoying fresh air — seamlessly connected to indoor spaces. 9
The design supports a lifestyle where indoor comfort and outdoor enjoyment go hand in hand — evenings on the porch, morning coffees, or weekend get-togethers can all happen with minimal effort.

Specs Summary
- Total Heated Living Area: ~2,897 sq ft 1
- Bedrooms: 4 2
- Bathrooms: 3.5 total (multiple ensuites + master bath) 3
- Stories: Single-level main living (1 story) 4
- Garage: 2-car attached with mudroom entry 10
- Outdoor Covered Space: ~956 sq ft (front + rear porches / covered areas) 11
- Layout Highlights: Vaulted great room with full-height windows, large island kitchen + walk-in pantry, master suite with direct laundry access, three additional ensuite bedrooms with walk-in closets, mudroom + garage access, balanced exterior with glass-filled center gable. 5

Lifestyle Benefits — Why This Plan Shines for Modern Living
- Light-filled, open living: Vaulted ceilings and wall-to-wall windows create a bright, airy environment that feels larger than the footprint.
- Privacy with connection: Master suite and guest/children wings separated by the living core — ideal for families, guests, or multigenerational setups.
- Indoor-outdoor flow: Ample covered porches let you enjoy outdoor living regardless of weather, blending indoor comfort with nature.
- Storage & practicality: Walk-in pantry, mudroom with lockers, and generous closet space make day-to-day living organized and efficient.
- Elegant yet livable style: Modern farmhouse aesthetics with practical design — suitable for everyday life, entertaining, and long-term comfort.

Estimated U.S. Build Cost (USD)
Assuming a U.S. construction cost range of approximately $180–$260 per sq ft for mid-to-high quality finishes, building ~2,897 sq ft would likely cost around **$521,000–$753,000 USD** (excluding land, site prep, permits, and regional cost differences). The generous covered outdoor spaces, quality materials (wood, stone, glass, metal), and high-end interior features suggest you may lean toward the higher end depending on finish level and customization. 6
Why This Plan Makes a Great Home — Balanced, Light, Functional & Stylish
This modern farmhouse plan hits a rare sweet spot: it’s large enough for family life, yet not overly complicated; open and airy, but also efficiently laid out. Vaulted ceilings, abundant natural light, and thoughtful room placement give it a relaxed, contemporary feel — while porches, practical storage, and multiple bedrooms/bathrooms make it deeply livable and future-ready. If you want a home that offers comfort, style, flexibility and a connection to the outdoors — this design delivers it all, with balance and charm.












