This classic farmhouse plan delivers roughly 2,953 sq ft of heated living space on a single level. With 4 bedrooms, 3.5 bathrooms, and a 3-car attached garage (~809 sq ft), it balances everyday livability with generous room for family, guests, and flexible living. Designed for comfort, flow, and privacy — it’s a home ideal for growing households, multi-generational living, or anyone wanting a farmhouse that blends charm and function. 0

Exterior & Curb Appeal — Welcoming Farmhouse Presence
The exterior shows off classic farmhouse styling: board-and-batten siding under a raised-seam metal roof gives a clean, timeless look. 1 An elongated front porch welcomes visitors and creates instant curb appeal, while a side-entry 3-car garage maintains a tidy, balanced façade. 2 With a width of about 93′ 10″ and a depth of roughly 77′ 4″, the home sits with presence yet remains accessible on many lot sizes. 3

Main Living & Flow — Open, Airy & Connected
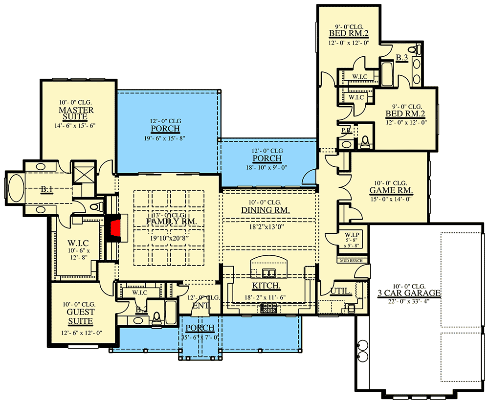
Through the front door, a foyer flows into a combined family room and eat-in kitchen — the heart of the home. 4 Elegant ceiling transitions help define living areas without walls, giving rooms a sense of openness and architectural character. 5 The open layout supports easy everyday living and entertaining — cooking, dining, relaxing, and socializing all happen naturally within shared sight-lines. 6

Kitchen, Dining & Pantry — Practical & Family-Ready
The kitchen is thoughtfully integrated into daily life, with easy access to dining and living areas. There’s a butler-style walk-in pantry for storage — perfect for organization, bulk groceries, or keeping everyday dishes out of sight. 7 This practicality means the home stays tidy during busy mornings, big dinners, or gatherings with friends and family. 8

Bedrooms & Split Layout — Privacy Meets Convenience
The master suite is tucked away from the hustle of the main living areas, giving homeowners a private retreat. It includes a deluxe bath and a large walk-in closet for comfort and convenience. 9

On the opposite side of the home are the additional three bedrooms. One secondary bedroom sits on the left — ideal for guests — with access to a full bath. 10 The other two bedrooms share a “Jack-and-Jill” bath, making them perfect for children, roommates, or guests. 11 This split-bedroom setup balances togetherness and privacy, ideal for families or multi-generation living. 12

Flex Space: Game / Rec Room — Extra Living Options
Adjacent to the dining room, glass French doors open into a game or recreation room. 13 This flexible space can serve as a media room, kids’ lounge, hobby room, or quiet retreat — adding valuable versatility without sacrificing footprint. 14 Having a dedicated secondary living area helps keep noise and activity away from bedrooms while maintaining flow and openness in the common areas. 15

Outdoor Living — Rear Porch & Porch Space
A generously sized rear porch spans part of the back of the house — a comfortable spot for outdoor dining, relaxing, or entertaining. 16 With combined porch spaces totaling about 768 sq ft, the home offers strong indoor-outdoor connection, encouraging fresh-air living, barbecues, and natural light — perfect for morning coffee or evening gatherings. 17

Garage, Foundations & Build Specs
- Heated Living Area: ~2,953 sq ft 18
- Bedrooms: 4 19
- Bathrooms: 3 full + 1 half (3.5 total) 20
- Garage: 3-car attached (~809 sq ft), side-entry 21
- Porch (combined front + rear): ~768 sq ft 22
- Ceiling Height: 10′ standard main floor 23
- Roof Pitch / Structure: Primary 8:12, Secondary 3:12; stick framing; exterior walls 2×4; foundation crawl or slab 24
- Footprint: Width ~93′ 10″ × Depth ~77′ 4″ 25
- Architectural Style: Country / Modern Farmhouse — board-and-batten siding, metal roof, clean lines 26
- Special Features: Split-bedroom layout; butler/walk-in pantry; game/rec room; Jack-and-Jill bath; large porches; 3-car garage; main-level living. 27

Lifestyle Benefits — Practical Comfort for Everyday & Entertaining
- The split-bedroom layout gives private separation between master and secondary bedrooms — ideal for parents, guests, or multi-generational living.
- Open-concept kitchen/living makes family life easy and connected: cooking, dining and socializing happen naturally together, whether daily or during gatherings.
- The butler pantry offers serious storage and organizational power — great for busy families or for those who love to cook and entertain.
- The game/rec room adds flexibility: media nights, kids’ play, hobbies, or a quiet retreat — adaptable as your family or lifestyle evolves.
- Porches front and rear make the home feel bigger, letting you enjoy fresh air, outdoor meals, or quiet downtime without leaving home.
- The 3-car garage and wide footprint give space for vehicles, gear, storage — handy for active households, hobbies, or tools/equipment.

Estimated U.S. Build Cost (USD)
Assuming mid- to-high quality finishes and a typical U.S. residential construction cost range of about $180–$260 per sq ft, building ~2,953 sq ft suggests a rough budget of **$531,000–$768,000 USD** (not including land, site prep, permits, or regional cost variation). Because the design includes porches, a large garage, and flexible living spaces, actual cost may vary depending on finishes and customization choices. 28

Why This Plan Is a Strong Choice for Families & Long-Term Living
This 4-bedroom split-bedroom farmhouse plan offers an excellent balance of openness, privacy, flexibility, and farmhouse charm. With a thoughtfully organized layout — private master suite, flexible secondary bedrooms, a game room, generous pantry/ storage, and ideal indoor-outdoor flow — it’s built to support real family life, entertaining, and changing needs over time.












