This striking A-frame home offers approximately 2,002 square feet of heated living space with three bedrooms and two full bathrooms. Designed across 2.5 stories, this unique plan blends rustic cabin charm with modern open-concept living. With its iconic triangular structure, loft space, and expansive vertical design, it is ideal for vacation homes, mountain retreats, or homeowners seeking a bold architectural statement. 0

Exterior Design
The exterior showcases the unmistakable A-frame silhouette, characterized by steeply sloping rooflines that extend nearly to the ground. The home measures approximately 38 feet wide and 61 feet deep, giving it a compact yet tall and dramatic profile. 1
This design is not only visually distinctive but also highly practical. The steep roof angle helps shed rain and snow efficiently, while large front-facing windows are often incorporated to maximize natural light and scenic views.
A front porch enhances the exterior, providing a cozy outdoor space that complements the home’s cabin-like appeal.

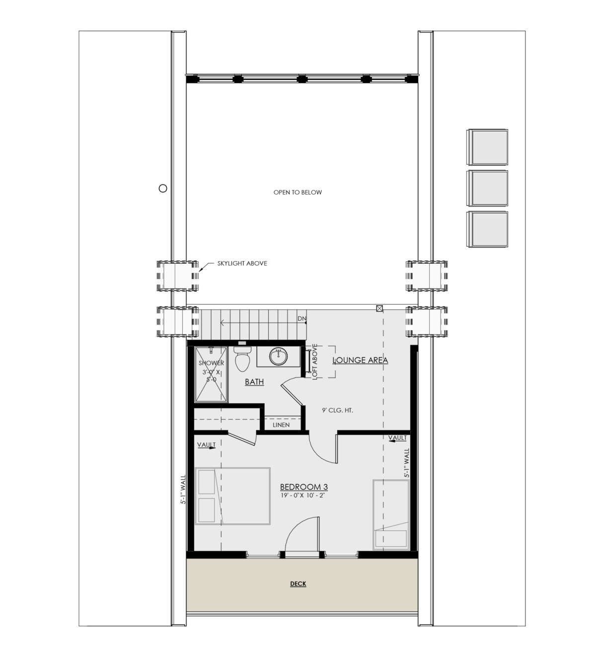
Interior Layout Overview
The home spans multiple levels, including a main floor, upper level, and loft, creating a dynamic and layered living experience. 2 The layout is designed to make the most of vertical space while maintaining an open and connected feel throughout.
The main level contains the core living areas, while upper floors and loft spaces provide additional bedrooms and flexible living zones.
Main Living Area
The heart of the home is the open-concept living area, where the living room, kitchen, and dining space flow seamlessly together. 3 This open design enhances the sense of space and allows natural light to travel throughout the interior.
High vaulted ceilings, a signature feature of A-frame homes, create a dramatic and airy atmosphere, making the living space feel significantly larger than its footprint.
Kitchen and Dining
The kitchen is centrally positioned and designed for efficiency, featuring a kitchen island and ample workspace. 4 Its open connection to the dining and living areas makes it ideal for both everyday use and entertaining.
The dining area sits nearby, benefiting from natural light and views, further enhancing the home’s warm and inviting environment.

Bedrooms
This home includes three bedrooms, with the primary bedroom located on the main floor for convenience and privacy. 5
The additional bedrooms are located on upper levels, taking advantage of the home’s vertical design. These rooms are perfect for family members or guests and often feature unique ceiling lines that add character.
Bathrooms
The design includes two full bathrooms, positioned to serve both the main floor and upper-level bedrooms. 6 These bathrooms are conveniently located to support daily living while maintaining privacy.

Functional Features
- 2.5-story layout: Maximizes vertical space and functionality. 7
- Loft area: Ideal for a media room, office, or relaxation space. 8
- Open floor plan: Enhances flow and natural light. 9
- Vaulted ceilings: Create a dramatic and spacious interior.
- Main-floor primary bedroom: Adds convenience and accessibility. 10

- Front porch: Extends living space outdoors. 11
- A-frame design: Offers structural strength and efficient weather resistance.

Garage and Additional Space
This A-frame design does not include a garage, maintaining its compact footprint and rustic character. 12 However, space is available on the property for a detached garage or storage structure if needed.
The inclusion of a loft and media room provides additional usable space without expanding the home’s footprint. 13

Dimensions and Structural Details
The home measures approximately 38 feet in width and 61 feet in depth, with a total heated area of 2,002 square feet. 14 Its 2.5-story structure allows for efficient use of vertical space while maintaining a relatively compact footprint.
The A-frame structure is inherently strong due to its triangular form, offering durability and stability in various weather conditions.

Estimated Building Cost (USD)
Construction costs vary depending on materials, labor, and location. Using common mid-range estimates:
- Low estimate: ~ $240,240 (assuming ~$120 per sq ft × 2,002 sq ft)
- High estimate: ~ $360,360 (assuming ~$180 per sq ft × 2,002 sq ft)

This A-frame house plan offers a unique blend of architectural character, efficient space usage, and cozy living. Its vertical design, loft spaces, and open interior make it an excellent choice for those seeking a distinctive and functional home with timeless appeal.
“`15













