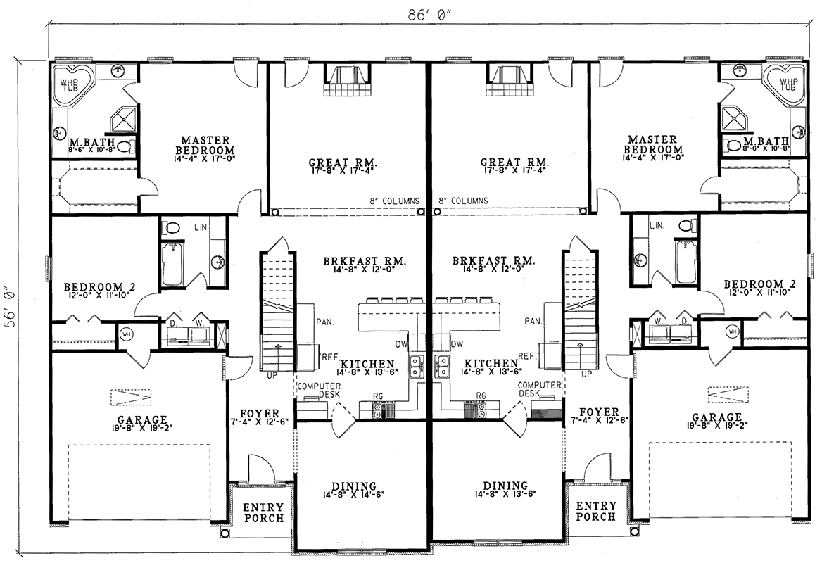
This duplex design offers two nearly identical units, each with about 2,259 sq ft of living space (about 1,868 sq ft on the main floor and roughly 384 sq ft upstairs). Each unit features 3 bedrooms, 2 full bathrooms, and an attached garage — combining generous living space with the efficiency of duplex living. 0
Exterior & Curb Appeal — Balanced Duplex, Home-Like Scale
The building presents a two-unit layout with a shared structure but clearly separated living quarters: the overall width and depth (shared across both units) remain modest enough for many lots. 0
Each unit has its own attached garage (~754 sq ft) — offering covered parking and storage while preserving a clean, residential look rather than a purely utilitarian duplex facade. 1

Unit Layout & Main Living Spaces — Open, Functional & Family-Friendly
Inside each unit you are welcomed by a spacious great room, anchored by a fireplace and framed by structural columns — a warm, open-feeling space ideal for relaxing or entertaining. 2
From the great room, the flow continues into a breakfast room + kitchen with bar-counter seating — which makes daily meals, casual dining, and social cooking feel natural and integrated. 3
The kitchen also includes a built-in desk area — perfect for homework, planning, or home-office tasks without needing a separate room. 4
From the main living area, views and access to the backyard give each unit a sense of space and connection with the outdoors, even in a duplex setup. 5
Bedrooms & Private Spaces — Comfort for Families or Housemates
On the main floor, each unit’s master suite offers privacy and convenience. The master includes a spacious walk-in closet and a private bathroom with double vanities, a corner whirlpool tub, and a separate shower — offering a spa-like retreat at home. 6
Upstairs, there’s a large additional bedroom — complete with a walk-in closet and a window seat — along with an optional bonus room, giving flexibility for a guest room, home office, or hobby space. 7
The layout balances private and shared spaces so each occupant gets comfort and quiet, whether a family, roommates, or tenants. 8
Garage, Utility & Structural Basics — Ready for Practical Living
- Garage (per unit): ~754 sq ft attached — enough space for vehicles, storage, or workshop area. 9
- Foundation & Framing: Plan accommodates slab or crawl-space foundation; exterior walls built with 2×4 framing (upgradeable to 2×6) — allowing flexibility depending on local building codes or preferences. 10
- Ceiling & Roof: The main floor features 9′ ceilings, giving interior spaces a comfortable sense of volume — even in a duplex format. 11

Plan & Specs Summary
- Units: 2 (side-by-side duplex) 0
- Heated Area per Unit: ~2,259 sq ft (1,868 sq ft main + 384 sq ft upper) 1
- Total Heated Area (both units): ~4,504 sq ft 0
- Bedrooms per Unit: 3 0
- Bathrooms per Unit: 2 full baths 0
- Garage (per unit): Attached, ~754 sq ft 0
- Key Features: Great room with fireplace, open kitchen + breakfast room, built-in desk, master suite on main floor, second floor bonus/bedroom space, walk-in closets, attached garage, flexible layout for families, roommates or rental uses. 0
Lifestyle Benefits — Flexibility, Privacy & Efficiency Combined
- Two homes in one build: Great for extended families, multi-generational living, or rental income while retaining privacy for each household.
- Spacious yet efficient: At ~2,259 sq ft, each unit provides ample living, sleeping and storage space without unnecessary excess — a balance of comfort and practicality.
- Flexible spaces: The upstairs bedroom/bonus room and built-in desk make the design adaptable to changing family needs — guest rooms, home offices, hobbies, or tenants.
- Separate comfort zones: Master suites, living areas, and garages are separated per unit — enabling comfortable independent living side-by-side without shared stress.
- Easy ground for shared/individual ownership: Whether you occupy one unit and rent the other — or both units — the plan’s layout accommodates either scenario well.
Estimated U.S. Build Cost (USD)
Assuming typical U.S. residential construction costs around $170–$230 per sq ft (given duplex format and moderate finishes), building one 2,259-sq-ft unit would likely range between **$384,000–$520,000 USD** (excluding land, site prep, permits, utilities, and local variations). For the full duplex (both units), that places the rough budget around **$768,000–$1,040,000 USD**.
Why This Duplex Plan is a Smart Fit — Comfort, Value & Long-Term Flexibility
The plan offers two full, comfortable homes under a single roof — perfect for dual-family living, rental investment, or flexible long-term housing. With generous living areas, thoughtful bedroom layout, attached garages, and flexible extra spaces — it gives functionality without overbuilding. Whether you want a place for extended family, roommates, or rental units, this duplex delivers a balance of privacy, comfort, and practicality in a design that feels like a proper home, not just an apartment.












