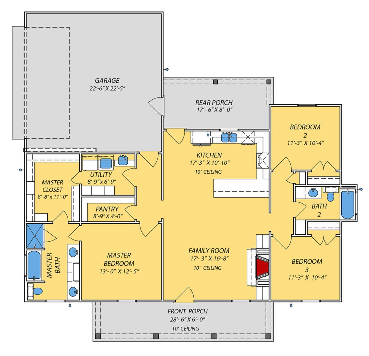
This practical and well-balanced home offers approximately 1,422 square feet of heated living space with three bedrooms and two full bathrooms. The layout featured in
this country house plan is designed to provide comfort, simplicity, and efficient use of space, making it ideal for modern family living. 0
Simple and Welcoming Country Exterior
The exterior presents a clean country-style design with a balanced and inviting appearance. With overall dimensions of approximately 54 feet wide and 53 feet deep, the home offers a compact yet functional footprint suitable for a variety of plot sizes. 1
This style emphasizes warmth and practicality, making it a great fit for both rural and suburban environments.

Efficient Single-Level Living
This home is designed as a single-story residence, providing ease of movement and accessibility throughout. All 1,422 square feet of living space is located on one level, making it ideal for families seeking convenience and simplicity. 2
The layout is thoughtfully arranged to maximize comfort while minimizing wasted space.
Open-Concept Living Area
The main living space features an open floor plan, seamlessly connecting the living room, dining area, and kitchen. This design enhances natural light and creates a bright, welcoming environment.
The open layout also makes the home feel larger and is perfect for both everyday living and entertaining guests.

Functional Kitchen Design
The kitchen is centrally positioned to provide easy access to both the dining and living areas. It includes practical counter space and cabinetry, ensuring efficiency for daily cooking.
This layout allows for smooth workflow while maintaining interaction with family or guests.
Three Comfortable Bedrooms
This home includes three bedrooms, making it ideal for families or flexible living arrangements. 3 The primary bedroom serves as a comfortable private retreat, while the additional bedrooms can be used for children, guests, or a home office.
The layout ensures a good balance between privacy and accessibility.
Two Full Bathrooms
The design includes two full bathrooms, strategically located to serve both private and shared areas of the home. 4
This setup supports convenience and smooth daily routines for all occupants.
Garage and Additional Space
This plan includes a 2-car garage, providing secure parking and additional storage space. 5
The garage enhances functionality and adds value to the overall design.
Smart and Practical Layout
One of the key strengths of this home is its efficient use of space. Every area is designed to be functional, ensuring that no square footage is wasted.
The open-concept design further enhances this efficiency, making the home feel more spacious and comfortable.
Outdoor Living Potential
The design allows for the addition of outdoor features such as a front porch or backyard patio, extending the living space beyond the interior.
This creates opportunities for relaxation, outdoor dining, and entertaining.

Dimensions and Key Details
- Total Living Area: 1,422 square feet
- Bedrooms: 3
- Bathrooms: 2
- Garage: 2-car
- Width: 54 feet
- Depth: 53 feet
- Stories: 1

Estimated Building Cost (USD)
- Low estimate: ~ $170,640 (assuming ~$120 per sq ft × 1,422 sq ft)
- High estimate: ~ $255,960 (assuming ~$180 per sq ft × 1,422 sq ft)

This country house plan offers a perfect combination of simplicity, comfort, and functionality. With its open layout, practical bedroom arrangement, and efficient design, it is an excellent choice for homeowners looking for a modern yet timeless family home.
“`6












