This well-designed and practical home offers approximately 1,392 square feet of heated living space with three bedrooms and two full bathrooms. The layout featured in
this country house plan provides a perfect balance of comfort, efficiency, and traditional style, making it ideal for families seeking a functional and affordable home. 0

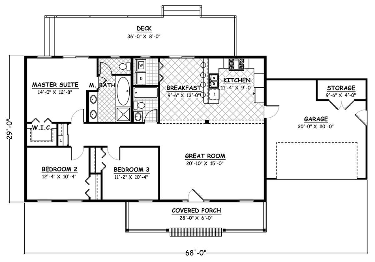
Simple and Attractive Country Exterior
The exterior showcases a clean country-style design with a long, low-profile structure that feels both welcoming and practical. With overall dimensions of approximately 68 feet wide and 29 feet deep, the home fits well on wide but shallow plots. 1
A front porch adds charm and provides a relaxing outdoor space, enhancing the home’s traditional appeal.
Efficient Single-Level Living
This home is designed as a single-story residence, offering convenience and easy movement throughout. All 1,392 square feet of living space is located on one level, making it ideal for families who prefer accessibility and simplicity. 2
The layout is carefully planned to maximize usable space while minimizing wasted areas.

Open-Concept Living Area
The heart of the home features an open floor plan that connects the living room, dining area, and kitchen. This design allows natural light to flow freely and creates a bright, welcoming environment.
The open layout makes the home feel more spacious and is perfect for both everyday living and entertaining guests.
Functional Kitchen Design
The kitchen is centrally positioned for efficiency and easy access to the dining and living areas. It offers practical counter space and cabinetry, making it suitable for daily cooking and family use.
This setup ensures smooth movement and interaction within the main living space.
Three Comfortable Bedrooms
This home includes three bedrooms, providing flexibility for families, guests, or a home office. 3 The primary bedroom is conveniently located on the main floor, offering comfort and privacy.
The additional bedrooms are well-positioned for easy access and everyday convenience.
Two Full Bathrooms
The design includes two full bathrooms, strategically placed to serve both private and shared areas efficiently. 4
This ensures smooth daily routines and added convenience for families.
Garage and Additional Space
This home features a 2-car garage with approximately 400 square feet of space, providing secure parking and additional storage. 5
The garage is positioned for easy access, enhancing the home’s overall functionality.

Construction and Structural Details
- Roof pitch: 8:12 for a classic country look 6
- Framing: Durable 2×6 wood construction 7
- Ceiling height: Approximately 8 feet 8
- Foundation options: Slab, crawlspace, or basement 9

Dimensions and Key Details
- Total Living Area: 1,392 square feet
- Bedrooms: 3
- Bathrooms: 2
- Garage: 2-car (approx. 400 sq ft)
- Width: 68 feet
- Depth: 29 feet
- Stories: 1

Estimated Building Cost (USD)
- Low estimate: ~ $167,040 (assuming ~$120 per sq ft × 1,392 sq ft)
- High estimate: ~ $250,560 (assuming ~$180 per sq ft × 1,392 sq ft)

This country house plan is a perfect example of efficient and comfortable living. With its open layout, practical design, and classic style, it offers everything needed for a functional and inviting family home.
“`10












