This charming country-style home offers approximately 1,311 square feet of heated living space with three bedrooms and two full bathrooms. Designed as a single-story residence, this plan focuses on simplicity, comfort, and efficient use of space. With its compact footprint and practical layout, it is an excellent choice for small families, first-time homeowners, or those looking to downsize. 0
Exterior Design
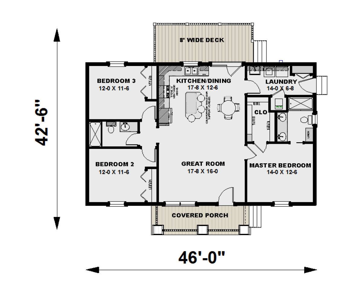
The exterior reflects classic country charm with a clean and balanced footprint measuring approximately 46 feet wide and 42 feet 6 inches deep. 1 This size allows the home to fit comfortably on a variety of lot sizes while maintaining a welcoming presence.

A simple roofline and traditional styling create a timeless look, while a modest front porch enhances curb appeal and provides a pleasant outdoor sitting area.
Interior Layout Overview
All 1,311 square feet of living space is arranged on one level, making the home easy to navigate and highly functional. 2 The layout is designed to maximize usability, ensuring that every square foot serves a purpose.
The design typically follows a split-bedroom arrangement, separating the primary suite from the additional bedrooms for increased privacy and comfort.
Main Living Area
The main living area serves as the heart of the home, offering a comfortable space for relaxing and gathering. Its central location allows for easy access to the kitchen and dining areas, creating a cohesive and functional environment.
Open sightlines help the space feel larger and more inviting, making it ideal for both everyday living and entertaining.
Kitchen and Dining
The kitchen is designed for efficiency, featuring practical counter space and cabinetry for storage. Its proximity to the dining area ensures convenience during meal preparation and family gatherings.
The dining area connects seamlessly with the living room, maintaining a smooth flow throughout the home.
Bedrooms
This home includes three bedrooms, making it suitable for families or flexible living arrangements. 3
The primary bedroom is positioned for privacy and often includes features such as a walk-in closet and private access to a bathroom, creating a comfortable retreat. 4

The additional two bedrooms are located on the opposite side of the home and share access to the second bathroom, making them ideal for children, guests, or a home office.
Bathrooms
The design includes two full bathrooms, ensuring convenience for both residents and visitors. 5 One bathroom is typically associated with the primary suite, while the second serves the remaining bedrooms and shared spaces.
Functional Features
- Single-story layout: All living areas are on one level for easy accessibility.
- Split-bedroom design: Enhances privacy between rooms. 6
- Three-bedroom layout: Ideal for families or flexible use.
- Compact footprint: Fits a wide range of lot sizes. 7
- Open living flow: Improves functionality and comfort.
- Efficient design: Maximizes every square foot of space.
Garage and Additional Space
This plan does not include a garage, helping to maintain affordability and a smaller footprint. 8 However, a detached garage or carport can be added depending on the homeowner’s needs.
Outdoor areas such as a porch or patio can further extend the living space for relaxation and entertaining.
Dimensions and Structural Details
The home measures approximately 46 feet in width and 42 feet 6 inches in depth, with all living space contained on a single level. 9
It is typically constructed using standard wood framing and can be built on various foundation types, including slab or crawlspace, depending on site conditions and preferences.
Estimated Building Cost (USD)
Construction costs vary depending on materials, labor, and location. Using common mid-range estimates:
- Low estimate: ~ $157,320 (assuming ~$120 per sq ft × 1,311 sq ft)
- High estimate: ~ $235,980 (assuming ~$180 per sq ft × 1,311 sq ft)
This country house plan offers a perfect blend of simplicity, efficiency, and comfort. Its practical layout, manageable size, and timeless design make it an excellent option for homeowners seeking a functional and affordable single-story home.
“`10












