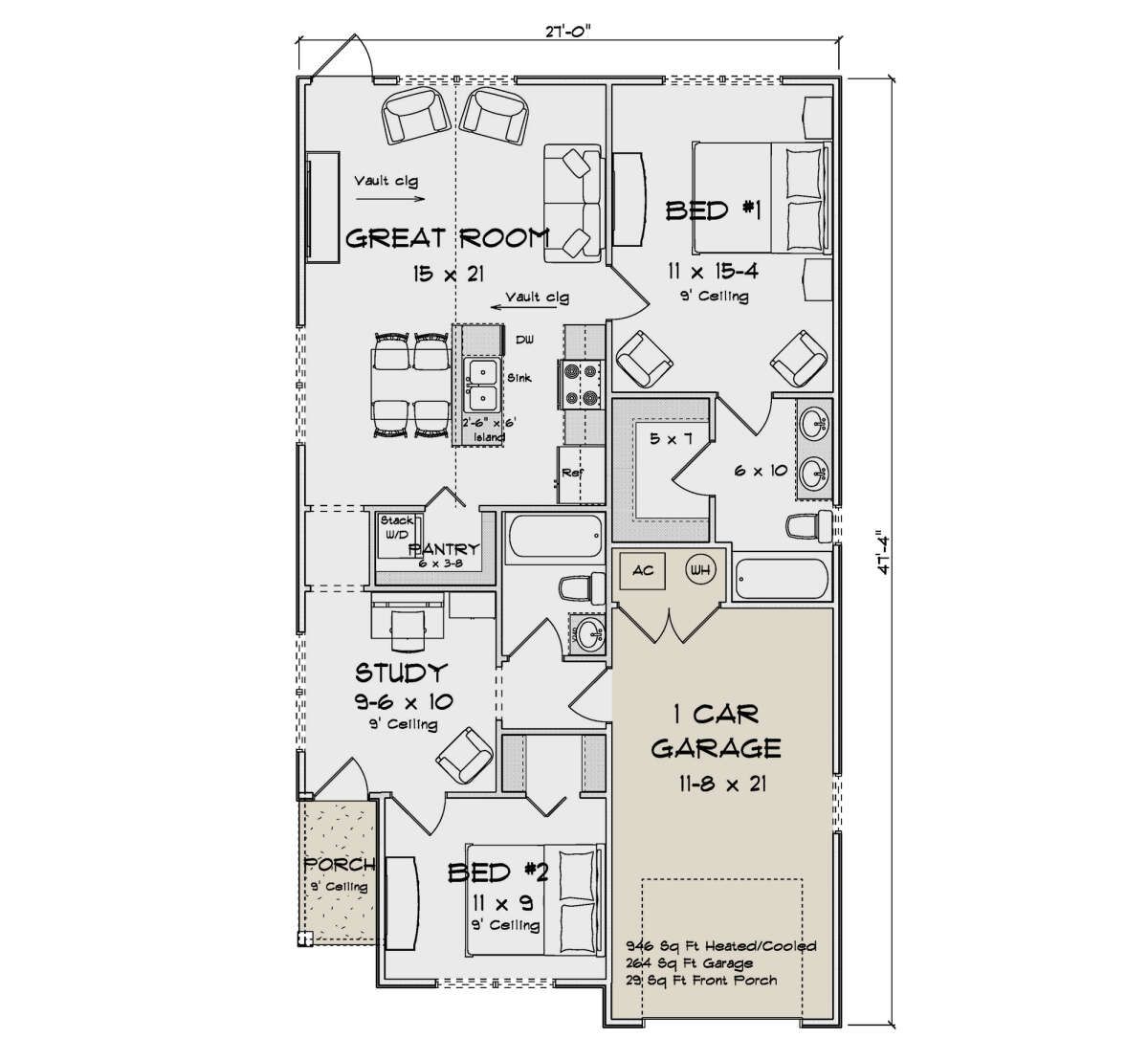
This compact and efficient cottage-style home offers approximately 946 square feet of heated living space with two bedrooms and two full bathrooms. Designed as a single-story residence, this plan focuses on simplicity, comfort, and smart space utilization. With its narrow footprint, open layout, and attached one-car garage, it is ideal for small families, retirees, or anyone seeking a cozy and functional home. 0

Exterior Design
The exterior reflects classic cottage charm with a clean and compact structure. The home measures approximately 27 feet wide and 47 feet 4 inches deep, making it well-suited for smaller or narrow lots while maintaining strong curb appeal. 1
A modest front porch of about 29 square feet adds a welcoming touch, offering a small but pleasant outdoor space for relaxing or greeting guests. 2

The home features a practical 6:12 roof pitch, contributing to both durability and traditional styling.
Interior Layout Overview
All 946 square feet of living space is arranged on one level, ensuring ease of movement and accessibility. The layout is designed to maximize efficiency, with minimal wasted space and a balanced flow between shared and private areas. 3
The central living area connects seamlessly to surrounding rooms, creating a cohesive and comfortable living environment.
Main Living Area
The living room serves as the heart of the home, offering a cozy yet functional space for relaxation and daily activities. Its open connection to the kitchen enhances the sense of space despite the home’s compact size.
This open-concept arrangement allows natural light to flow freely, creating a bright and inviting atmosphere.
Kitchen and Dining
The kitchen is designed with efficiency in mind, featuring a central island that provides additional workspace and seating. 4
Its proximity to the dining area ensures convenience for meals and gatherings, while the open layout allows easy interaction with the living space.

Bedrooms
This home includes two bedrooms, both located on the main level. The layout provides privacy while maintaining easy access to shared spaces.

The primary bedroom serves as a comfortable retreat, while the second bedroom can function as a guest room, office, or flexible living space.

Bathrooms
The design includes two full bathrooms, offering added convenience for both residents and guests—an excellent feature for a home of this size. 5
This dual-bathroom setup enhances functionality and supports comfortable daily living.

Functional Features
- Single-story layout: All living areas are on one level for accessibility. 6
- Compact footprint: Ideal for smaller or narrow lots.
- Open floor plan: Enhances flow and maximizes space. 7
- Kitchen island: Adds workspace and functionality. 8
- Main-level laundry: Improves convenience. 9
- Front porch: Provides a small outdoor relaxation area.
- One-car garage: Offers parking and storage space. 10

Garage and Additional Space
The attached one-car garage provides approximately 264 square feet of unheated space, suitable for parking, storage, or a small workshop. 11
This additional space enhances the home’s practicality while maintaining its compact overall design.
Dimensions and Structural Details
The home measures approximately 27 feet wide and 47 feet 4 inches deep, with a total height of about 16 feet 3 inches. 12
It is typically constructed using 2×4 wood framing and supports multiple foundation options, including slab, crawlspace, or basement, allowing flexibility based on site conditions. 13

Estimated Building Cost (USD)
Construction costs vary depending on materials, labor, and location. Using common mid-range estimates:
- Low estimate: ~ $113,520 (assuming ~$120 per sq ft × 946 sq ft)
- High estimate: ~ $170,280 (assuming ~$180 per sq ft × 946 sq ft)

This cottage house plan offers a perfect blend of efficiency, comfort, and affordability. Its compact size, two-bathroom layout, and practical design make it an excellent choice for homeowners seeking a low-maintenance yet stylish single-story home.
“`14












