This cozy cabin plan offers approximately 1,836 sq ft of thoughtfully designed space across two levels, blending modern comfort with classic cabin charm. With 3 bedrooms, 2.5 bathrooms, and a flexible loft area, this layout is ideal for couples, families, or anyone who loves a relaxed getaway or a peaceful daily retreat. Featuring expansive porches, intimate living spaces, and an open central gathering area, it brings the best of indoor and outdoor living together. 0

Exterior Design & Curb Appeal
This two-story cabin carries a timeless mountain-oriented silhouette, charming and grounded with a width of about 44′ 2″ and a depth of ~51′. 1 Traditional cabin elements such as pitched rooflines and rustic material palettes connect beautifully with natural surroundings — whether nestled among pines, perched lakeside, or along rolling countryside. 2 Generous covered porches enhance the home’s presence while welcoming relaxing outdoor moments. 3

Front & Rear Porch Spaces — Outdoor Living Everywhere
Porches play an essential role in this cabin design. 4 A spacious covered front porch sets the tone for outdoor connection, offering plenty of room for seating or rocking chairs where you can enjoy morning views or greet neighbors. 5 At the back, another generous porch space invites al fresco dining, sunset gatherings, or peaceful evenings under the stars just steps from the main living areas. 6 Combined, these spaces create an extended “outdoor living room” that enhances everyday comfort. 7

Main Level — Living, Dining & Open Hearth
Stepping inside, you’re greeted by an open great room where the living area, dining nook, and kitchen converge. 8 Large windows bring light deep into the space, while a central fireplace anchors gatherings and sets a cozy tone on cool evenings. 9 Vaulted ceilings or exposed beams (common in this style) heighten the sense of space and draw the eye upward, making this area ideal for both relaxation and entertaining. 10

Kitchen — Practical & Social
The kitchen’s design balances efficient workflow with social connectivity. 11 Ample counter space and smart storage solutions make meal prep a breeze, while proximity to the dining and living areas ensures that conversations flow easily from chop block to dinner table. 12 A pantry or nearby storage keeps essentials organized and counters clutter-free. 13

Primary Suite — Tranquil & Private
The primary bedroom offers a calming retreat on the main level. 14 Thoughtfully positioned near the rear of the home, it provides peaceful separation from the central living area. 15 Its proximity to the main porch lets you step outside to morning sun or evening breeze with ease, while the en-suite bathroom and closet space support everyday convenience. 16

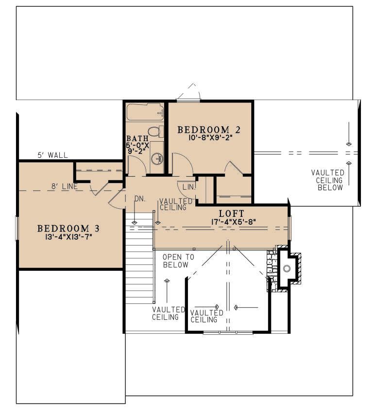
Secondary Bedrooms — Comfortable & Convenient
Two additional bedrooms are placed for comfort and privacy, featuring easy access to the shared second full bathroom. 17 These rooms offer flexible space that works well for children, guests, or home offices, and their thoughtful positioning keeps private zones calm without feeling isolated. 18

Loft Space — Flexible Upper Level
A standout feature of this design is the loft area above the main living spaces. 19 This flexible upper-level room can be a media hideaway, a play area, a library nook, or overflow guest sleeping space, depending on your needs. 20 Vaulted views down to the great room below connect the spaces and enhance light flow throughout both levels. 21

Natural Light & Indoor-Outdoor Harmony
Generous windows and multiple porch access points ensure that natural light and fresh air weave through nearly every room. 22 Large openings also frame views of the yard or natural surroundings — perfect for cabins in wooded, lakefront, or mountain settings. 23 This connection between interior and exterior spaces supports a lifestyle focused on comfort and nature. 24

Dimensions & Key Features
- Total Heated Area: ~1,836 sq ft 25
- Bedrooms: 3 26
- Bathrooms: 2 full + 1 half 27
- Stories: 2 28
- Porches: Front & rear covered outdoor spaces 29
- Width: ~44′ 2″ 30
- Depth: ~51′ 31
- Style: Rustic Cabin / Mountain Retreat 32

Lifestyle Highlights
- Open great room with abundant light and impact-making fireplace for everyday living or entertaining.
- Front and rear covered porches extend living spaces into the outdoors. 33
- Split main-level bedrooms balance privacy with accessibility. 34
- Loft space adds flexible square footage for recreation, work, or relaxation. 35
- Traditional cabin proportions and materials create a timeless feel that blends with nature. 36

Estimated U.S. Build Cost (USD)
Assuming typical U.S. residential construction costs of about **$180–$260 per sq ft**, building this ~1,836 sq ft cabin could range between approximately **$330,000 and $477,000 USD**, excluding land, site prep, permits, and regional variations. 37

Why This Cabin Plan Works
This cabin plan combines the warmth of traditional rustic design with modern functionality. With generous outdoor porches, a flexible loft, comfortable sleeping areas, and open living spaces, it delivers a timeless retreat perfect for everyday life, weekend getaways, or long-term living surrounded by nature.












