This inviting cabin home plan offers approximately 1,403 square feet of well-organized living space featuring three bedrooms, two full bathrooms, and a half bathroom. Designed to blend rustic cabin charm with modern comfort and efficient functionality, this plan is ideal for families, vacation living, or anyone seeking a cozy yet spacious retreat. ([houseplans.net](https://www.houseplans.net/floorplans/798300167/cabin-plan-1403-square-feet-3-bedrooms-2.5-bathrooms))

Exterior Design
The exterior reflects classic cabin character, with a balanced façade, simple rooflines, and plenty of windows to bring natural light inside. Its footprint — approximately 60 feet wide by 44 feet deep — fits comfortably on wooded, lakeside, or countryside lots. A welcoming covered porch enhances outdoor living space and invites relaxation. ([houseplans.net](https://www.houseplans.net/floorplans/798300167/cabin-plan-1403-square-feet-3-bedrooms-2.5-bathrooms))
Natural materials like wood siding or stone accents complement the cabin aesthetic and help the home blend seamlessly with natural surroundings. Covered deck or porch areas provide additional space for outdoor enjoyment year-round. ([houseplans.net](https://www.houseplans.net/floorplans/798300167/cabin-plan-1403-square-feet-3-bedrooms-2.5-bathrooms))

Interior Layout Overview
Inside, the home is thoughtfully arranged for comfortable living without wasted space. The layout emphasizes an open and connected feel in shared areas while providing private bedroom zones that support rest and daily routines. Large windows in the living spaces help create bright interiors with views to the outdoors. ([houseplans.net](https://www.houseplans.net/floorplans/798300167/cabin-plan-1403-square-feet-3-bedrooms-2.5-bathrooms))
Main Living Area
The great room serves as the heart of the cabin, combining living and gathering spaces in an open-concept layout. Natural light pours in through large windows, enhancing the sense of space and connection with the outdoors. The kitchen, located adjacent to the dining area, offers practical counter space and cabinetry for daily use and entertaining. ([houseplans.net](https://www.houseplans.net/floorplans/798300167/cabin-plan-1403-square-feet-3-bedrooms-2.5-bathrooms))
The open layout encourages interaction and creates a warm, inviting atmosphere — perfect for relaxed living or hosting visitors. The dining area connects naturally with both the kitchen and the great room, making serving and socializing easy. ([houseplans.net](https://www.houseplans.net/floorplans/798300167/cabin-plan-1403-square-feet-3-bedrooms-2.5-bathrooms))
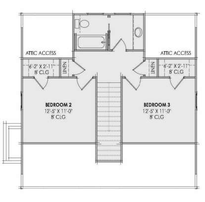
Bedrooms
This cabin plan includes three bedrooms. The primary suite provides a private retreat with direct access to one of the full bathrooms. Its placement away from the secondary bedrooms enhances privacy. ([houseplans.net](https://www.houseplans.net/floorplans/798300167/cabin-plan-1403-square-feet-3-bedrooms-2.5-bathrooms))
The two additional bedrooms are well-proportioned and located near the second full bathroom — ideal for family members, guests, or flexible use such as a home office or hobby room. Thoughtful window placement enhances natural light and comfort in all bedrooms. ([houseplans.net](https://www.houseplans.net/floorplans/798300167/cabin-plan-1403-square-feet-3-bedrooms-2.5-bathrooms))

Bathrooms
This home features two full bathrooms and a half bathroom. The primary full bathroom serves the main suite, while the second full bathroom supports the additional bedrooms and common areas. A conveniently located half bath adds everyday convenience, reducing congestion during busy mornings or when hosting guests. ([houseplans.net](https://www.houseplans.net/floorplans/798300167/cabin-plan-1403-square-feet-3-bedrooms-2.5-bathrooms))
Functional Features
- Open-concept living: Seamless flow between the great room, dining, and kitchen enhances everyday living and socializing. ([houseplans.net](https://www.houseplans.net/floorplans/798300167/cabin-plan-1403-square-feet-3-bedrooms-2.5-bathrooms))
- Three-bedroom layout: Offers flexibility for family, guests, or multifunctional space. ([houseplans.net](https://www.houseplans.net/floorplans/798300167/cabin-plan-1403-square-feet-3-bedrooms-2.5-bathrooms))
- Two full + one half bathrooms: Enhances comfort and convenience for residents and visitors. ([houseplans.net](https://www.houseplans.net/floorplans/798300167/cabin-plan-1403-square-feet-3-bedrooms-2.5-bathrooms))

- Covered porch: Adds outdoor living space perfect for seasonal enjoyment. ([houseplans.net](https://www.houseplans.net/floorplans/798300167/cabin-plan-1403-square-feet-3-bedrooms-2.5-bathrooms))
- Rustic aesthetic: Natural building materials and cabin styling enhance scenic appeal. ([houseplans.net](https://www.houseplans.net/floorplans/798300167/cabin-plan-1403-square-feet-3-bedrooms-2.5-bathrooms))
Dimensions and Structural Details
The home offers 1,403 square feet of heated living area, laid out on a single level for accessibility and ease of movement. Standard residential framing and a simple roof design support straightforward construction and long-lasting performance. Foundation options may include slab, crawlspace, or basement depending on site conditions and builder preferences.

Estimated Building Cost (USD)
Building costs vary based on regional labor rates, material selections, finishes, and site conditions. Using a mid-range estimate:
- Low estimate: ~ $168,360 (assuming ~$120 per sq ft × 1,403 sq ft)
- High estimate: ~ $252,540 (assuming ~$180 per sq ft × 1,403 sq ft)

Actual construction costs depend on customization, finish quality, and local market conditions, but this cabin plan’s efficient layout and modest footprint support affordable and enjoyable living with rustic character and modern comfort.












