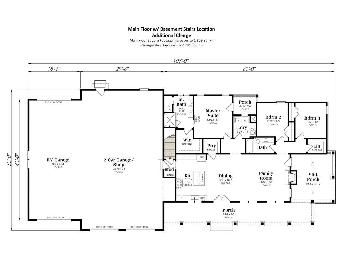
This charming barndominium blends practical living with rustic barn-inspired character across about 1,780 sq ft of heated space. The design offers 3 bedrooms, 2 full bathrooms, and a large 3-car garage — making it an ideal choice for homeowners who value open interiors, generous storage, and flexible living areas all wrapped in a warm, versatile style. 0

Exterior Design & Curb Appeal
The exterior presents classic barndominium appeal with broad, simple lines echoing barn architecture, tempered by thoughtful design details that give it a welcoming residential feel. 1 At roughly 108′ wide × 50′ deep, the footprint commands presence on the lot while embracing the simplicity and strength this style is known for. 2 Clean siding, expansive rooflines, and a practical covered entry combine rustic spirit with modern practicality. 3

Garage, Shop & Outdoor Utility Space
A standout feature of this plan is the three-car garage — a hallmark of barndominium designs. 4 The expansive garage space not only protects vehicles but also offers the potential for workshop zones, hobby storage, or outdoor gear organization, making it a haven for do-it-yourself enthusiasts or families with diverse needs. 5 Whether it’s an RV, tractor, or classic car collection, there’s room to spare without compromising the home’s living areas. 6

Open & Functional Main Living Area
Step inside and you’re greeted by an open living zone that encourages connection and ease of movement. 7 This main living area combines the living room, dining, and kitchen into a cohesive space where natural light flows and outdoor views are emphasized through sizable windows. 8 High ceilings add volume and a sense of airiness, strengthening the feeling of spaciousness throughout daily living. 9

Kitchen & Dining — Designed for Practical Life
The kitchen anchors the central living space with a functional layout that supports meal preparation and casual gatherings alike. 10 A large island or peninsula area offers counter space for cooking and seating for quick bites or conversations while dinner comes together. 11 Ample cabinets ensure storage is out of sight but always within reach, enhancing both style and function. 12

Primary Suite — Comfortable & Private
The primary bedroom is thoughtfully placed for comfort and peace, featuring generous windows that welcome daylight without sacrificing privacy. 13 Its attached full bathroom includes a well-proportioned layout with modern fixtures and storage solutions that support ease of daily use. 14 A walk-in closet offers practical storage for clothing and personal items, keeping the bedroom calm and organized. 15

Secondary Bedrooms & Shared Bathroom
Two secondary bedrooms — versatile enough for family members, guests, or a home office — share a well-appointed bathroom positioned for easy access. 16 Thoughtfully sized, these rooms feel bright and comfortable thanks to ample natural light and placements that allow for flexible furnishings. 17 Whether for children, visiting family, or an at-home work zone, these spaces adapt to your needs. 18

Indoor-Outdoor Connection & Natural Light
Large windows and well-placed patio doors throughout the main living areas ensure plenty of sunshine illuminates the interior from dawn to dusk. 19 These design choices enhance everyday comfort and strengthen your connection to the surrounding landscape, whether you’re in the living room, kitchen, or bedrooms. 20

Dimensions & Key Features
- Total Heated Area: ~1,780 sq ft 21
- Bedrooms: 3 22
- Bathrooms: 2 full 23
- Stories: 1 24
- Garage: 3-car attached 25
- Width: ~108′ 26
- Depth: ~50′ 27
- Ceiling Height: ~10 ft on main floor 28

Lifestyle Highlights
- Open, light-filled living area designed for flexibility and everyday comfort.
- Spacious workshop-ready three-car garage that doubles as functional storage or hobby space.
- Functional kitchen and dining arrangement that supports both everyday meals and entertaining.
- Private primary suite with generous closet and attached bathroom.
- Secondary bedrooms that adapt easily to family, guests, or work-from-home zones.
- Strong indoor-outdoor connection with abundant natural light throughout. 29

Estimated U.S. Build Cost (USD)
Assuming typical U.S. residential construction costs of **$150–$240 per sq ft** for barndominium-style homes, building this ~1,780 sq ft plan could range between **$267,000 and $427,000 USD** — not including land, permits, or site preparation. 30

Why This Barndominium Plan Works
This barndominium design merges barn-inspired utility with warm, family-friendly spaces. With a roomy workshop-ready garage, open common areas, and flexible bedroom arrangements, it’s well-suited for those who want a home that’s both practical and stylish — perfect for everyday living and hobbies alike.












