This spacious and versatile barndominium-style home offers approximately 2,921 square feet of heated living space with five bedrooms, four full bathrooms, and one half bathroom. Designed as a two-story residence, this plan combines the open, flexible nature of barndominium living with modern comfort and functionality. With its expansive layout and attached three-car garage, it is ideal for large families or those seeking a home with both living and utility space. 0
Exterior Design
The exterior reflects the signature barndominium style, characterized by a barn-inspired structure with clean lines and a practical design. Barndominiums are known for blending residential living with functional spaces such as garages or workshops, often within a single cohesive structure. 1
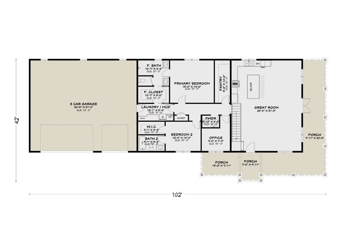
The home features an impressive footprint measuring approximately 102 feet wide and 42 feet deep, giving it a wide, low-profile appearance while maximizing interior space. 2
Its simple yet bold form allows for efficient construction while maintaining strong visual appeal, especially in rural or suburban settings.
Interior Layout Overview
The home’s 2,921 square feet of living space is spread across two levels, offering a balance between open communal areas and private living quarters. 3

The design emphasizes spaciousness and flexibility, allowing homeowners to adapt rooms for various uses such as offices, guest spaces, or hobby areas.
Main Living Area
The main living area serves as the central gathering space, featuring an open-concept layout that connects the living room, kitchen, and dining areas. This design enhances flow and encourages interaction, making it ideal for both daily living and entertaining.
High ceilings and wide-open spaces—common in barndominium designs—create an airy and expansive atmosphere.
Kitchen and Dining
The kitchen is designed to handle both everyday use and larger gatherings, with ample counter space and storage. Its open connection to the dining area ensures convenience and functionality.
The dining space is positioned to maintain easy access to both the kitchen and living room, creating a cohesive and practical layout.
Bedrooms
This home includes five bedrooms, making it ideal for larger households or multi-generational living. 4
The primary suite offers a private retreat, while the additional bedrooms are distributed across the home to provide comfort and flexibility for family members or guests.
Some bedrooms can also be adapted for alternative uses such as a home office, gym, or media room.

Bathrooms
The design includes four full bathrooms and a half bathroom, ensuring convenience for both residents and visitors. 5
This generous number of bathrooms enhances functionality and supports busy households with ease.

Functional Features
- Two-story design: Maximizes living space and separation of areas. 6
- Five-bedroom layout: Ideal for large families or flexible living.
- Open-concept living: Enhances flow and spaciousness.
- Barndominium style: Combines residential comfort with functional design. 7

- Three-car garage: Provides ample parking and storage. 8
- Wide footprint: Allows for expansive interior layouts.
- Flexible spaces: Rooms can adapt to various needs over time.
Garage and Additional Space
The attached three-car garage offers significant space for vehicles, storage, or workshop use, making it one of the key functional highlights of the home. 9
The barndominium design also allows for additional utility or hobby areas, depending on how the space is customized.

Dimensions and Structural Details
The home measures approximately 102 feet in width and 42 feet in depth, creating a broad and efficient layout. 10
Barndominiums are typically constructed using durable materials such as metal or wood framing, offering both strength and flexibility in design. 11
Estimated Building Cost (USD)
Construction costs vary depending on materials, labor, and location. Using common mid-range estimates:
- Low estimate: ~ $350,520 (assuming ~$120 per sq ft × 2,921 sq ft)
- High estimate: ~ $525,780 (assuming ~$180 per sq ft × 2,921 sq ft)

This barndominium house plan offers a powerful combination of space, flexibility, and modern functionality. Its large layout, multiple bedrooms, and practical design make it an excellent choice for homeowners seeking a spacious and adaptable home with distinctive character.
“`12













