This striking modern farmhouse plan offers approximately 2,686 sq ft of heated living area and features a flexible layout with between 4 and 5 bedrooms alongside 2.5 to 3.5 bathrooms. It’s designed with versatility in mind—ideal for families who want generous space plus the freedom to adapt. 0

Exterior & Curb Appeal
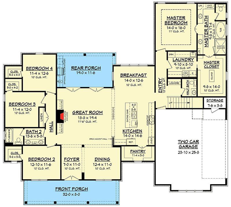
The home’s footprint spans about 76′ 0″ wide by 66′ 8″ deep, presenting an expansive but approachable profile. 1 The roof uses a primary pitch of 9 on 12 with secondary elements at 12 on 12, giving strong rooflines that echo classic farmhouse style yet feel refined. 2

From the front, the design conveys inviting presence — a formal entry flows into generous living spaces, siding and accent walls give texture, wide porches soften the interface with the outdoors. According to the spec sheet, the front porch covers about 256 sq ft, while the rear porch adds roughly 222 sq ft of covered outdoor living. 3 The attached 2-car garage (approx. 663 sq ft) is side-entry, which keeps the front elevation clean and enhances curb appeal. 4

Open Living & Kitchen
Step inside and you’ll find a well-balanced layout where formality meets function. A formal dining room opens into a large great room that offers high ceilings — the great room floor height is 10 feet with some areas rising to 11′ 6″. 5 The brick accent wall and optional vaulted ceiling (in some builds) elevate the space visually. 6

The kitchen is positioned for both everyday ease and entertaining: it features a large island with bar seating, a walk-in pantry, and clear sight lines to the rear porch. From the kitchen you can move outdoors for grilling or al-fresco dining without fuss. 7 The open flow between kitchen, dining and living zones encourages connectivity — ideal for modern family living.


Bedroom Layout & Privacy
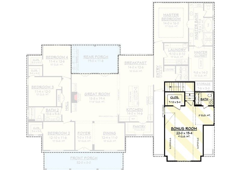
- The master suite occupies a secluded wing and includes a tray ceiling (11′ high), his & her closets, and direct access to laundry/mud zones. 8
- Three additional well-sized bedrooms share the opposite side of the home — each with large walk-in closets. Together they share full bathroom space and are grouped for family or guest use. 9

- A key feature: the bonus room above garage (approximately 509 sq ft) adds tremendous flexibility — it could serve as a guest suite, home office, gym or game room, effectively giving the plan 4 to 5 bedrooms depending on how it’s used. 10
The layout carefully separates private zones from public ones: the master and bonus are tucked away from the main living flow, giving everyone space and privacy.

Additional Features
The design includes mud-room access via the garage, a practical drop-zone for family gear. It also offers standard slab foundation, 2×4 exterior walls (with optional 2×6 upgrade) for builder flexibility. 11 The height of ridge is about 27′ 3″, presenting strong architectural presence without excessive scale. 12

Outdoor living is well-emphasised: the rear porch opens to the backyard, and optional outdoor kitchen or fireplace could be added for enhanced functionality. The bonus space lends itself to finishing for additional uses without expanding the main footprint.

Estimated U.S. Build Cost (USD)
Assuming mid-range finishes and typical U.S. construction rates for a home of this style and size, you might expect costs in the ballpark of **$170–$245 per sq ft**. For ~2,686 sq ft, that places your estimated construction cost around **$457K to $658K USD**, before land, site work, permits, and regional cost variation. If you choose high-end finishes or fully finish the bonus space, budget on the higher side of that range or beyond.

Pros & Considerations
- Pros: Spacious and flexible layout with bonus room gives excellent adaptability; strong curb appeal; open plan living with connection to outdoors; good separation of private zones.
- Considerations: The width (76′) and depth (66′8″) require a relatively ample lot and favorable zoning/setbacks; finishing the bonus room will add cost beyond base; some might regard the single-story footprint as limiting vertical separation (though it is highly accessible).











