This plan features a striking blend of modern farmhouse and barndominium styling. The exterior showcases long vertical siding, expansive covered porch, and a strong barn-inspired curb appeal—all while delivering a spacious, functional interior designed for contemporary living. 1

Exterior Design
The home spans a width of **107′ 8″** and a depth of **57′ 10″**, with a maximum ridge height of 27′ 0″. 2 The roof uses a primary pitch of 6 on 12 and a secondary pitch of 3 on 12, giving that sharp farmhouse silhouette. 3

The massive covered front porch invites outdoor living and enhances the barndominium aesthetic, while the vertical siding and expansive gables reinforce the modern-farmhouse character. The attached front-entry two-car garage (658 sq ft) blends into the design without dominating it. 4

Interior Walkthrough
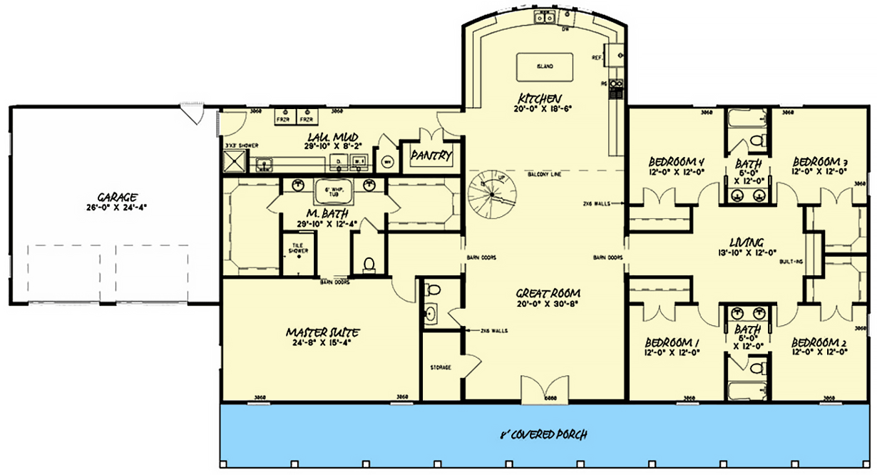
With **3,277 sq ft** of heated living area on a single floor (plus an optional 603 sq ft bonus space) this single-story plan offers five bedrooms and three full bathrooms plus one half bath. 5

Entering through the front porch, you’re greeted by an open-plan great room whose sightlines extend into the kitchen and dining area. The design purposely allows visual flow from living space to kitchen, promoting openness and togetherness. 6 Sliding barn doors flank the great room, adding architectural interest and flexibility—these can close off the space for privacy or open it up for entertaining. 7

The master suite is located on the main level, featuring a seating area (ideal for a small desk or vanity), dual walk-in closets, a tile shower, and a whirlpool tub. This suite is designed for comfort and convenience. 8
On the far side of the home, four additional bedrooms are arranged in pairs sharing Jack-&-Jill style bathrooms—perfect for children or guests. A shared living space in that zone can serve as a play room, game area, or secondary lounge. 9
A large mudroom and laundry room are positioned at the rear of the home, offering “shotgun style” entry (i.e., direct from the garage or outside into the utility area) which helps maintain organization and reduces clutter in living spaces. 10
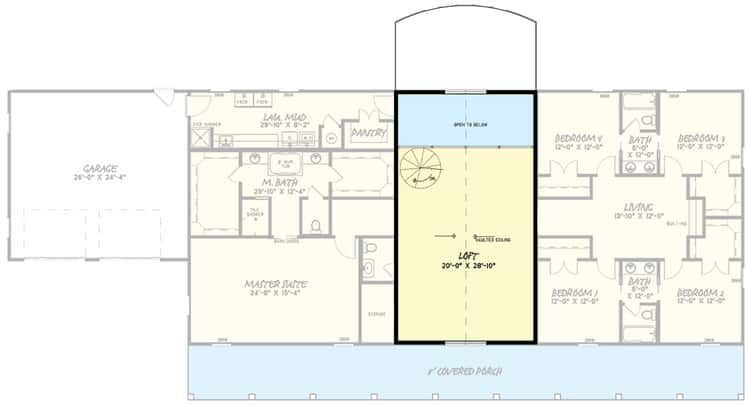
Above the great room, there’s an optional loft (within the bonus 603 sq ft) that can serve as a game room, home office, or additional lounge space. 11 Ceiling heights on both the first and optional second level are 10 ft, which gives a spacious feel throughout. 12

Dimensions & Build Specs
- Width: 107′ 8″ 13
- Depth: 57′ 10″ 14
- Max Ridge Height: 27′ 0″ 15
- Heated Area: 3,277 sq ft on main level 16
- Optional Bonus Area: 603 sq ft 17
- Porch / Combined area: 651 sq ft 18
- Garage Area: 658 sq ft (2-car, front entry) 19
- Ceiling Heights: First Floor 10′, Second Floor (if finished) 10′ 20
- Exterior Wall Construction: 2×4 standard (2×6 optional) 21
Estimated Cost to Build
While the plan itself does not provide a specific cost estimate for building, you can expect that a home of this size and level of finish, with 3,277 sq ft plus bonus space, quality materials, and the barndominium/modern farmhouse exterior would likely cost in the order of **USD $250–$350 per sq ft** (or more depending on location, materials, labour, finishes, local codes). Using a midpoint of $300/sq ft, the build cost could approximate **$980,000–$1,100,000 USD**. For a more modest finish, cost might be lower; for premium finishes, higher. Always consult a local contractor/builder for a real cost estimate in your region.

Why Choose This Plan?
This design merges the trendy barndominium aesthetic with functional family-friendly layout. The large open living space, optional loft, and smart bedroom layout make it ideal for families who want modern styling plus practical living. The covered porch expands outdoor living potential, and the barn-style details give character seldom found in standard tract homes.
Considerations & Tips
• Because of its width (~108′), you’ll need a lot of frontage space on your lot; ensure your site can accommodate the span and allow for appropriate setbacks.
• The ridge height of 27′ means you must verify local zoning height limits.
• If you’re building outside of the U.S., check with local engineers/architects for structural compliance, especially regarding roof pitch, wind loads, and seismic requirements.
• The optional loft/bonus can be finished later if budget dictates, giving flexibility.
• Customizing the plan (e.g., adapting wall construction from 2×4 to 2×6, or switching out finishes) will affect cost significantly.
This house-plan offers a strong combination of aesthetics, functionality, and spaciousness, and could make an excellent choice for a modern farmhouse build with style and practicality.
22












