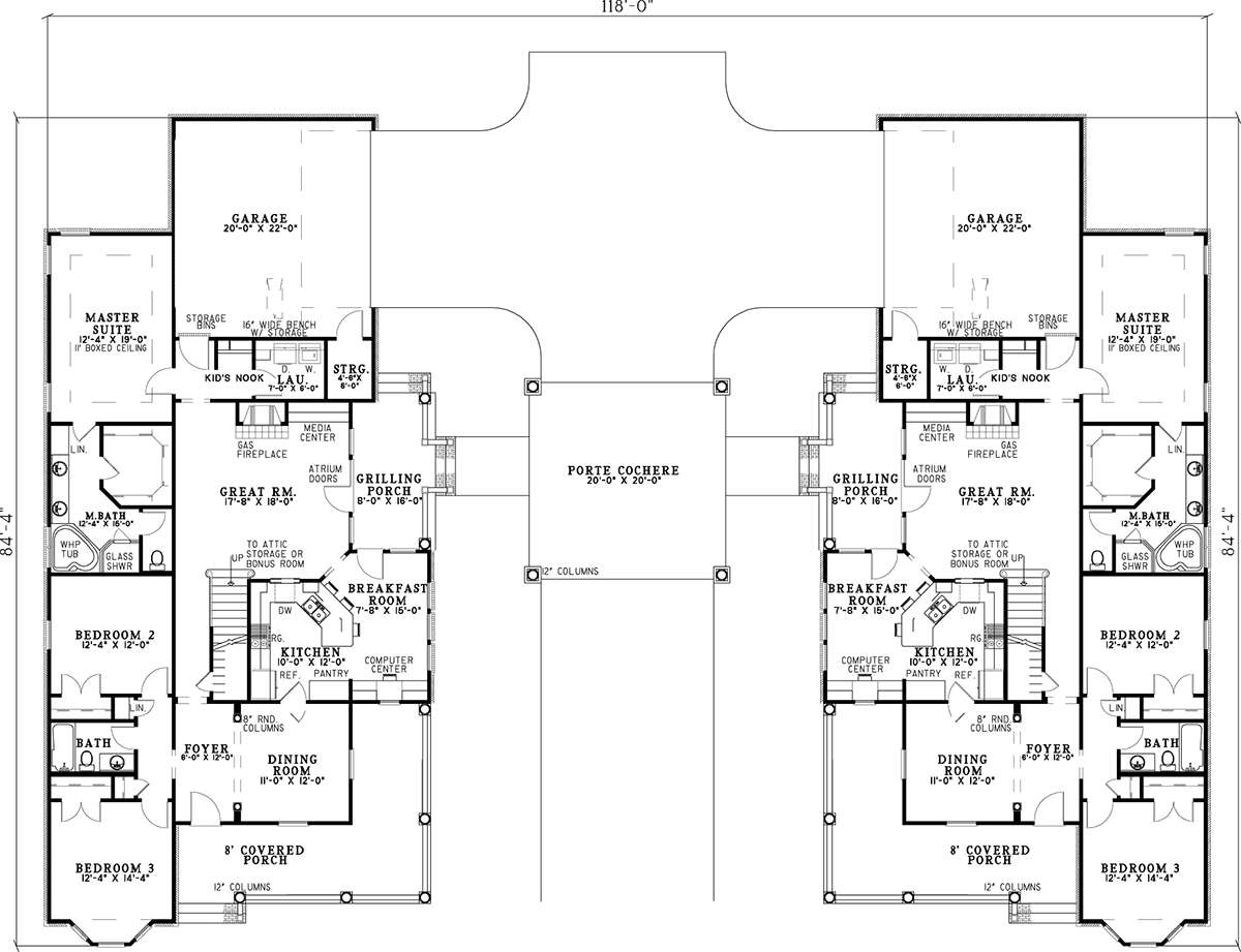
This duplex plan offers two mirrored living units under one roof — a thoughtful design combining privacy, convenience, and shared structure. The total footprint is about 3,866 sq ft of heated living space, split into two identical units. Each unit delivers approximately 1,933 sq ft, with 3 bedrooms, 2 full baths, and an attached 483 sq ft garage. With shared architectural features and separate, comfortable living zones, it’s ideal for extended families, rental income, or multi-household living. 0
Exterior & Curb Appeal — Classic Country-Style Charm with Practical Duplex Design
The exterior presents a welcoming, balanced façade with a shared porte cochere — a covered passageway acting as a central driveway/entry feature between the two units. 0 Covered porches wrap around the front and sides of the structure, offering great spots for seating, greeting neighbors, or relaxing outdoors. 1

This country-style exterior gives the duplex a homey, traditional feel — more like two homes sharing a roof rather than a generic apartment block — which helps it blend nicely in suburban or rural settings. 2
Unit Layout & Living Spaces — Open, Flexible & Family-Friendly
Each unit centers around an open living area that flows into the kitchen and dining zone — perfect for everyday life, family time, or hosting guests. 3 The layout includes thoughtful touches like kid’s nooks or small computer/desk areas (as indicated in the plan’s features), adding flexibility for work, study, or hobbies. 4
Upstairs (or in an optional bonus area), there’s additional space — a bonus room that could serve as a home theater, playroom, guest room, or extra office depending on your needs. 5 This extra flexibility makes the design adaptable for growing families or changing lifestyle needs.
Bedrooms & Private Areas — Comfortable & Well-Divided for Family Living
Each unit offers three bedrooms and two full bathrooms — a configuration that suits families, roommates, or multi-generational living. 6 The master bedroom, along with the additional bedrooms, sit within a layout that balances privacy and accessibility. The design ensures that even in a duplex format, each household enjoys a sense of their own home. 7

With full garages attached to each unit, residents get private and secure vehicle/storage space — a plus for daily convenience and long-term functionality. 8
Garage & Shared Infrastructure — Smart Use of Shared and Private Space
- Garage (per unit): Attached, ~483 sq ft — enough space for a vehicle plus storage, tools, or bikes. 9
- Shared Porte Cochere: A covered drive/pass-through between the two units — practical for vehicles or as a sheltered entry, and gives the duplex architectural character. 10
- Porches & Outdoor Access: Covered front and side porches wrap around the building — offering outdoor relaxation space for both units without extra land requirement. 11
Plan & Specs Summary
- Total Heated Living Area: ~3,866 sq ft (both units combined) 0
- Heated Area per Unit: ~1,933 sq ft 12
- Bedrooms per Unit: 3 13
- Bathrooms per Unit: 2 full baths 14
- Garage (per Unit): ~483 sq ft attached 15
- Key Features: Shared porte cochere, covered wrap-around porches, kid’s nooks/computer centers, optional bonus room, mirrored duplex layout. 16
Lifestyle Benefits — Shared Structure, Separate Lives, Great Flexibility
- Dual-family or extended family friendly: Two full units within a single structure — ideal for parents + adult children, rental income, or shared living with privacy.
- Affordability & efficient land use: Shared walls and shared roof/structure reduce construction and maintenance cost compared to two separate homes.
- Flexible living options: Bonus rooms, kid’s areas, and open living spaces adapt to families with children, roommates, or changing household needs.
- Private spaces where it matters: Each unit has private bedrooms, bathrooms, and garages — giving independence while sharing the main building.
- Outdoor-ready living: Covered porches and shared porte cochere blend functionality with a welcoming, home-style feel — even in duplex format.
Estimated U.S. Build Cost (USD)
Assuming moderate to mid-range finishing standards and average U.S. residential building costs around $170–$230 per sq ft, constructing the full duplex (≈ 3,866 sq ft) could be expected to cost in the ballpark of **$658,000–$890,000 USD** (excluding land, site prep, permits, and local variation). For a single unit (~1,933 sq ft), the build cost might fall roughly in the range of **$329,000–$445,000 USD**.
Why This Plan Works — Balanced, Flexible & Value-Oriented Duplex Living
This two-family home with shared porte cochere is a smart solution when you want the benefits of dual-unit living — privacy, independence, and separate households — without doubling the footprint, footprint costs, or maintenance. The design provides functional, comfortable homes that still feel like private houses, while sharing structure, site, and utilities. For extended families, rental use, or multi-generational living, it strikes an excellent balance between practicality, comfort, and value. 0
If you like — I can prepare a “checklist-only” HTML snippet or a CMS-ready version of this plan summary so you can copy-paste easily into your site. Just say the word and I’ll build it for you now.
17re — Comfortable, Efficient & Family-Friendly Duplex (~3,866 Sq Ft Total)
This duplex plan offers two mirrored living units under one roof — a thoughtful design combining privacy, convenience, and shared structure. The total footprint is about 3,866 sq ft of heated living space, split into two identical units. Each unit delivers approximately 1,933 sq ft, with 3 bedrooms, 2 full baths, and an attached 483 sq ft garage. With shared architectural features and separate, comfortable living zones, it’s ideal for extended families, rental income, or multi-household living. 0
Exterior & Curb Appeal — Classic Country-Style Charm with Practical Duplex Design
The exterior presents a welcoming, balanced façade with a shared porte cochere — a covered passageway acting as a central driveway/entry feature between the two units. 0 Covered porches wrap around the front and sides of the structure, offering great spots for seating, greeting neighbors, or relaxing outdoors. 1
This country-style exterior gives the duplex a homey, traditional feel — more like two homes sharing a roof rather than a generic apartment block — which helps it blend nicely in suburban or rural settings. 2
Unit Layout & Living Spaces — Open, Flexible & Family-Friendly
Each unit centers around an open living area that flows into the kitchen and dining zone — perfect for everyday life, family time, or hosting guests. 3 The layout includes thoughtful touches like kid’s nooks or small computer/desk areas (as indicated in the plan’s features), adding flexibility for work, study, or hobbies. 4
Upstairs (or in an optional bonus area), there’s additional space — a bonus room that could serve as a home theater, playroom, guest room, or extra office depending on your needs. 5 This extra flexibility makes the design adaptable for growing families or changing lifestyle needs.
Bedrooms & Private Areas — Comfortable & Well-Divided for Family Living
Each unit offers three bedrooms and two full bathrooms — a configuration that suits families, roommates, or multi-generational living. 6 The master bedroom, along with the additional bedrooms, sit within a layout that balances privacy and accessibility. The design ensures that even in a duplex format, each household enjoys a sense of their own home. 7
With full garages attached to each unit, residents get private and secure vehicle/storage space — a plus for daily convenience and long-term functionality. 8
Garage & Shared Infrastructure — Smart Use of Shared and Private Space
- Garage (per unit): Attached, ~483 sq ft — enough space for a vehicle plus storage, tools, or bikes. 9
- Shared Porte Cochere: A covered drive/pass-through between the two units — practical for vehicles or as a sheltered entry, and gives the duplex architectural character. 10
- Porches & Outdoor Access: Covered front and side porches wrap around the building — offering outdoor relaxation space for both units without extra land requirement. 11
Plan & Specs Summary
- Total Heated Living Area: ~3,866 sq ft (both units combined) 0
- Heated Area per Unit: ~1,933 sq ft 12
- Bedrooms per Unit: 3 13
- Bathrooms per Unit: 2 full baths 14
- Garage (per Unit): ~483 sq ft attached 15
- Key Features: Shared porte cochere, covered wrap-around porches, kid’s nooks/computer centers, optional bonus room, mirrored duplex layout. 16
Lifestyle Benefits — Shared Structure, Separate Lives, Great Flexibility
- Dual-family or extended family friendly: Two full units within a single structure — ideal for parents + adult children, rental income, or shared living with privacy.
- Affordability & efficient land use: Shared walls and shared roof/structure reduce construction and maintenance cost compared to two separate homes.
- Flexible living options: Bonus rooms, kid’s areas, and open living spaces adapt to families with children, roommates, or changing household needs.
- Private spaces where it matters: Each unit has private bedrooms, bathrooms, and garages — giving independence while sharing the main building.
- Outdoor-ready living: Covered porches and shared porte cochere blend functionality with a welcoming, home-style feel — even in duplex format.
Estimated U.S. Build Cost (USD)
Assuming moderate to mid-range finishing standards and average U.S. residential building costs around $170–$230 per sq ft, constructing the full duplex (≈ 3,866 sq ft) could be expected to cost in the ballpark of **$658,000–$890,000 USD** (excluding land, site prep, permits, and local variation). For a single unit (~1,933 sq ft), the build cost might fall roughly in the range of **$329,000–$445,000 USD**.
Why This Plan Works — Balanced, Flexible & Value-Oriented Duplex Living
This two-family home with shared porte cochere is a smart solution when you want the benefits of dual-unit living — privacy, independence, and separate households — without doubling the footprint, footprint costs, or maintenance. The design provides functional, comfortable homes that still feel like private houses, while sharing structure, site, and utilities. For extended families, rental use, or multi-generational living, it strikes an excellent balance between practicality, comfort, and value.











