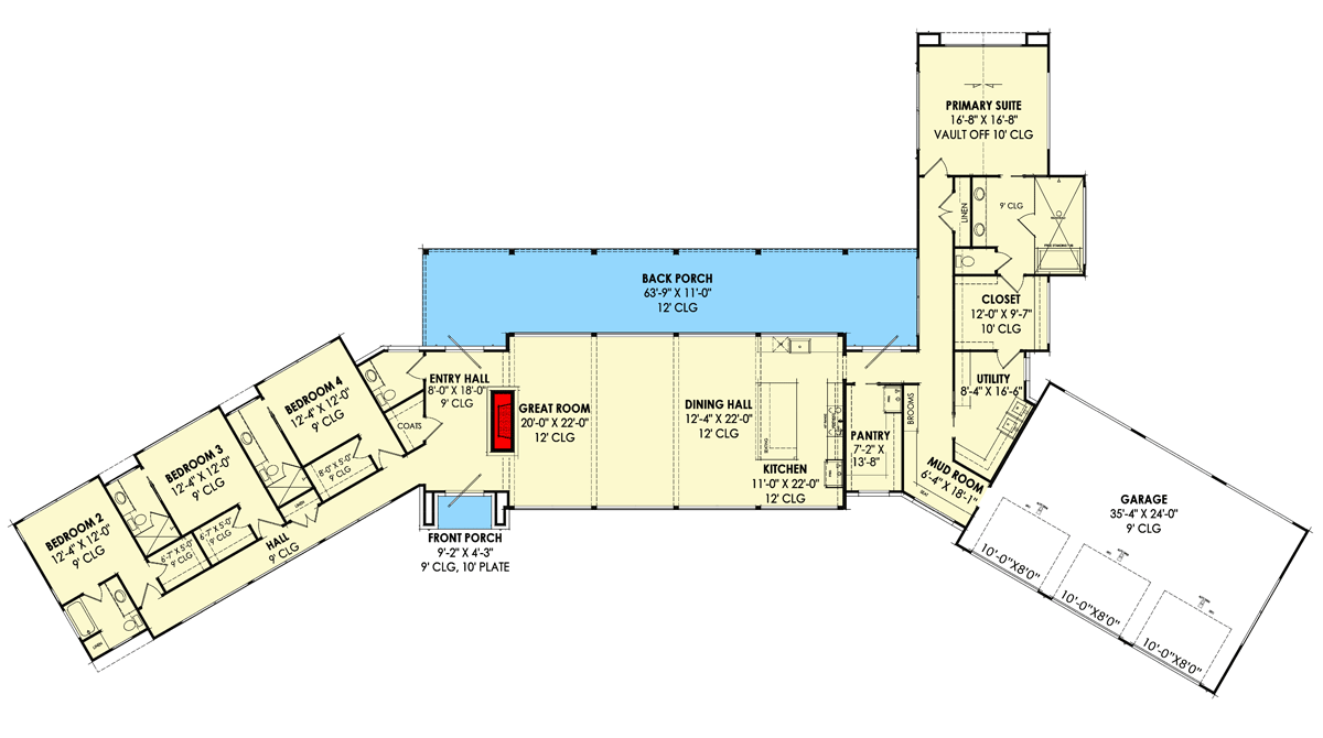
This modern ranch design delivers around 3,562 sq ft of heated living space on one level. It includes 4 bedrooms, 4 full baths + 1 half bath, and a spacious attached 3-car garage (~952 sq ft). With its wide layout, angled wings, abundant windows, and open-concept core, the house aims to immerse you in natural light and views from nearly every corner — a comfortable, elegant home for families or anyone who values space and connection with the outdoors. 0

Exterior & Curb Appeal — Bold, Balanced & Designed for Views
The exterior spans roughly 168′ 6″ wide × 86′ deep, with a low-slung, ranch-style profile that feels grounded yet expansive. 0 The design uses two angled wings — one side for bedrooms, the other for the garage — which creates a balanced, symmetrical presence while opening up the central part of the home for wide-ranging views. 1 Large windows blanket the front façade and throughout the home, ensuring light floods the interior and giving nearly every room a connection to the outside. 2
The 3-car garage is substantial — providing about 952 sq ft — and its placement helps keep cars and storage tucked neatly out of sight, preserving the home’s modern, clean curb aesthetic. 3
Great Room & Open-Concept Core — Light, Flow & Indoor-Outdoor Connection
Walking through the entry, you’re drawn into a spacious great room defined by a high 12-foot beamed ceiling. 4 A fireplace anchors the room, visible even from behind the large kitchen island — perfect for cozy evenings or gatherings. 5

The great room flows directly into the kitchen and dining area, making the heart of the home open, social, and functional. 6 Double doors lead from the core to a large covered rear porch — ideal for dining, lounging, or enjoying the view — while another door by the walk-in pantry offers additional outdoor access. 7
Kitchen, Pantry & Day-to-Day Function — Practical Elegance
The kitchen is generously sized, featuring a large island that offers workspace and casual seating — great for day-to-day meals or entertaining. 8 Nearby, a walk-in pantry provides substantial storage for groceries, dishes, or small appliances — helping keep daily clutter hidden and the main living area tidy. 9
This layout keeps the kitchen connected to the living and dining zones, making cooking and entertaining feel seamless and inclusive. 10
Bedrooms & Private Spaces — Comfort, Privacy & Masterful Layout
The home includes four bedrooms. The master suite is tucked privately at the rear, offering a vaulted ceiling, a generous walk-in closet, and direct access to the laundry room — a thoughtful convenience that streamlines daily life. 11
The other bedrooms are located in the left-wing of the home, separated from the master for privacy. This layout works well for families, guests, or multi-generational living, giving each occupant space and privacy without sacrificing overall flow. 12
Garage, Utility & Construction Details — Built for Real Life
- Garage: 3-car attached garage (~952 sq ft), with individual 10′ × 8′ overhead doors — ample space for vehicles, storage, and workshop use. 13
- Foundation & Frame: Monolithic slab foundation; exterior walls framed in 2×4 (optional upgrade to 2×6) — straightforward structural design. 14
- Ceilings: Main living area has a 12′ beamed ceiling, creating volume and openness; other spaces stay comfortably proportioned. 15
- Overall Footprint: Wide 168′ 6″ front width — well-suited for larger lots or properties where maximizing frontage and exposure to views is a priority. 16
Layout & Specs Summary
- Total Heated Living Area: ~3,562 sq ft 0
- Bedrooms: 4 0
- Bathrooms: 4 full + 1 half = 4.5 total 0
- Garage: 3-car attached (~952 sq ft) 0
- Stories: Single-story ranch layout 0
- Porch / Outdoor Living: Rear covered porch ~741 sq ft + modest front porch ~40 sq ft 17
- Design Features: Wide ranch footprint with angled wings for views, vaulted beamed great room, open-concept core, fireplaces, walk-in pantry, master suite with private bath + laundry access, large garage — a design built around comfort, view, and everyday living. 18
Lifestyle Benefits — Light-Filled Living, Flexibility & Connection to Nature
- Panoramic Views & Natural Light: With windows spanning much of the façade and a wide, angled layout, the house offers natural light and views from most rooms — ideal for scenic lots or for those who love bright, airy interiors. 0
- Open, Social Living Spaces: The vaulted great room, open kitchen, and dining layout make the home perfect for family gatherings, entertaining, or shared living — everything flows together naturally. 0
- Private Retreats: The master suite’s quiet location, vaulted ceiling, and direct laundry access create a comfortable retreat away from the hub of activity. 0
- Practical and Spacious Garage: The 3-car garage gives room for vehicles, storage, workshop, or recreational gear — ideal for active households or those needing flexibility and storage. 0
- Indoor-Outdoor Balance: A large rear covered porch extends living space outdoors — perfect for dining, relaxing, or simply enjoying fresh air while staying sheltered and comfortable. 0
Estimated U.S. Build Cost (USD)
Assuming a mid-range finish level and typical U.S. residential construction costs ranging from about $180–$260 per sq ft, building ~3,562 sq ft suggests a rough budget of **$641,000–$926,000 USD** (excluding land, site prep, permits, utilities, and regional variations). Given the generous size, open layout, and high-end design touches, this range provides a realistic baseline for budgeting. 0

Why This New Zealand-Modern Ranch Plan Is Special — Spacious, View-Ready & Thoughtfully Designed
This single-story New Zealand-modern ranch offers a rare blend of breadth, light, functionality, and modern aesthetic — all wrapped into one layout. With its wide footprint, angled wings, and expansive windows, the home is designed to capture views and natural light from every angle. Whether you value indoor-outdoor flow, generous living spaces, flexibility for family and guests, or simply the kind of home that feels roomy yet connected — this plan delivers it all with sophistication and practicality. It’s a ranch-style home that doesn’t compromise on space, comfort, or modern living needs.












