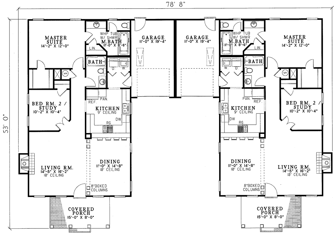
The Plan 59320ND presents a neat, well-proportioned duplex offering a total of about 2,344 sq ft of heated living space — divided into two mirror units. Each unit delivers roughly 1,172 sq ft, with 2 bedrooms, 2 full bathrooms, and an attached single-car garage. 0
Exterior & Curb Appeal — Balanced, Welcoming, and Traditional
The duplex facade spans about 78′ 8″ wide × 53′ deep, giving it a modest yet substantial presence suited to suburban or rural residential lots. 1
Each unit features a covered front porch that adds charm and offers a welcoming entry — ideal for small-lot living or for a duplex that feels like two cozy homes rather than an apartment block. 2

Despite being a duplex, the design has a comfortable, home-like feel — the roofline and proportions keep the structure from feeling too institutional. 3
Unit Layout — Open Living, Functional Kitchen & Smart Flow
Each unit features a generous living area anchored by ten-foot ceilings and elegant boxed-column details, creating a sense of openness and light as soon as you walk in. 4
The living room flows into a formal dining area and an adjoining kitchen with an eat-at bar — a practical setup that makes everyday living, cooking, or casual dining feel natural and connected. 5
This open-plan arrangement helps each unit feel more spacious and welcoming than its modest square footage might suggest, giving residents breathing room and functional comfort. 6
Bedrooms & Private Spaces — Comfortable for Small Families or Roommates
Each unit includes two bedrooms, with the master suite featuring its own full bathroom — complete with a tub/shower setup for comfort and convenience. 7
The second bedroom (or alternate study/den) shares a second full bath, making the unit well-suited for small families, couples, roommates, or even as a rental unit with private sleeping quarters for each occupant. 8
Garage, Porch & Outdoor Access — Practical & Private
Each unit comes with an attached single-car garage (~161 sq ft per unit) — convenient for car storage, extra storage space, or keeping the exterior tidy. 9
Combined with the front porch (shared or mirrored depending on site layout), the design maintains privacy and a homey feel, while offering practical amenities even in a duplex format. 10
Plan & Specs Summary
- Total Heated Area (both units): ~2,344 sq ft 0
- Heated Area per Unit: ~1,172 sq ft 0
- Bedrooms per Unit: 2 beds 0
- Bathrooms per Unit: 2 full baths 0
- Garage (per unit): Single-car attached (~161 sq ft) 0
- Covered Front Porch (per unit): Included — adds to curb appeal and outdoor access. 0
- Ceiling Height: 1st floor ~9′, with open living area enjoying 10′ ceilings for extra space and light. 0
- Structure: Standard stick-framed exterior walls (2×4, optional upgrade to 2×6), crawl or slab foundation. 0
Why This Duplex Plan Works — Practical, Versatile & Comfortable
- Independent living units: Two fully self-contained homes under one roof — ideal for dual-family living, renting one while occupying the other, or hosting long-term guests with privacy.
- Balanced comfort and compactness: Despite modest size, open living areas and thoughtful layout make each unit feel more spacious than expected.
- Flexibility for different living needs: With two bedrooms per unit, the design works for couples, small families, roommates, or rental purposes.
- Affordable, efficient living footprint: Smaller units mean lower heating, cooling, and maintenance costs — while still offering essential comforts like a garage, private baths, and outdoor access.
- Home-like feel in a duplex format: Porches, garages, and private interiors give residents a sense of a standalone home rather than an apartment — a major plus for comfort and long-term livability.

Estimated U.S. Build Cost (USD)
Assuming a modest to mid-range finish level and typical U.S. building costs around $150–$200 per sq ft (given the duplex, simpler exterior, and straightforward layout), building ~2,344 sq ft would likely cost in the range of **$350,000–$470,000 USD** (excluding land, site prep, permits, utilities, and regional differences). For each unit separately, the cost would be roughly **$175,000–$235,000 USD**.
Who This Plan Is Best For — Families, Investors & Multi-Household Living
If you’re looking for a duplex that feels more like two full homes than rental units, this plan is a strong fit. It offers a comfortable home layout, privacy, practical amenities, and easy maintenance — well-suited for small families, roommates, multigenerational living, or rental income. With simple yet effective design, it delivers value and flexibility in a compact footprint.












