This spacious and stylish modern transitional home offers approximately 2,690 square feet of heated living space with 4 to 5 bedrooms, 3 full bathrooms, and one half bathroom. Designed as a single-story residence with an optional bonus room, this plan blends contemporary comfort with traditional elegance. With its flexible layout, open living spaces, and a 2–3 car garage, it is ideal for growing families and homeowners seeking versatility. citeturn0search0

Exterior Design
The exterior showcases a refined transitional style that merges modern simplicity with classic architectural elements. The home spans approximately 79 feet 10 inches wide and 62 feet 2 inches deep, creating a strong presence on medium to large lots. citeturn0search0
A combination of clean lines, balanced proportions, and a steep 12:12 roof pitch gives the home a bold yet timeless appearance. Covered front and rear porches enhance both curb appeal and outdoor functionality, offering comfortable spaces for relaxation and entertaining. citeturn0search0

Interior Layout Overview
All 2,690 square feet of living space is arranged on one level, ensuring convenience and accessibility throughout the home. citeturn0search0 The layout emphasizes open living areas while maintaining privacy through a split-bedroom design.
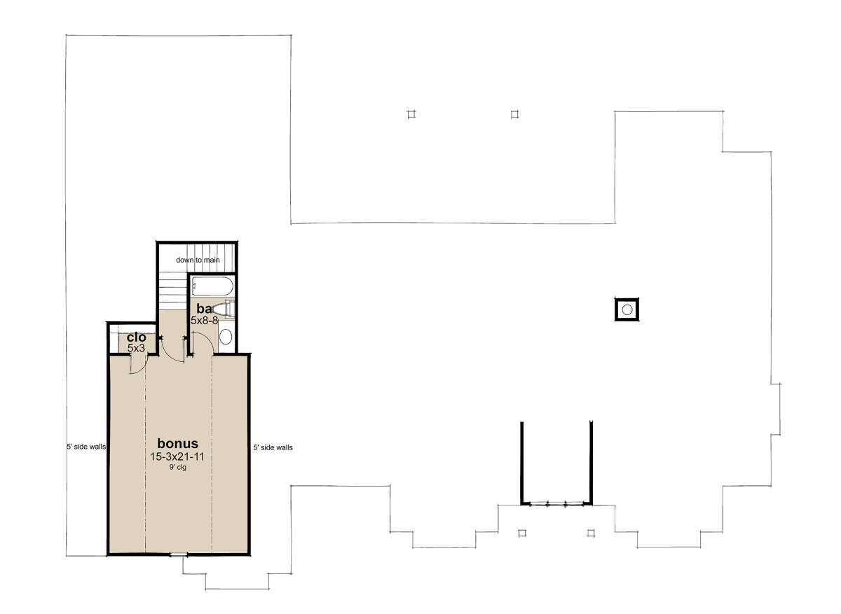
An optional bonus room of about 442 square feet adds flexibility, allowing homeowners to expand the space for additional bedrooms, a media room, or a home office. citeturn0search0
Main Living Area
The main living area features an open floor plan that seamlessly connects the great room, kitchen, and dining spaces. citeturn0search0 This layout creates a bright and welcoming environment, ideal for both everyday living and entertaining.
Large windows enhance natural light, while the spacious design ensures comfort and ease of movement throughout the central living zone.

Kitchen and Dining
The kitchen is designed as a functional centerpiece, featuring a large island, ample cabinetry, and generous counter space. citeturn0search0 Its open connection to the dining and living areas encourages interaction and convenience.
The dining area is positioned to take advantage of natural light and easy access to outdoor spaces, enhancing the overall living experience.

Bedrooms
This home includes 4 to 5 bedrooms, offering exceptional flexibility for families of different sizes. citeturn0search0
The primary suite is located on the main floor and designed for privacy, featuring a spacious layout and direct access to a private bathroom. The split-bedroom arrangement places additional bedrooms on the opposite side of the home, making it ideal for families or hosting guests.

A Jack and Jill bathroom serves some of the secondary bedrooms, improving functionality and convenience. citeturn0search0
Bathrooms
The design includes three full bathrooms and a half bathroom, ensuring comfort and accessibility for both residents and visitors. citeturn0search0

The bathrooms are strategically placed throughout the home to support efficient daily routines while maintaining privacy.
Functional Features
- Single-story design: All living spaces on one level for convenience. citeturn0search0
- Flexible bedroom count: Expands from 4 to 5 bedrooms.
- Open floor plan: Enhances flow and spaciousness. citeturn0search0

- Split-bedroom layout: Provides privacy between rooms. citeturn0search0
- Kitchen island: Adds workspace and seating. citeturn0search0
- Bonus room: Offers additional flexible space. citeturn0search0
- Mudroom and laundry: Improve everyday organization. citeturn0search0
- Front and rear porches: Extend living areas outdoors. citeturn0search0
- Modern transitional style: Blends traditional and contemporary elements.
Garage and Additional Space
The attached 2–3 car garage provides approximately 624 square feet of unheated space, offering ample room for vehicles, storage, or workshop use. citeturn0search0
The garage features a side-entry design, enhancing curb appeal while maintaining practical access to the home.

Dimensions and Structural Details
The home measures approximately 79 feet 10 inches wide and 62 feet 2 inches deep, with an overall height of about 30 feet 4 inches. citeturn0search0
It features ceiling heights of 9 to 10 feet on the main floor, creating a spacious and comfortable interior environment. citeturn0search0
The structure is typically built using 2×4 wood framing, with optional upgrades to 2×6 construction, and supports foundation types such as slab, crawlspace, or basement. citeturn0search0

Estimated Building Cost (USD)
Construction costs vary depending on materials, labor, and location. Using common mid-range estimates:
- Low estimate: ~ $322,800 (assuming ~$120 per sq ft × 2,690 sq ft)
- High estimate: ~ $484,200 (assuming ~$180 per sq ft × 2,690 sq ft)
This modern transitional home plan offers a perfect blend of flexibility, comfort, and timeless design. Its spacious layout, adaptable rooms, and elegant style make it an excellent choice for homeowners seeking a functional yet sophisticated single-story home.











