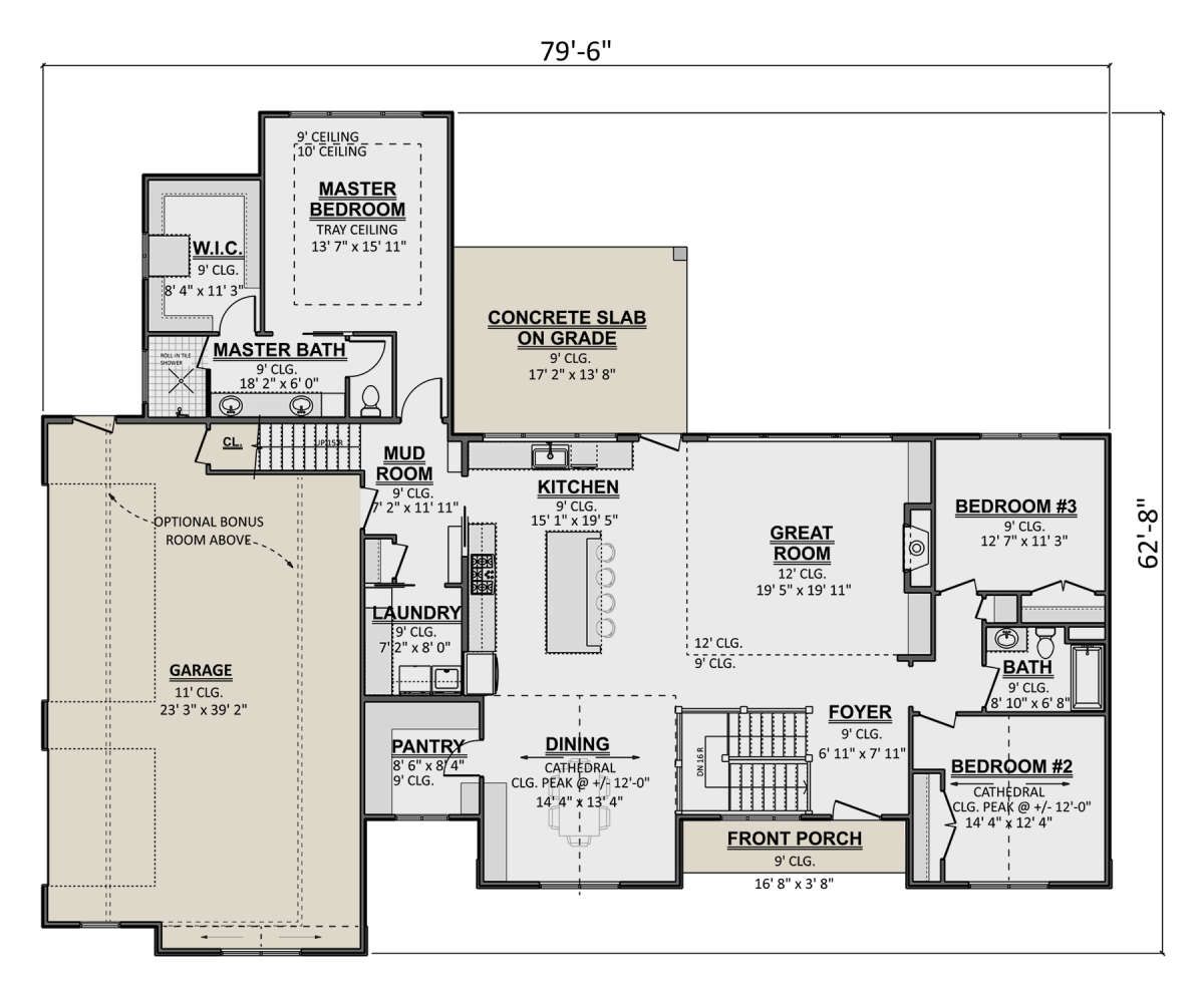
This stylish modern transitional house plan offers about 2,292 sq ft of thoughtfully designed space that blends contemporary appeal with timeless comfort. Featuring a flexible bedroom layout that can accommodate 3 to 4 bedrooms, 2 full bathrooms, an open living core, and plenty of room for everyday life and entertaining, this plan feels both welcoming and practical. It’s ideal for families who value connected living spaces, privacy where needed, and adaptable rooms that grow with changing needs. 0

Exterior Style & Curb Appeal
The exterior combines modern lines with transitional design touches — clean rooflines, balanced proportions, and thoughtfully placed windows that bring in abundant light. 1 A covered front porch creates a welcoming entry point and adds a classic touch to the façade. 2 The overall exterior feels grounded yet fresh, offering curb appeal that suits both suburban settings and countryside sites. 3

Front Porch & Welcoming Entry
A covered front porch invites relaxed seating and casual greetings, setting the stage for everyday comfort. 4 Step through the entry and you’re greeted by sightlines that draw you into the main living spaces, reinforcing an immediate sense of openness and connection. 5 The layout doesn’t feel closed off or segmented — it feels like a home where movement flows naturally. 6

Main Living Area – Bright & Open Concept Flow
The heart of the home features an open-concept living area that brings together the family room, kitchen, and dining zone. 7 This interconnected space supports both daily living and entertaining, enhancing sightlines and circulation between zones. 8 Large windows and thoughtful placement of doors allow natural light to fill the interior, creating a warm and inviting ambiance that’s perfect for gatherings or relaxed evenings at home. 9

Kitchen & Dining – Designed for Everyday Use
The kitchen is designed for both function and family interaction. 10 With ample counter space and an efficient layout, meal prep feels easy and enjoyable. The kitchen island adds extra workspace plus a casual spot for quick meals or morning coffee. 11 Adjacent to the kitchen, the dining area offers a social setting for everyday meals or festive dinners without feeling closed off from the rest of the home. 12

Primary Suite – Comfortable & Private Retreat
The primary bedroom suite is tucked away from the main living spaces for privacy and comfort. 13 Spacious enough for king-size furnishings, it’s designed for ease and peaceful rest. 14 The attached full bathroom features thoughtful planning with a roomy layout and functional flow. A generous closet supports everyday storage needs while keeping the bedroom uncluttered and calm. 15

Secondary Bedrooms & Flexible Spaces
Beyond the primary suite, additional bedrooms provide flexibility for family members, guests, or adaptable use as a home office or hobby room. 16 One of these rooms can also function as a fourth bedroom if needed, making the home adaptable as your lifestyle changes. 17 These spaces share easy access to a well-placed full bathroom that also supports guests without disturbing private zones. 18

Bathrooms – Well-Placed & Functional
With two full bathrooms, this home supports both everyday living and guest comfort. 19 The primary bath serves its suite privately, while the secondary bath is conveniently located for easy access from the other bedrooms as well as shared spaces. 20 Each bathroom is thoughtfully sized and arranged to keep morning and evening routines flowing smoothly. 21

Everyday Flow & Practical Details
Thoughtful circulation defines this home’s layout. 22 Hallways are minimized, and rooms are organized to reduce wasted space while improving movement between areas. 23 Storage and closets are integrated into key zones, helping keep everyday clutter contained and your home feeling organized. 24 Whether it’s gear from outings or daily laundry routines, this plan supports everyday life with intuitive flow. 25

Indoor-Outdoor Connection
Large windows and convenient transitions to outdoor spaces enhance everyday comfort. 26 Whether you’re relaxing on the porch or stepping out for fresh air, this home encourages an easy indoor-outdoor lifestyle that feels natural and enjoyable. 27

Dimensions & Practical Scale
At approximately **2,292 sq ft**, this home strikes a comfortable balance — generous enough for family needs and entertaining yet manageable in terms of maintenance and daily use. 28 Thoughtful room proportions and ceiling heights contribute to spatial openness that feels welcoming without being overwhelming. 29

Specs Summary
- Total Heated Area: ~2,292 sq ft 30
- Bedrooms: 3–4 31
- Bathrooms: 2 full 32
- Stories: 1 33
- Style: Modern Transitional 34

Lifestyle Highlights
- Open living core that enhances connection between family room, kitchen, and dining.
- Flexible bedroom layout that can adapt as needs change over time.
- Primary suite that feels private and restful yet still connected to daily life.
- Well-organized circulation and storage that keep daily routines smooth.
- Inviting front porch and easy outdoor access that expand everyday living.

Estimated U.S. Build Cost (USD)
Assuming mid-to-high quality finishes and current U.S. residential construction costs of about $180–$275 per sq ft, building ~2,292 sq ft suggests a rough estimated range of **$412,000–$630,000 USD**, excluding land, permits, site prep, and regional variation.

Why This Modern Transitional Plan Works
This modern transitional home plan blends contemporary style with practical, everyday living. Its flexible bedroom layout, open living areas, and intuitive circulation make it both comfortable and adaptable for families at different stages. With thoughtful details and balanced spaces, it offers a design that’s both livable today and ready for tomorrow.










