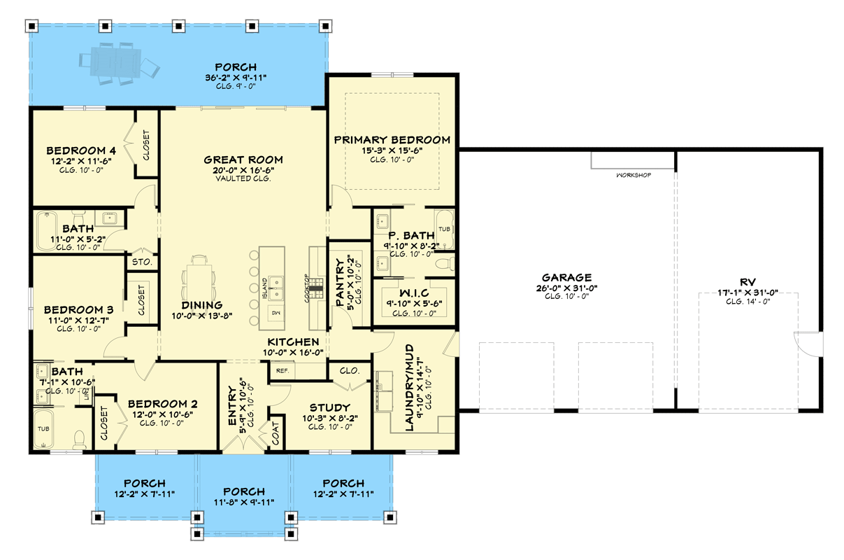
This thoughtfully designed modern farmhouse offers about 2,152 sq ft of heated living space on one level, blending everyday comfort with practical utility. With 4 bedrooms, 3 full bathrooms, and a massive 3-car garage including a dedicated RV bay and workshop, this home strikes a satisfying balance between livability and real-life needs. The split-bedroom layout ensures privacy in key zones, while an open living core and generous outdoor spaces make this plan appealing for family life, gatherings, and hobbies. 0

Exterior & Classic Farmhouse Appeal
The exterior presents a modern farmhouse silhouette with clean lines, balanced composition, and a welcoming covered front porch that invites daily porch living and neighborly chats. Large windows and a thoughtful roof profile add depth and character, creating a façade that feels classic yet contemporary. 1
The attached garage isn’t just about vehicle storage — its extended length accommodates RVs, boats, or oversized trucks without crowding the main house envelope. This integration preserves curb appeal while adding serious utility. 2

Front Porch & Welcoming Entry
A generous covered front porch offers a natural spot for morning coffee or relaxed weekends. Cross through the entry into a foyer that immediately draws your eye toward the open living spaces ahead — a design move that enhances both flow and first impressions. 3
Open Concept Living – Heart of the Home
At the center of the plan, an open-concept great room, kitchen, and dining area create a bright, social core. Vaulted ceilings and large windows amplify the sense of space and bring natural light deep into the home. The expansive layout supports daily routines as well as relaxed gatherings, so you never feel boxed in. 4
The great room sits at the heart of family activity, with plenty of room for cozy seating arrangements and sightlines that maintain connection to the kitchen and outdoor zones. 5

Kitchen & Dining – Practical with Style
The kitchen is sized for both everyday cooking and entertaining. A large central island becomes a hub for prep work, casual meals, and social interaction. Adjacent to the kitchen, the dining area flows naturally, keeping food prep, meal service, and conversation seamlessly connected. 6

A walk-in pantry and a dedicated butler’s pantry add valuable storage and organization, keeping counters clear and preparing even large meals effortless. 7

Split Bedroom Layout – Privacy Built In
This plan features a thoughtful split-bedroom design that enhances privacy without isolating any part of the home. 8 The primary suite lies on one wing of the house, serving as a peaceful retreat away from the central living core and other bedrooms. 9
The three remaining bedrooms are positioned on the opposite side, providing comfortable accommodation for family members, guests, or flexible use as offices or hobby rooms. Two full bathrooms support these secondary bedrooms, making morning routines smooth and conflict-free. 10

Primary Suite – Everyday Comfort & Retreat
The primary bedroom offers a tranquil space for rest and privacy. Its attached bathroom includes thoughtful amenities such as dual vanities, a separate shower, and ample closet space — details that support relaxed mornings and unwinding at night. 11
Garage, RV Bay & Workshop – Utility Meets Lifestyle
One of this plan’s standout features is its expansive garage space. The attached 3-car garage (~1,342 sq ft) includes a dedicated RV bay with enough clearance and room to store large recreational vehicles, boats, or oversized equipment under one roof. 12
Adjacent workshop space provides a protected area for hobbies, hands-on projects, storage, or gear maintenance — perfect for DIY enthusiasts or homeowners who want a flexible utility zone without compromising living space. 13
A practical mudroom and laundry room connect the garage to the interior, helping keep daily transitions smooth and clutter contained. 14

Outdoor Living & Rear Covered Patio
A large covered patio at the rear of the home creates an inviting space for outdoor living. Whether you enjoy morning coffee, alfresco meals, or relaxed evenings with family and friends, this sheltered area feels like a natural extension of the interior — encouraging you to spend more time outdoors. 15
Dimensions & Structural Details
This one-story home measures approximately **96′ 0″ wide × 62′ 0″ deep** with a **max ridge height near 23′ 0″**, giving it a balanced scale that feels generous without appearing oversized. Exterior walls are framed with **2×6 construction**, enhancing insulation and energy efficiency. 16

Specs Summary
- Total Heated Area: ~2,152 sq ft
- Bedrooms: 4
- Bathrooms: 3 full
- Garage: 3-car with dedicated RV bay (~1,342 sq ft)
- Front Porch: ~309 sq ft
- Covered Patio: ~357 sq ft
- Dimensions: ~96′ 0″ × ~62′ 0″
Lifestyle Highlights
- Split-bedroom layout that supports privacy and family flow.
- Open living core designed for connection and comfort.
- Generous rear covered patio expands living into the outdoors.
- Dedicated office or study space near the entrance.
- Large walk-in and butler pantries boost kitchen functionality.
- Expansive garage with RV bay and workshop satisfies storage and project needs.

Estimated U.S. Build Cost (USD)
Assuming mid-to-high quality finishes and typical U.S. construction costs ranging from $180–$275 per sq ft, building ~2,152 sq ft suggests a rough estimated cost of $387,000–$592,000 USD, excluding land, permits, site prep, and regional cost variations.

Why This Modern Farmhouse Plan Works
This modern farmhouse plan stands out by blending timeless farmhouse aesthetics with functional design — from split bedrooms and a spacious open living core to a massive garage with RV storage and workshop space. It’s a home that supports daily life, hobbies, and entertaining with equal ease, making it both practical and inviting for long-term living.
“`17












