This delightful modern farmhouse plan delivers about 1,479 sq ft of thoughtfully organized living space on a single level. With 3 bedrooms, 2 full bathrooms, and an attached 2-car garage (~499 sq ft), the layout balances everyday comfort with a warm, inviting style. Designed for efficient living without sacrificing features, it’s perfect for small families, downsizers, or anyone seeking smartly planned spaces with classic farmhouse charm. 0

Charming Curb Appeal & Exterior Presence
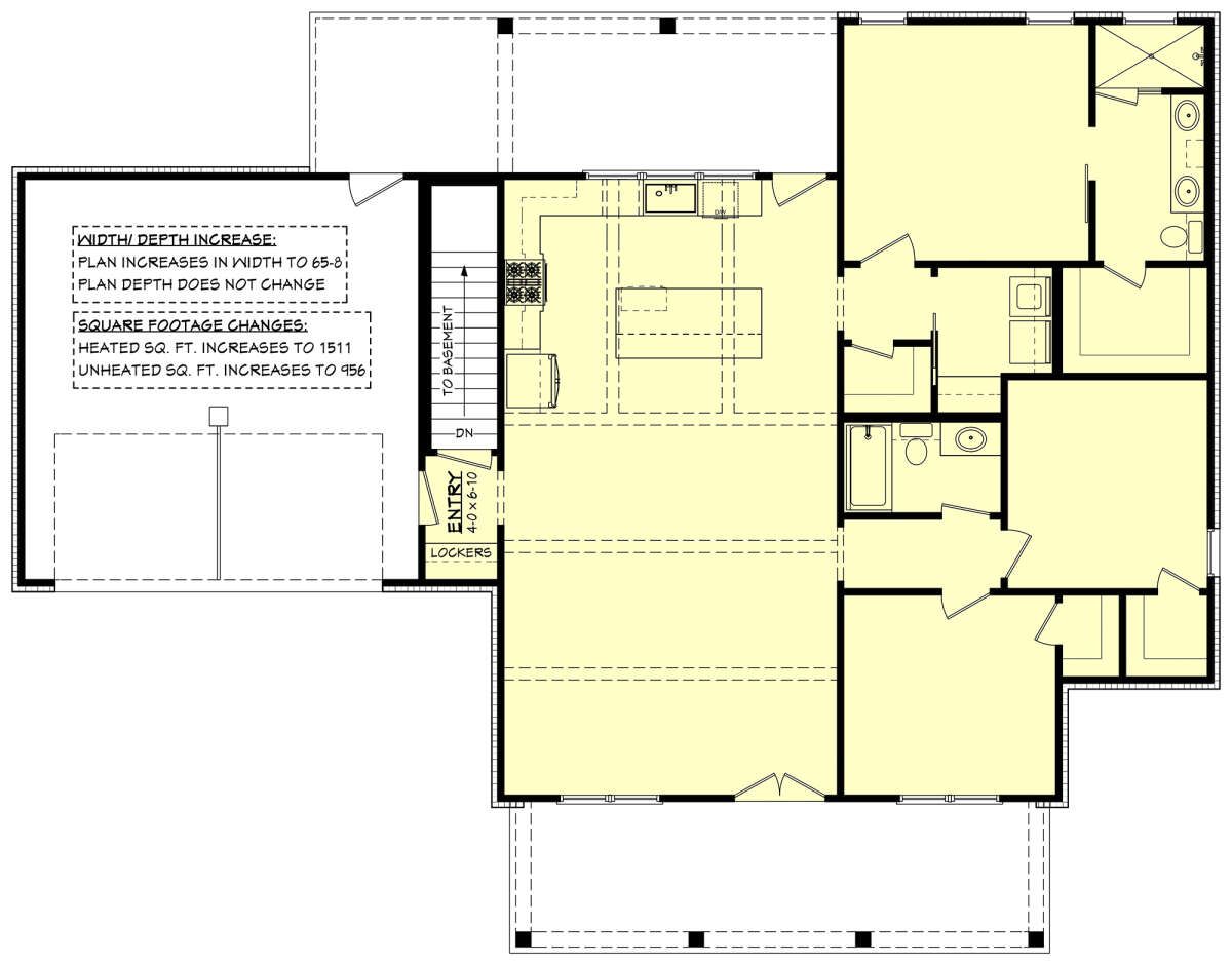
The exterior presents an inviting modern farmhouse aesthetic with clean lines, board-and-batten styling, and a generous covered front porch that sets the tone for relaxed living. 1 With overall dimensions of roughly 61′-4″ wide × 51′ deep, this home feels substantial yet comfortably scaled for many lot types. 2 Large windows punctuate the façade, welcoming abundant natural light into the interior while enhancing visual connection to the outdoors. 3

Welcoming Outdoor Living Spaces
The covered front porch expands your living space outdoors, perfect for morning coffee, relaxed evenings, or quiet moments with a view of the yard. 4 At the rear of the home, access to outdoor living from the interior reinforces everyday connection to nature and makes outdoor dining, casual gatherings, or afternoon breezes part of daily life. 5

Open Great Room — Heart of the Home
Upon entering, you’re greeted by an open great room that flows naturally into the nearby kitchen and dining spaces — a hallmark of modern farmhouse design that encourages interaction and connection. 6 Abundant windows help fill this central space with light, creating a bright and welcoming environment that’s both functional and comfortable. 7
This open layout supports everyday living and entertaining alike, making it easy to transition between relaxing, cooking, and dining. 8

Kitchen Designed for Daily Life
The kitchen is positioned for efficient meal preparation and ease of use. 9 A central island or generous counter space serves as a natural hub for gathering, whether you’re preparing meals or enjoying casual conversation. 10 Thoughtful cabinetry and workspace arrangements make this kitchen both practical and stylish, keeping everything you need within reach. 11
Easy access to the porch from the dining area encourages indoor-outdoor flow and makes alfresco meals simple and enjoyable. 12

Primary Suite — Private & Comfortable
The primary bedroom is tucked away for privacy and convenience. 13 With generous proportions and well-placed windows, it feels peaceful and light-filled, perfect for everyday comfort or restful evenings. 14 The attached full bathroom enhances practicality with a well-planned layout and fixtures that support ease of use. 15
Nearby closet space helps keep personal items organized and out of sight. 16

Secondary Bedrooms — Flexible & Welcoming
Two additional bedrooms provide flexible spaces for family, guests, or multi-purpose uses such as a home office or hobby room. 17 These rooms are served by a second full bathroom, thoughtfully positioned for everyday convenience. 18 Well-placed windows in each room ensure bright, comfortable spaces that adapt easily to your lifestyle. 19
This balanced bedroom layout supports privacy and shared living without sacrificing flow. 20

Garage, Mudroom & Everyday Practicality
The attached front-entry garage provides secure parking and additional storage space, while a pedestrian door offers convenient access to an uncovered porch and direct entry into the main living area. 21 A small mudroom area near the entry helps contain everyday clutter, keeping coats, shoes, and outdoor gear organized before you step inside. 22

Indoor-Outdoor Connection & Natural Light
Large windows throughout the home let in generous natural light, reinforcing a sense of openness and connection to the outdoors. 23 Whether in the great room, kitchen, or bedrooms, daylight brightens each space and enhances the feeling of comfort and spaciousness. 24

Dimensions & Key Features
- Total Heated Area: ~1,479 sq ft 25
- Bedrooms: 3 26
- Bathrooms: 2 full 27
- Stories: Single level 28
- Garage: 2-car attached (~499 sq ft) 29
- Width: ~61′-4″ 30
- Depth: ~51′ 31
- Ceiling Heights: ~10 ft main areas 32

Lifestyle Highlights
- Open central living area perfect for everyday connection and social moments.
- Kitchen layout that supports both meal prep and casual gatherings.
- Primary suite tucked for privacy with seamless access to shared zones.
- Secondary bedrooms that adapt easily for family living or flexible needs.
- Generous covered porches that expand living outdoors.
- Mudroom entry zone that helps keep clutter out of main living spaces.
- Plentiful windows that bring natural light into every key room. 33

Estimated U.S. Build Cost (USD)
Assuming typical U.S. residential construction costs of around **$180–$260 per sq ft**, building this ~1,479 sq ft modern farmhouse plan could range between **$266,000 and $384,000 USD** (excluding land, permits, and site work). 34

Why This Modern Farmhouse Plan Works
This modern farmhouse plan marries timeless exterior appeal with practical, comfortable interior spaces that support everyday living. Its open gathering spaces, smart bedroom layout, and strong connection between indoor and outdoor areas make it a welcoming home for families, entertaining, and everyday life. With thoughtful details and efficient design, it feels both cozy and spacious without overwh…












