This modern farmhouse design delivers about 2,020 sq ft of relaxed, well-planned living space on one level. With 3 bedrooms, 2 full bathrooms, and 1 half bath, this thoughtful layout balances a welcoming open interior with private retreats and practical daily living zones — perfect for families, entertaining, or everyday comfort. 0

Exterior & Curb Appeal
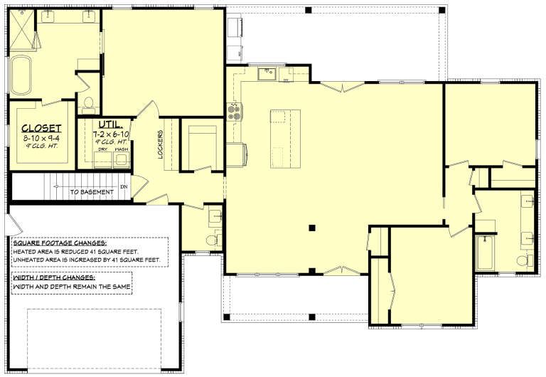
The exterior showcases classic modern farmhouse character with clean lines, balanced proportions, and crisp board-and-batten styling. 1 A covered front porch spans part of the façade, offering an inviting space for rocking chairs and morning coffee. 2 The overall footprint of about 71′-6″ wide × 49′ deep gives this plan a strong street presence while still fitting comfortably on many lots. 3
Front Porch & Outdoor Living
The covered front porch creates an approachable transition from outside to inside, ideal for relaxing evenings and greeting guests. 4 At the rear, a covered porch extends living outdoors — perfect for barbecues, casual gatherings, or enjoying fresh air with family. 5 Large windows and doors around the main living areas enhance indoor-outdoor flow and bring abundant light into the interior. 6

Main Living Space — Open & Inviting
Open concept design defines the heart of this home, where the great room, dining area, and kitchen flow seamlessly together. 7 Vaulted ceiling elements and generous windows fill the space with light and create a sense of volume, making the living areas feel even more expansive. 8 Whether you’re hosting friends or enjoying quiet evenings, this central zone supports both connection and comfort. 9
Kitchen — Functional & Social
The kitchen will delight home cooks with its efficient layout and plenty of workspace. 10 A central island or eating bar provides casual seating and extra prep space, while thoughtful placement of counters and cabinetry keeps essentials organized and accessible. 11 The adjacent dining area remains connected to the living room and outdoor spaces, making both everyday meals and special occasions effortless. 12

Primary Suite — Peaceful Retreat
The primary bedroom is thoughtfully positioned for privacy and comfort, a true retreat at the end of the day. 13 Its attached full bathroom includes well-appointed fixtures and a layout designed for ease of use, and a walk-in closet offers generous storage without crowding the space. 14 Large windows invite natural light and create a calm, inviting atmosphere. 15

Secondary Bedrooms & Shared Bath
Two additional bedrooms sit on the opposite side of the home from the primary suite, providing quiet separation and comfort. 16 These bedrooms share a well-designed full bathroom with contemporary fixtures and thoughtful details that support everyday family life. 17 Each room offers natural light and flexible furniture arrangements, making them suitable for guests, kids, or work-from-home needs. 18
Half Bath & Mudroom Convenience
A conveniently located powder room serves guests and daily routines without interrupting the privacy of the full baths. 19 A mudroom — positioned near the garage entrance — offers space for shoes, coats, and daily gear, helping keep the main living areas uncluttered and functional. 20
Garage, Circulation & Practical Flow
The attached 2-car garage (~523 sq ft) provides secure vehicle storage and extra room for tools, outdoor equipment, or seasonal items. 21 Interior access through the mudroom keeps everyday routines comfortable and organized. 22 Thoughtful circulation ensures the transition between public and private areas feels natural and intuitive, enhancing overall ease of living. 23

Indoor-Outdoor Connection & Natural Light
Expansive windows and well-placed doors throughout bring daylight into every corner of the home, creating bright, uplifting spaces that feel connected to the outdoors. 24 Whether you’re in the living room, kitchen, or bedrooms, the design maximizes views and light for a joyful everyday experience. 25
Dimensions & Key Features
- Total Heated Area: ~2,020 sq ft 26
- Bedrooms: 3 27
- Bathrooms: 2 full + 1 half 28
- Stories: 1 29
- Garage: 2-car attached (~523 sq ft) 30
- Front Porch: Covered outdoor space 31
- Rear Porch: Covered outdoor living 32
- Width: ~71′-6″ 33
- Depth: ~49′ 34
Lifestyle Highlights
- Open, connected living spaces encourage effortless entertaining and everyday interaction.
- A welcoming kitchen with island or bar seating anchors daily routines with style and practicality.
- Primary suite designed for privacy and comfort with abundant natural light.
- Secondary bedrooms support flexible use as kids’ rooms, guest spaces, or offices.
- Half bath and mudroom add everyday convenience and support household organization.
- Indoor-outdoor transitions and generous windows enhance light and livability. 35

Estimated U.S. Build Cost (USD)
Assuming typical U.S. residential construction costs of **$180–$260 per sq ft**, building this ~2,020 sq ft modern farmhouse could range between **$364,000 and $525,000 USD** — excluding land, permits, site prep, and regional variations. 36

Why This Modern Farmhouse Plan Works
This design beautifully blends classic farmhouse charm and contemporary living needs. With open communal spaces, private bedroom zones, and thoughtful functional details throughout, it offers both style and everyday practicality — perfect for families seeking a welcoming, light-filled home that supports both daily life and entertaining.












