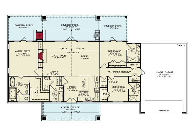
This modern farmhouse design delivers approximately 1,928 sq ft of well-planned living space that balances openness, privacy, and everyday functionality. With 3 bedrooms and an impressive 3.5 bathrooms, the layout is ideal for families, frequent guests, or homeowners who appreciate private bedroom suites and a refined yet relaxed farmhouse aesthetic.

Clean Farmhouse Curb Appeal with Modern Character
The exterior presents a fresh take on farmhouse styling, blending simple rooflines with balanced proportions and clean detailing. The overall look is timeless rather than trendy, offering a welcoming presence that feels equally at home in suburban neighborhoods or more rural settings.
A covered front porch adds warmth and charm while extending the home’s living space outdoors, creating an inviting first impression and a comfortable spot for everyday enjoyment.

Welcoming Entry & Immediate Sense of Space
Stepping inside, the home opens into a bright, well-connected main living area. The layout avoids unnecessary hallways, allowing space to flow naturally from one area to the next. Sightlines stretch across the living, dining, and kitchen zones, making the home feel larger and more open than its footprint suggests.
This thoughtful arrangement sets the tone for a home designed around comfort and connection.
Open Living Area Designed for Real Life
The main living space serves as the heart of the home. Sized to comfortably accommodate seating for daily family life and casual entertaining, it feels relaxed without being oversized. Large windows bring in natural light, enhancing the airy, welcoming atmosphere throughout the day.
This central gathering space encourages conversation, connection, and everyday comfort.

Kitchen Built for Function & Social Flow
The kitchen is positioned to stay fully engaged with the living and dining areas. Ample counter space supports meal preparation, while well-planned cabinetry keeps storage efficient and accessible. A central island acts as both a workspace and a casual gathering spot—perfect for quick meals, conversation, or morning routines.
The open arrangement makes the kitchen feel social rather than tucked away, ideal for modern living.

Dining Area with Easy Connection
The dining space flows naturally from the kitchen, creating a comfortable setting for everyday meals and special occasions. Its placement supports easy serving and conversation, reinforcing the home’s emphasis on connection and simplicity.
Natural light keeps the space bright and inviting, making it a place where people naturally linger.

Primary Suite — Private & Comfort-Focused
The primary bedroom is designed as a peaceful retreat, offering separation from the main living areas. Spacious enough for a king-size bed and additional furnishings, it feels calm and well proportioned.
The ensuite bathroom enhances daily comfort with a thoughtful layout and generous fixtures, while a walk-in closet provides ample storage and organization.
Secondary Bedrooms with Ensuite Privacy
One of the standout features of this home is the inclusion of additional bedrooms with access to their own bathrooms. These suites are ideal for guests, older children, or multi-generational living, offering privacy and convenience without compromising flow.
This setup makes the home especially accommodating for visitors or flexible household arrangements.

Half Bath for Guests & Everyday Ease
A conveniently located half bathroom supports guests and social spaces, helping keep private bedroom bathrooms undisturbed. This small but impactful feature improves daily usability and makes entertaining more comfortable.
Laundry, Storage & Practical Living
A dedicated laundry area keeps household chores organized and separate from main living spaces. Storage is thoughtfully integrated throughout the home, helping maintain a clean, uncluttered interior that supports everyday routines.
The efficient use of square footage ensures the home feels comfortable and functional without wasted space.

Indoor–Outdoor Connection
Rear access from the living areas encourages an easy indoor–outdoor lifestyle. Whether adding a patio, deck, or backyard seating area, this connection expands usable living space and enhances daily enjoyment.
Windows throughout the home strengthen the visual link to the outdoors, bringing in light and creating a pleasant, airy atmosphere.
Dimensions & Key Features
- Total Living Area: ~1,928 sq ft
- Bedrooms: 3
- Bathrooms: 3 full + 1 half
- Stories: Single level
- Style: Modern Farmhouse
- Layout Focus: Open living with private bedroom suites
Lifestyle Highlights
- Open main living area encourages connection and natural light.
- Multiple ensuite bathrooms add privacy and flexibility.
- Primary suite designed as a calm, private retreat.
- Efficient layout minimizes wasted space.
- Indoor–outdoor access enhances everyday living.
Estimated U.S. Build Cost (USD)
Using typical U.S. residential construction costs of approximately $180–$260 per sq ft, building this ~1,928 sq ft home may cost between $347,000 and $501,000 USD. This estimate excludes land, site preparation, permits, and regional pricing variations.

Why This Modern Farmhouse Plan Stands Out
This modern farmhouse design excels by offering a rare combination of compact efficiency and upscale comfort. With multiple bathrooms, private bedroom suites, and an open yet organized layout, it supports a wide range of lifestyles—from growing families to homeowners who love hosting guests. Thoughtful planning, timeless style, and practical features make this home feel both comfortable today and adaptable for the future












