This expansive modern farmhouse offers approximately 4,360 square feet of heated living space with four bedrooms, four full bathrooms, and one half bathroom. Designed as a single-story residence with a finished basement, this home blends luxury, functionality, and timeless farmhouse appeal. With generous living areas, multiple porches, and a two-car garage, it is ideal for large families or homeowners seeking a high-end, spacious layout. 0

Exterior Design
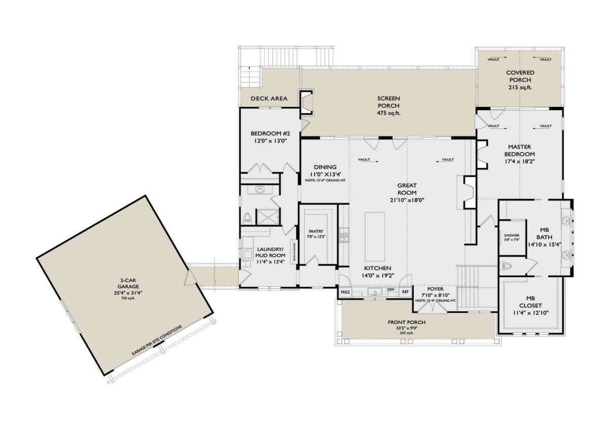
The exterior showcases classic modern farmhouse styling with a wide footprint measuring approximately 68 feet 4 inches wide and 58 feet 7 inches deep. 1 The home features clean lines, steep rooflines, and a balanced façade that combines rustic charm with contemporary elegance.
Outdoor living is a standout feature, with approximately 955 square feet of porch and patio space, including a front porch, rear porch, and a large screened porch. 2 These areas create inviting spaces for relaxation, dining, and entertaining.
The steep 12:12 roof pitch enhances both durability and architectural character, giving the home a bold and distinctive presence. 3
Interior Layout Overview
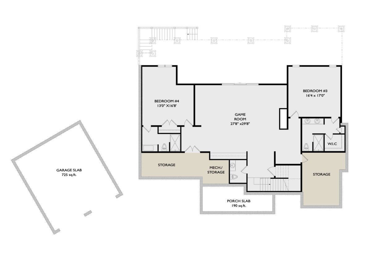
The home’s 4,360 square feet is divided between the main level and a finished basement. The main floor provides approximately 2,535 square feet, while the basement adds about 1,825 square feet of additional living space. 4
This layout allows for a clear separation between primary living areas and secondary or recreational spaces, creating both comfort and flexibility.

Main Living Area
The main living area features an open-concept design, seamlessly connecting the great room, kitchen, and dining area. This creates a spacious and welcoming environment ideal for family life and entertaining guests.
High ceilings of approximately 10 feet on the main level enhance the sense of openness and luxury throughout the home. 5 Large windows further contribute to a bright and airy atmosphere.
Kitchen and Dining
The kitchen is designed as a central gathering space, featuring a large island and ample cabinetry for storage. 6 Its open connection to the dining and living areas supports both everyday convenience and entertaining.
The dining area is positioned to take advantage of the open layout, making it ideal for both casual meals and formal occasions.
Bedrooms
This home includes four bedrooms, with the primary suite located on the main floor for convenience and privacy. 7
The remaining bedrooms are thoughtfully arranged to provide separation and comfort, making them suitable for family members or guests. The split-bedroom design enhances privacy throughout the home.
Bathrooms
The design includes four full bathrooms and one half bathroom, ensuring convenience for both residents and visitors. 8
This abundance of bathrooms supports a large household while maintaining comfort and efficiency in daily routines.
Functional Features
- Single-story with basement: Combines accessibility with expanded living space. 9
- Open floor plan: Enhances flow and spaciousness.
- Split-bedroom layout: Provides privacy between rooms. 10
- Kitchen island: Improves functionality and usability. 11
- Media room: Offers dedicated entertainment space. 12
- Mudroom and laundry: Add everyday convenience. 13
- Extensive porch space: Enhances outdoor living. 14
- Two-car garage: Provides parking and storage. 15

Garage and Additional Space
The attached two-car garage provides approximately 725 square feet of unheated space, ideal for vehicles, storage, or workshop use. 16
The finished basement adds significant additional living space, which can be used for recreation, entertainment, or guest accommodations.
Dimensions and Structural Details
The home measures approximately 68 feet 4 inches in width and 58 feet 7 inches in depth, with an overall height of about 30 feet 2 inches. 17
It is typically constructed using 2×4 wood framing, with optional upgrades to 2×6 framing. The design supports multiple foundation types, including basement, slab, or crawlspace, depending on site conditions. 18
Estimated Building Cost (USD)
Construction costs vary depending on materials, labor, and location. Using common mid-range estimates:
- Low estimate: ~ $523,200 (assuming ~$120 per sq ft × 4,360 sq ft)
- High estimate: ~ $784,800 (assuming ~$180 per sq ft × 4,360 sq ft)

This modern farmhouse plan offers a perfect combination of luxury, space, and functionality. Its expansive layout, high-end features, and timeless design make it an excellent choice for homeowners seeking a spacious and elegant long-term residence.
“`19












