• Home
No Result
View All Result
  • Home
No Result
View All Result
Dream Homes
No Result
View All Result
Home House Designs

Modern Farmhouse Plan – 2,256 Sq Ft, 3–4 Bedrooms, 2.5 Bathrooms

Dorcas Izan by Dorcas Izan
March 3, 2026
in House Designs
0
0
SHARES
2
VIEWS
Share on FacebookShare on Twitter

This striking modern farmhouse design offers approximately 2,256 square feet of thoughtfully arranged living space with a flexible layout accommodating three to four bedrooms and two full bathrooms plus a half bathroom. Blending timeless farmhouse charm with contemporary open-concept living and practical interior flow, this plan is ideal for growing families, those who love entertaining, or homeowners seeking stylish yet functional everyday living. ([houseplans.net](https://www.houseplans.net/floorplans/00900448/modern-farmhouse-plan-2256-square-feet-3-4-bedrooms-2.5-bathrooms))

Exterior Design

The exterior features classic modern farmhouse character with clean rooflines, board-and-batten siding, and generous windows that enhance curb appeal and allow for abundant natural light. A welcoming covered front porch adds outdoor living space and creates a strong connection to the surrounding landscape. The balanced proportions and contemporary farmhouse detailing help this home fit beautifully on suburban, rural, or countryside lots. ([houseplans.net](https://www.houseplans.net/floorplans/00900448/modern-farmhouse-plan-2256-square-feet-3-4-bedrooms-2.5-bathrooms))

Interior Layout Overview

Once inside, the floor plan is inviting and thoughtfully organized for smooth circulation between shared and private areas. Large windows and open sightlines enhance the sense of space, while strategic room placement supports both everyday living and entertaining. The design balances connected communal spaces with flexible bedroom zones for privacy and comfort. ([houseplans.net](https://www.houseplans.net/floorplans/00900448/modern-farmhouse-plan-2256-square-feet-3-4-bedrooms-2.5-bathrooms))

Main Living Area

The heart of the home is a spacious open-concept great room that flows seamlessly into the kitchen and dining area — creating an ideal layout for family gatherings or hosting guests. Large windows fill the space with natural light, and the kitchen includes functional counter space and cabinetry designed for everyday use. A generous island or peninsula can provide additional workspace, casual seating, and storage. ([houseplans.net](https://www.houseplans.net/floorplans/00900448/modern-farmhouse-plan-2256-square-feet-3-4-bedrooms-2.5-bathrooms))

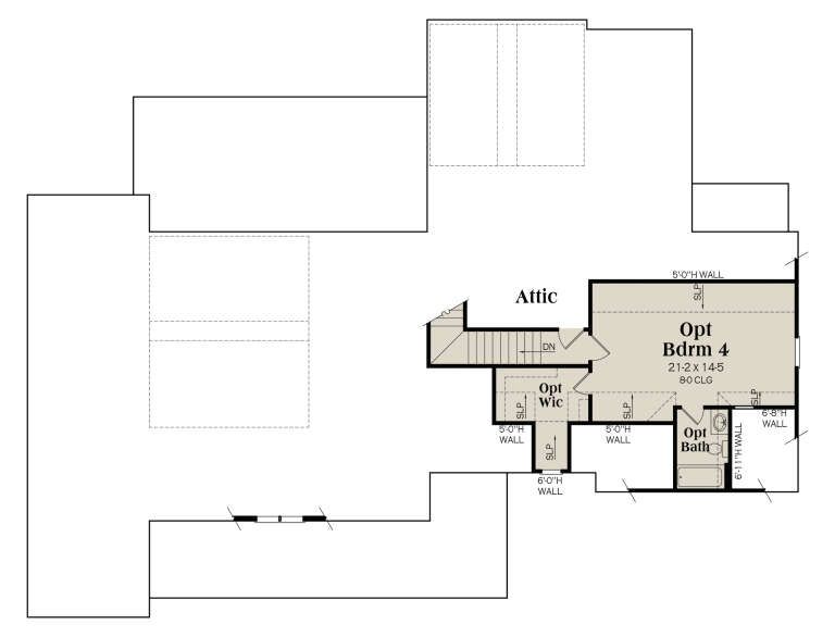
Bedrooms

This plan includes three to four bedrooms, offering versatile options depending on how you choose to use extra space. The primary suite serves as a peaceful retreat with direct access to a full bathroom and features comfortable proportions and thoughtful design. ([houseplans.net](https://www.houseplans.net/floorplans/00900448/modern-farmhouse-plan-2256-square-feet-3-4-bedrooms-2.5-bathrooms))

The additional bedrooms are well-proportioned and served by the second full bathroom, making them ideal for children, guests, or multifunctional use such as a home office, hobby room, or guest suite. Thoughtful window placement ensures daylight and comfort in every room. ([houseplans.net](https://www.houseplans.net/floorplans/00900448/modern-farmhouse-plan-2256-square-feet-3-4-bedrooms-2.5-bathrooms))

Bathrooms

This home features two full bathrooms and a half bathroom. The primary bathroom offers privacy and practical layout for daily routines, while the second full bathroom serves the secondary bedrooms. A conveniently located half bath adds everyday comfort and guest utility. ([houseplans.net](https://www.houseplans.net/floorplans/00900448/modern-farmhouse-plan-2256-square-feet-3-4-bedrooms-2.5-bathrooms))

Functional Features

  • Open-concept living: Seamless flow connects great room, kitchen, and dining spaces for modern living. ([houseplans.net](https://www.houseplans.net/floorplans/00900448/modern-farmhouse-plan-2256-square-feet-3-4-bedrooms-2.5-bathrooms))
  • Flexible bedroom layout: Three to four bedrooms provide versatility for lifestyle needs. ([houseplans.net](https://www.houseplans.net/floorplans/00900448/modern-farmhouse-plan-2256-square-feet-3-4-bedrooms-2.5-bathrooms))
  • Main-floor bedrooms: All sleeping areas located on one level for accessibility and convenience. ([houseplans.net](https://www.houseplans.net/floorplans/00900448/modern-farmhouse-plan-2256-square-feet-3-4-bedrooms-2.5-bathrooms))
  • Generous windows: Maximize natural light and indoor-outdoor connection. ([houseplans.net](https://www.houseplans.net/floorplans/00900448/modern-farmhouse-plan-2256-square-feet-3-4-bedrooms-2.5-bathrooms))
  • Half bath convenience: Ideal for guest use and everyday living. ([houseplans.net](https://www.houseplans.net/floorplans/00900448/modern-farmhouse-plan-2256-square-feet-3-4-bedrooms-2.5-bathrooms))

Dimensions and Structural Details

The home includes approximately 2,256 square feet of heated living space arranged on one level, promoting efficient circulation and accessible daily living. Conventional wood framing and a straightforward roof design contribute to cost-effective construction and lasting performance. Foundation options such as slab, crawlspace, or basement can be tailored based on site conditions and builder preferences. ([houseplans.net](https://www.houseplans.net/floorplans/00900448/modern-farmhouse-plan-2256-square-feet-3-4-bedrooms-2.5-bathrooms))

Estimated Building Cost (USD)

Construction costs vary depending on materials, finishes, labor rates, and local site conditions. Using typical mid-range pricing:

  • Low estimate: ~ $270,720 (assuming ~$120 per sq ft × 2,256 sq ft)
  • High estimate: ~ $405,120 (assuming ~$180 per sq ft × 2,256 sq ft)

Actual building costs will depend on customization choices, finish quality, site preparation, and regional construction conditions, but this modern farmhouse plan offers a balanced combination of style, function, and spacious living. ([houseplans.net](https://www.houseplans.net/floorplans/00900448/modern-farmhouse-plan-2256-square-feet-3-4-bedrooms-2.5-bathrooms))

Previous Post

Barndominium Plan – 1,614 Sq Ft, 2 Bedrooms, 2 Bathrooms

Dorcas Izan

Dorcas Izan

Leave a Reply Cancel reply

Your email address will not be published. Required fields are marked *

  • Trending
  • Comments
  • Latest
Modern Farmhouse Plan with Large Wrap-Around Porch and Rear Entry Garage

Modern Farmhouse Plan with Large Wrap-Around Porch and Rear Entry Garage

December 21, 2024
Explore Our Stunning American-Style Homes and Floor Plans

Explore Our Stunning American-Style Homes and Floor Plans

August 24, 2024
2 Bedrooms and 2 Baths Small Country-Style Starter Home

2 Bedrooms and 2 Baths Small Country-Style Starter Home

November 6, 2024
3 Bedroom, 2 Bath Traditional Home Plan with 1,521 Sq Ft: A Cozy Family Retreat

3 Bedroom, 2 Bath Traditional Home Plan with 1,521 Sq Ft: A Cozy Family Retreat

November 6, 2024
Modern Farmhouse Plan with Large Wrap-Around Porch and Rear Entry Garage

Modern Farmhouse Plan with Large Wrap-Around Porch and Rear Entry Garage

49
Explore Our Stunning American-Style Homes and Floor Plans

Explore Our Stunning American-Style Homes and Floor Plans

30
2 Bedrooms and 2 Baths Small Country-Style Starter Home

2 Bedrooms and 2 Baths Small Country-Style Starter Home

10
Southern Style with 3 Bed, 3 Bath, 2 Car Garage

Southern Style with 3 Bed, 3 Bath, 2 Car Garage

5

Modern Farmhouse Plan – 2,256 Sq Ft, 3–4 Bedrooms, 2.5 Bathrooms

March 3, 2026
Barndominium Plan – 1,614 Sq Ft, 2 Bedrooms, 2 Bathrooms

Barndominium Plan – 1,614 Sq Ft, 2 Bedrooms, 2 Bathrooms

March 1, 2026

Modern Farmhouse Plan – 1,500 Sq Ft, 3 Bedrooms, 2 Bathrooms

March 1, 2026

Modern Farmhouse Plan – 1,600 Sq Ft, 3 Bedrooms, 2 Bathrooms

March 1, 2026

Recent News

Modern Farmhouse Plan – 2,256 Sq Ft, 3–4 Bedrooms, 2.5 Bathrooms

March 3, 2026
Barndominium Plan – 1,614 Sq Ft, 2 Bedrooms, 2 Bathrooms

Barndominium Plan – 1,614 Sq Ft, 2 Bedrooms, 2 Bathrooms

March 1, 2026

Modern Farmhouse Plan – 1,500 Sq Ft, 3 Bedrooms, 2 Bathrooms

March 1, 2026

Modern Farmhouse Plan – 1,600 Sq Ft, 3 Bedrooms, 2 Bathrooms

March 1, 2026

© 2024 Site By Renato

No Result
View All Result
  • Home
  • House Designs

© 2024 Site By Renato