• Home
No Result
View All Result
  • Home
No Result
View All Result
Dream Homes
No Result
View All Result
Home House Designs

Country House Plan – 1,000 Sq Ft, 2 Bedrooms, 1 Bathroom

Dorcas Izan by Dorcas Izan
April 13, 2026
in House Designs
0
Country House Plan – 1,000 Sq Ft, 2 Bedrooms, 1 Bathroom
0
SHARES
5
VIEWS
Share on FacebookShare on Twitter

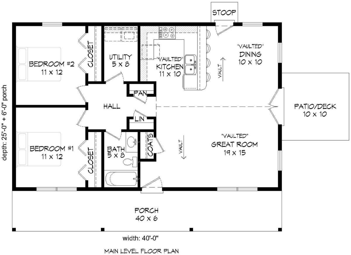
This compact and practical home offers approximately 1,000 square feet of heated living space with two bedrooms and one full bathroom. The layout featured in
this country house plan is designed for simplicity, affordability, and efficient everyday living. It is an excellent choice for small families, couples, or anyone looking for a functional and easy-to-maintain home. 0

Simple and Practical Exterior

The exterior features a clean and straightforward country-style design with a compact rectangular footprint. Measuring approximately 31 feet wide and 40 feet deep, the home fits comfortably on small or medium-sized plots. 1

Its modest size makes construction more affordable while still maintaining a warm and inviting appearance suitable for both rural and suburban settings.

Efficient Single-Level Layout

This home is designed as a single-story residence, offering convenience and ease of movement throughout. All 1,000 square feet of living space is arranged on one level, making it ideal for homeowners who prefer a stair-free design. 2

The layout is carefully planned to ensure minimal wasted space while maintaining comfort and functionality.

Open Living and Dining Area

The main living area is designed to feel open and welcoming, combining the living room and dining space into a shared environment. This setup enhances natural light and creates a comfortable space for relaxing or entertaining.

Open layouts like this are common in smaller homes, helping the interior feel larger and more connected.

Functional Kitchen Design

The kitchen is positioned for easy access from the main living area, offering a practical layout for everyday cooking. It includes sufficient counter space and cabinetry to support daily use while maintaining efficiency.

The nearby dining area allows for convenient serving and family interaction.

Two Comfortable Bedrooms

This home includes two bedrooms, making it ideal for small families or flexible living arrangements. 3 The primary bedroom provides a comfortable private retreat, while the second bedroom can be used for guests, children, or even a home office.

The compact layout ensures both rooms remain easily accessible.

One Full Bathroom

The design includes one full bathroom, centrally located for convenient access from both the bedrooms and living area. 4

This simple setup keeps the home efficient while meeting essential daily needs.

Ideal for Affordable Living

Homes around 1,000 square feet are known for being cost-effective to build and maintain, requiring less material and reducing overall expenses. 5

They are also easier to clean and manage, making them a practical option for modern lifestyles focused on simplicity.

Dimensions and Key Details

  • Total Living Area: 1,000 square feet
  • Bedrooms: 2
  • Bathrooms: 1
  • Width: 31 feet
  • Depth: 40 feet
  • Stories: 1

Estimated Building Cost (USD)

  • Low estimate: ~ $120,000 (assuming ~$120 per sq ft × 1,000 sq ft)
  • High estimate: ~ $180,000 (assuming ~$180 per sq ft × 1,000 sq ft)

This country house plan is a perfect example of efficient small-home living. With its simple layout, practical design, and affordable size, it offers comfort and functionality without unnecessary complexity.

“`6

Previous Post

Modern Farmhouse House Plan – 1,712 Sq Ft, 3 Bedrooms, 2 Bathrooms

Next Post

Craftsman House Plan – 1,986 Sq Ft, 3 Bedrooms, 2 Bathrooms

Dorcas Izan

Dorcas Izan

Next Post
Craftsman House Plan – 1,986 Sq Ft, 3 Bedrooms, 2 Bathrooms

Craftsman House Plan – 1,986 Sq Ft, 3 Bedrooms, 2 Bathrooms

Leave a Reply Cancel reply

Your email address will not be published. Required fields are marked *

  • Trending
  • Comments
  • Latest
Modern Farmhouse Plan with Large Wrap-Around Porch and Rear Entry Garage

Modern Farmhouse Plan with Large Wrap-Around Porch and Rear Entry Garage

December 21, 2024
Explore Our Stunning American-Style Homes and Floor Plans

Explore Our Stunning American-Style Homes and Floor Plans

August 24, 2024
2 Bedrooms and 2 Baths Small Country-Style Starter Home

2 Bedrooms and 2 Baths Small Country-Style Starter Home

November 6, 2024
3 Bedroom, 2 Bath Traditional Home Plan with 1,521 Sq Ft: A Cozy Family Retreat

3 Bedroom, 2 Bath Traditional Home Plan with 1,521 Sq Ft: A Cozy Family Retreat

November 6, 2024
Modern Farmhouse Plan with Large Wrap-Around Porch and Rear Entry Garage

Modern Farmhouse Plan with Large Wrap-Around Porch and Rear Entry Garage

49
Explore Our Stunning American-Style Homes and Floor Plans

Explore Our Stunning American-Style Homes and Floor Plans

30
2 Bedrooms and 2 Baths Small Country-Style Starter Home

2 Bedrooms and 2 Baths Small Country-Style Starter Home

10
Southern Style with 3 Bed, 3 Bath, 2 Car Garage

Southern Style with 3 Bed, 3 Bath, 2 Car Garage

5
Charming Cottage House Plan – 600 Sq Ft, 1 Bedroom, 1 Bathroom

Charming Cottage House Plan – 600 Sq Ft, 1 Bedroom, 1 Bathroom

April 13, 2026
Craftsman House Plan – 1,986 Sq Ft, 3 Bedrooms, 2 Bathrooms

Craftsman House Plan – 1,986 Sq Ft, 3 Bedrooms, 2 Bathrooms

April 13, 2026
Country House Plan – 1,000 Sq Ft, 2 Bedrooms, 1 Bathroom

Country House Plan – 1,000 Sq Ft, 2 Bedrooms, 1 Bathroom

April 13, 2026
Modern Farmhouse House Plan – 1,712 Sq Ft, 3 Bedrooms, 2 Bathrooms

Modern Farmhouse House Plan – 1,712 Sq Ft, 3 Bedrooms, 2 Bathrooms

April 13, 2026

Recent News

Charming Cottage House Plan – 600 Sq Ft, 1 Bedroom, 1 Bathroom

Charming Cottage House Plan – 600 Sq Ft, 1 Bedroom, 1 Bathroom

April 13, 2026
Craftsman House Plan – 1,986 Sq Ft, 3 Bedrooms, 2 Bathrooms

Craftsman House Plan – 1,986 Sq Ft, 3 Bedrooms, 2 Bathrooms

April 13, 2026
Country House Plan – 1,000 Sq Ft, 2 Bedrooms, 1 Bathroom

Country House Plan – 1,000 Sq Ft, 2 Bedrooms, 1 Bathroom

April 13, 2026
Modern Farmhouse House Plan – 1,712 Sq Ft, 3 Bedrooms, 2 Bathrooms

Modern Farmhouse House Plan – 1,712 Sq Ft, 3 Bedrooms, 2 Bathrooms

April 13, 2026

© 2024 Site By Renato

No Result
View All Result
  • Home
  • House Designs

© 2024 Site By Renato